2-х комнатная квартира

Санкт-Петербург, Приморский, Белоостровская ул.   Посмотреть на карте

Номер объекта: 339575
Цена на м2: 312 550

Время работы Call Центра:

ПН-ПТ с 9-30 до 22-00

СБ-ВС с 10-00 до 22-00

Нажимая на кнопку «Позвонить мне», Вы даете согласие на обработку своих персональных данных.

Описание

СПб, Приморский р-н, Белоостровская ул., д.10 к.2

Продам 2 комнатную квартиру с кухней- гостиной и балконом в ЖК Черная речка.

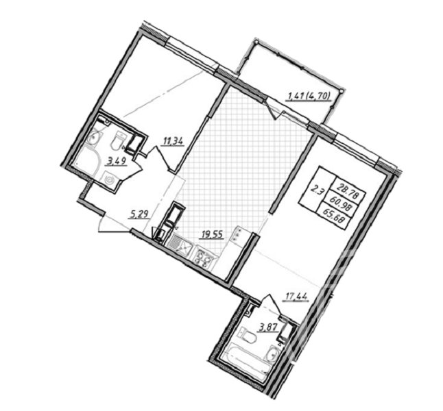
Кухня- 19,55 м2
Комнаты- 28,78 м2
Коридор- 5,29 м2
Ванна- 3,87 м2
Туалет- 3,49 м2

Дом возведен по кирпично-монолитной технологии.

На первых этажах ЖК находятся коммерческие помещения. На закрытой территории с установленной системой видеонаблюдения комплекса оборудованы беседки и амфитеатр, зоны для работы и детских игр. При возведении комплекса реализована концепция «двор без машин».

ЖК расположен рядом с кварталом с развитой инфраструктурой. В пешей доступности — детский сад, школа, торговый центр, аптека, отделение банка, стадион, супермаркеты, поликлиника.

Ждем Вас на просмотр!

Расположение

Адрес
Белоостровская ул., 10
Метро
Лесная
Район
Приморский
Регион
Санкт-Петербург

Площади, м2

Жилая площадь
28.78
Общая площадь
62.39
Площадь ванной
3.87
Площадь кухни
19.55
Площадь прихожей
5.29
Площадь санузла
3.49

Параметры

Балкон
балкон
Входная дверь
металлическая
Горячее водоснабжение
Центральное
Дата постройки
2024
Комнат
2
Лифт
Есть
Сан. узел
Раздельный
Дом
Кирпично-монолитный
Этаж
6
Этажность
14
Ипотека
Да

Узнайте больше об объекте

Получите консультацию специалиста

Нажимая на кнопку «Отправить заявку», Вы даете согласие на обработку своих персональных данных.

Объект на карте

Похожие объекты

Затрудняетесь с выбором?

Не тратьте время на поиск и анализ множества предложений недвижимости
Мы сделаем это за вас профессионально, быстро, предложив оптимальные варианты по выгодной цене!

Затрудняетесь с выбором?

Не тратьте время на поиск и анализ множества предложений недвижимости
Мы сделаем это за вас профессионально, быстро, предложив оптимальные варианты по выгодной цене!

Этот сайт использует файлы cookie для улучшения пользовательского опыта. Cookie - это небольшие текстовые файлы, которые сохраняются на вашем устройстве и помогают нам запоминать ваши предпочтения, анализировать посещаемость сайта и предоставлять более персонализированный контент. Использование файлов cookie позволяет нам сделать сайт удобнее для вас. Политика конфиденциальности
Принять Отказаться