2-х комнатная квартира

Санкт-Петербург, Выборгский, Белоостровская ул.   Посмотреть на карте

Номер объекта: 341205
Цена на м2: 285 006

Время работы Call Центра:

ПН-ПТ с 9-30 до 22-00

СБ-ВС с 10-00 до 22-00

Нажимая на кнопку «Позвонить мне», Вы даете согласие на обработку своих персональных данных.

Описание

Белоостровская ул., д.10/2

Просторная квартира в престижном жилом комплексе!
Квартира с продуманным зонированием и высокими потолками 2,75 м создает атмосферу простора и свободы.

Ключевые преимущества:
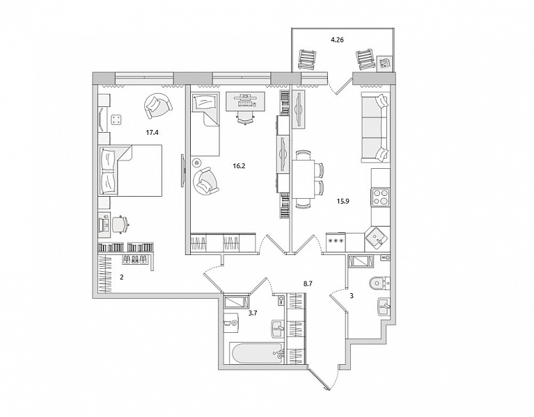
Кухня-гостиная 15,9 м² с выходом на лоджию 4,26 м² — идеальное место для семейных ужинов и встреч с друзьями

Светлые комнаты с панорамными окнами: 17,4 м² (с гардеробной 2 м²) и 16,2 м²

Два санузла для максимального комфорта: 3 м² и 3,7 м²

Удобная прихожая 8,7 м² с выделенной грязной зоной

Черновая отделка с готовой инженерией
Скрытая разводка коммуникаций
Современные системы очистки воды
Качественные радиаторы отопления

Закрытая территория с видеонаблюдением
Концепция «двор без машин»
Благоустроенная территория с зонами отдыха

Школы и детские сады
Торговые центры и магазины
Поликлиника и банк

2 станции метро в пешей доступности
Быстрый выезд на ЗСД (15 минут)
Рядом: Строгановский парк, ЦПКиО и Крестовский остров

Стоимость указана при оплате наличными
При ипотеке - 23 047 050

Расположение

Адрес
Белоостровская ул., 10
Метро
Лесная
Район
Выборгский
Регион
Санкт-Петербург

Площади, м2

Жилая площадь
33.6
Общая площадь
71.16
Площадь ванной
3.7
Площадь кухни
15.9
Площадь прихожей
8.7
Площадь санузла
3

Параметры

Балкон
лоджия
Дата постройки
2025
Комнат
2
Сан. узел
Раздельный
Этаж
14
Этажность
14
Ипотека
Нет

Узнайте больше об объекте

Получите консультацию специалиста

Нажимая на кнопку «Отправить заявку», Вы даете согласие на обработку своих персональных данных.

Объект на карте

Похожие объекты

Этот сайт использует файлы cookie для улучшения пользовательского опыта. Cookie - это небольшие текстовые файлы, которые сохраняются на вашем устройстве и помогают нам запоминать ваши предпочтения, анализировать посещаемость сайта и предоставлять более персонализированный контент. Использование файлов cookie позволяет нам сделать сайт удобнее для вас. Политика конфиденциальности
Принять Отказаться