1-х комнатная квартира

Санкт-Петербург, Адмиралтейский, Обводного канала наб.   Посмотреть на карте

Номер объекта: 341602
Цена на м2: 439 194

Время работы Call Центра:

ПН-ПТ с 9-30 до 22-00

СБ-ВС с 10-00 до 22-00

Нажимая на кнопку «Позвонить мне», Вы даете согласие на обработку своих персональных данных.

Описание

Продаётся светлая , уютная  студия общей площадью 24,8 м2. Квартира находится в Адмиралтейском районе Санкт-Петербурга.
Квартира в малоэтажном доме бизнес-класса в непосредственной близости к центру города.
За  5 минут можно дойти пешком до метро Балтийская, 15 минут до метро Фрунзенская,  вечером можно прогуляться до Мариинского театра, а так же вдоль  Фонтанки и Обводного канала.
Жилой комплекс находится под круглосуточным видеонаблюдением и имеет собственный зеленый парк во дворе. Для автовладельцев предусмотрен подземный паркинг со станциями для зарядки электромобилей .
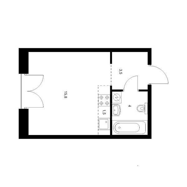
Прихожая 3,5 м2.
Совмещенный санузел 4,0м2.
Жилая комната 10,8м2.
Кухня 5 м2.
Возможно зонирование кухни от жилой комнаты.
Высокие потолки 3м2.
Увеличенные окна.
Окна во двор. Панорамные окна в пол, круглосуточное видеонаблюдение.
Закрытая территория без автомобилей
Собственный зеленый парк.
Во дворе детские и спортивные площадки, пешеходные и велодорожки,
организована зона отдыха.
Имеется подземный паркинг

В жилом комплексе , в  каждой квартире предусмотрены специальные корзины под кондиционеры на фасаде дома.
Инфраструктура развита, поблизости расположены школы, детские сады, магазины, кафе, салоны красоты, медицинские учреждения.  В пешей доступности Мариинский театр, Польский сад, набережная реки Фонтанки и Обводного канала.

Квартира с ПОДЧИСТОВОЙ отделкой White box (предчистовая отделка) - выполнены все черновые работы, что сэкономит ваше время и деньги на ремонт.
На территории ЖК функционирует лицей с бассейном . Здание было отреставрировано, ранее в нем находилось кавалерийское  училище , в котором учился М.Ю Лермонтов.
Современный дом с фасадами из темного клинкерного кирпича, просторными лобби и бесшумными лифтами, вход в парадную по системе распознавания лиц сделает Вашу жизнь намного комфортнее.
Квартира готова к продаже, возможна ипотека, в том числе и семейная.  
Звоните, ждем Вас на просмотр!

Расположение

Адрес
Обводного канала наб., 169
Метро
Балтийская
Район
Адмиралтейский
Регион
Санкт-Петербург

Площади, м2

Жилая площадь
10.8
Общая площадь
24.8
Площадь ванной
4
Площадь кухни
5
Площадь прихожей
3.5

Параметры

Входная дверь
металлическая
Горячее водоснабжение
Центральное
Дата постройки
2025
Комнат
1
Лифт
Есть
Плита
Электрическая
Сан. узел
Совмещенный
Вход
2 входа
Дом
Кирпично-монолитный
Этаж
7
Этажность
9
Ипотека
Нет

Узнайте больше об объекте

Получите консультацию специалиста

Нажимая на кнопку «Отправить заявку», Вы даете согласие на обработку своих персональных данных.

Объект на карте

Похожие объекты

Затрудняетесь с выбором?

Не тратьте время на поиск и анализ множества предложений недвижимости
Мы сделаем это за вас профессионально, быстро, предложив оптимальные варианты по выгодной цене!

Затрудняетесь с выбором?

Не тратьте время на поиск и анализ множества предложений недвижимости
Мы сделаем это за вас профессионально, быстро, предложив оптимальные варианты по выгодной цене!

Этот сайт использует файлы cookie для улучшения пользовательского опыта. Cookie - это небольшие текстовые файлы, которые сохраняются на вашем устройстве и помогают нам запоминать ваши предпочтения, анализировать посещаемость сайта и предоставлять более персонализированный контент. Использование файлов cookie позволяет нам сделать сайт удобнее для вас. Политика конфиденциальности
Принять Отказаться