1-х комнатная квартира

Санкт-Петербург, Невский, Дальневосточный просп.   Посмотреть на карте

Номер объекта: 342168
Цена на м2: 346 774

Время работы Call Центра:

ПН-ПТ с 9-30 до 22-00

СБ-ВС с 10-00 до 22-00

Нажимая на кнопку «Позвонить мне», Вы даете согласие на обработку своих персональных данных.

Описание

Предлагается к продаже уютная однокомнатная квартира 31м/кв, с `Чистовым ремонтом` от Застройщика, в новом Жилом комплексе расположенном в Невском районе, между Октябрьской набережной и Дальневосточным проспектом.
В квартире никто не проживает и не прописан.
Преимуществом является хорошая транспортная доступность,до центра города – Невского проспекта – всего около 7 минут езды, примерно столько же до выезда на КАД. Ближайшие станции метро – «Улица Дыбенко» и «Новочеркасская», до которых всего 20 минут езды общественным транспортом. Рядом с ЖК начато строительство Большого Смоленского моста через Неву, что существенно улучшит транспортную доступность, после его сдачи.
В пешей доступности расположены три школы, несколько детских садов , а также крупные гипермаркеты и  фитнес-центры. Около 20 минут ходьбы до крупного ТРК «Лондон Молл» и всего 10 минут – до парка Строителей.
Придомовая территория свободна от машин и закрыта от посторонних, благоустроена: детские площадки и зеленые  зоны. Для автомобилей предусмотрены подземные паркинги.
. Делайте Ваш выбор, записывайтесь на просмотры, по вопросам - Звоните!

Расположение

Адрес
Дальневосточный просп., 19
Метро
Новочеркасская
Район
Невский
Регион
Санкт-Петербург

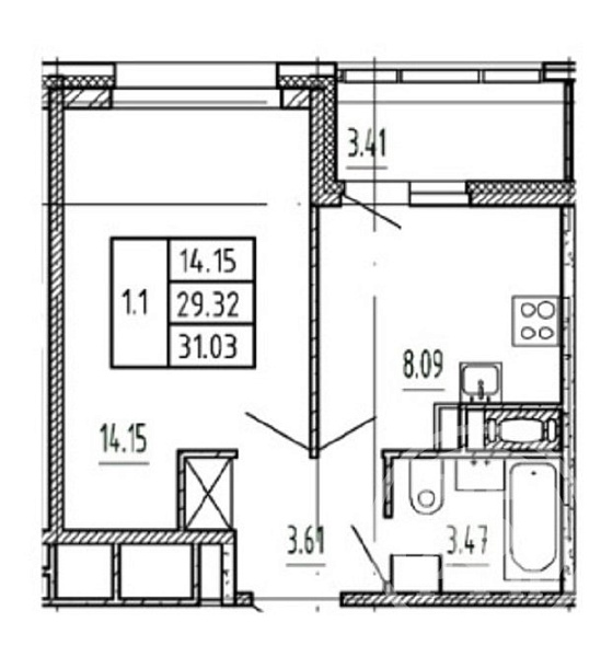
Площади, м2

Жилая площадь
14.15
Общая площадь
31
Площадь ванной
3.47
Площадь кухни
8.1
Площадь прихожей
3.6

Параметры

Входная дверь
металлическая
Горячее водоснабжение
Центральное
Дата постройки
2024
Комнат
1
Лифт
Есть
Плита
Электрическая
Сан. узел
Совмещенный
Вход
с улицы
Дом
Кирпично-монолитный
Этаж
10
Этажность
15
Ипотека
Да

Узнайте больше об объекте

Получите консультацию специалиста

Нажимая на кнопку «Отправить заявку», Вы даете согласие на обработку своих персональных данных.

Объект на карте

Похожие объекты

Затрудняетесь с выбором?

Не тратьте время на поиск и анализ множества предложений недвижимости
Мы сделаем это за вас профессионально, быстро, предложив оптимальные варианты по выгодной цене!

Этот сайт использует файлы cookie для улучшения пользовательского опыта. Cookie - это небольшие текстовые файлы, которые сохраняются на вашем устройстве и помогают нам запоминать ваши предпочтения, анализировать посещаемость сайта и предоставлять более персонализированный контент. Использование файлов cookie позволяет нам сделать сайт удобнее для вас. Политика конфиденциальности
Принять Отказаться