Жилой дом

ЛО, Выборгский, Рощино пос., Угловая ул.   Посмотреть на карте

Номер объекта: 339024
Цена на м2: 153 162

Время работы Call Центра:

ПН-ПТ с 9-30 до 22-00

СБ-ВС с 10-00 до 22-00

Нажимая на кнопку «Позвонить мне», Вы даете согласие на обработку своих персональных данных.

Описание

В  элитной однородной застройке п. Рощино Ленинградской области Выборгского района, на границе Курортного и Выборгского районов, продается усадьба состоящая из  двух жилых домов, бани, крытой беседки на участке 12 сот. Все объекты созданы в едином архитектурном стиле, смотрятся гармонично с великолепным облагороженным участком, на котором растет множество деревьев, кустарников и цветов.Тишина и покой в этом месте обусловлены еще и тем, что улица тупиковая. Усадьба огорожена надёжным забором на ленточном фундаменте с автоматическими воротами.
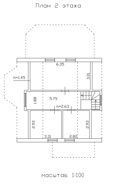
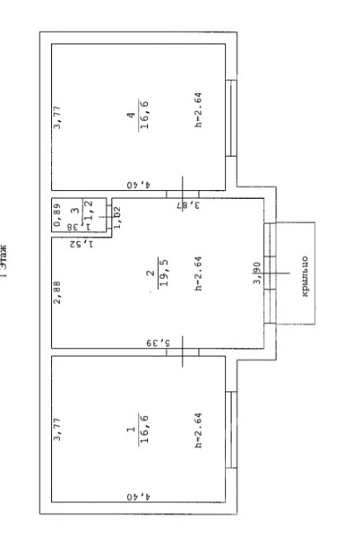
Площадь жилой застройки 202.4 кв.м. Основной дом 146,4 кв.м, двухэтажный. На 1 этаже: просторная прихожая, кухня-гостиная, спальня и санузел с тёплым полом. На 2 этаже -три комнаты. Дом очень светлый за счет панорамного остекления, просторных эркеров гостиной и хозяйской спальни с видом на свой зеленый двор. Дом  построен на ленточном фундаменте, стены из газобетона с утеплением и фасадом из клинкерной плитки, покрыт мягкой кровлей. Второй дом : 56 кв.м, фундамент - плита. В доме кухня-гостиная, 2 спальни и туалет.Отопление - водяной тёплый пол. Оба дома с хорошей мебелью и современной бытовой техникой.
Баня новая, 31 кв.м, с комнатой отдыха, туалетом, ванной, душевой и парилкой из качественных экологически чистых материалов с тёплым полом. Имеется крытая кухня-беседка 15 кв.м. Участок освещается  фонарями. Все коммуникации подведены к домам и бане: магистральный газ, центр. водопровод и канализация. На участке выполнен современный качественный дренаж.
Поселок Рощино исключительный по красоте и чистоте. Лес, озёра и непосредственная близость к городу Санкт-Петербургу — сочетание несочетаемого. В шаговой доступности школа, детские сады, стадион, сетевые и частные магазины, почта, поликлиника, храм, лыжная трасса, современный стадион, спа-центры, ледовый дворец.В непосредственной близости от поселка находится горнолыжный курорт «Пухтолова гора», в 10 км Финский залив. Идеальное место для постоянного проживания и отдыха.

Расположение

Адрес
Рощино пос., Угловая ул.
Метро
Беговая
Район
Выборгский
Город
Рощино
Регион
Ленинградская область

Площади, м2

Жилая площадь
150.2
Общая площадь
202.4
Площадь участка
12 сот.

Параметры

Комнат
5
Санузел
В доме
Состояние
Отличное
Этажей
2
Ипотека
Да
Отделка
Штукатурка
Отопление
АГВ
Электрификация
380
Канализация
Центр. канал.
Водоснабжение
Центр. водопровод
Стены
Пено-газобетон
Крыша
Мягкая кровля
Готовность
Готов
Фундамент
Ленточный
Разрешенное использование
ИЖС
Участок
Собственность

Узнайте больше об объекте

Получите консультацию специалиста

Нажимая на кнопку «Отправить заявку», Вы даете согласие на обработку своих персональных данных.

Объект на карте

Похожие объекты

Этот сайт использует файлы cookie для улучшения пользовательского опыта. Cookie - это небольшие текстовые файлы, которые сохраняются на вашем устройстве и помогают нам запоминать ваши предпочтения, анализировать посещаемость сайта и предоставлять более персонализированный контент. Использование файлов cookie позволяет нам сделать сайт удобнее для вас. Политика конфиденциальности
Принять Отказаться