Жилой дом

ЛО, Выборгский, Рощино пос., Безымянный пер.   Посмотреть на карте

Номер объекта: 341370
Цена на м2: 65 000

Время работы Call Центра:

ПН-ПТ с 9-30 до 22-00

СБ-ВС с 10-00 до 22-00

Нажимая на кнопку «Позвонить мне», Вы даете согласие на обработку своих персональных данных.

Описание

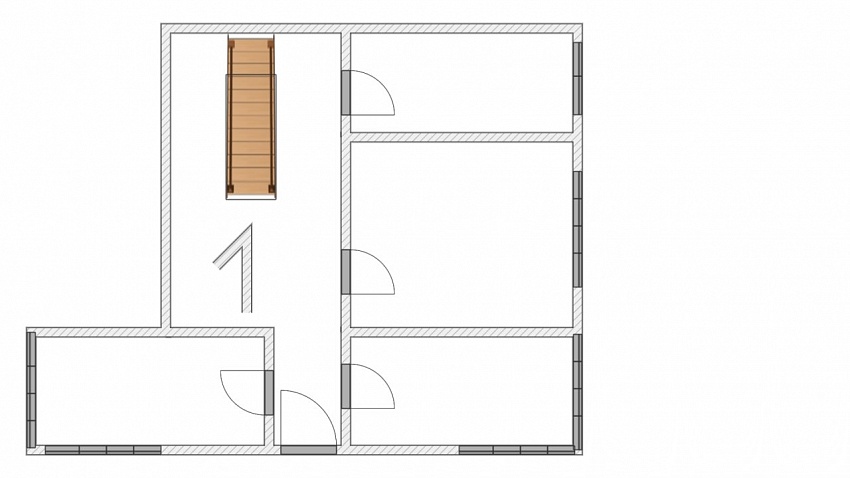
(168) Продам 1/2 часть жилого дома в пгт. Рощино, пер. Безымянный. Площадь всего дома составляет 115,4 кв.м, наша часть 57 кв.м. На 1 этаже располагаются 2 просторные веранды по 12 кв.м., гостиная с печью 22 кв.м. и спальня 12 кв.м. На 2 этаже  комната 22 кв.м. и комната 7 кв.м. Ухоженный солнечный ровный участок 5,7 сотки ИЖС в собственности со своим собственным кадастровым номером с вековыми елями. Огорожен забором. Подведено эл-во (5 кВт с возможностью увеличения мощностей), вода — колодец, по границе идет зимний центральный поселковый водопровод. Подъезд - асфальт. Возможно подключение к центральному газопроводу - газ идет по границе участка. На участке гостевой домик, 2 хозблока, летняя кухня и туалет. Прописка. До ж/д станции 1 км. Дом расположен в тихом уютном уголке Рощино с соседями, приезжающими только на лето. Превосходный вариант для постоянного проживания или загородного отдыха.

Расположение

Адрес
Рощино пос., Безымянный пер.
Метро
Беговая
Район
Выборгский
Расстояние от СПб
59.54
Город
Рощино
Регион
Ленинградская область

Площади, м2

Жилая площадь
59
Общая площадь
60
Площадь участка
5.7 сот.

Параметры

Комнат
4
Санузел
На улице
Этажей
2
Ипотека
Нет
Отделка
Вагонка
Отопление
Печь
Электрификация
Есть
Канализация
Локальная канал.
Водоснабжение
Колодец
Стены
Бревна
Крыша
Металл
Готовность
Готов
Фундамент
Столбы
Разрешенное использование
ИЖС
Участок
Собственность

Узнайте больше об объекте

Получите консультацию специалиста

Нажимая на кнопку «Отправить заявку», Вы даете согласие на обработку своих персональных данных.

Объект на карте

Похожие объекты

Этот сайт использует файлы cookie для улучшения пользовательского опыта. Cookie - это небольшие текстовые файлы, которые сохраняются на вашем устройстве и помогают нам запоминать ваши предпочтения, анализировать посещаемость сайта и предоставлять более персонализированный контент. Использование файлов cookie позволяет нам сделать сайт удобнее для вас. Политика конфиденциальности
Принять Отказаться