Универсальные помещения

Санкт-Петербург, Выборгский, Учебный пер.   Посмотреть на карте

Номер объекта: 319931
Цена на м2: 98 522

Время работы Call Центра:

ПН-ПТ с 9-30 до 22-00

СБ-ВС с 10-00 до 22-00

Нажимая на кнопку «Позвонить мне», Вы даете согласие на обработку своих персональных данных.

Описание

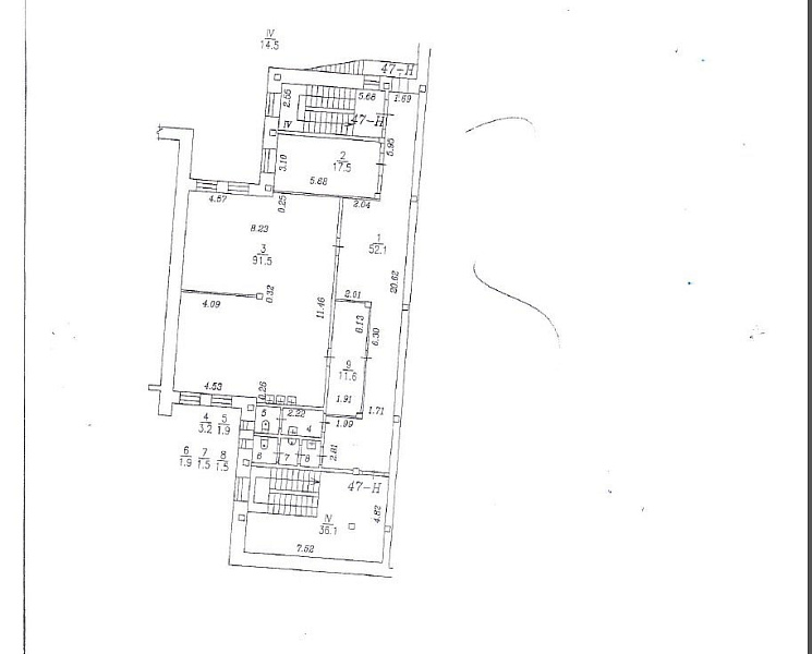
Продается нежилое помещение на пересечении улицы Есенина и Учебного переулка. Помещение находится в 3-х этажном, не жилом здании, на 3-м этаже. Коммуникации: электричество, вентиляция, мощная вытяжка, вода, канализация. Два полноценных входа и один пожарный. От ст.метро Озерки 10 минут пешком, есть места для парковки автомобилей. Возможное использование: производство, лаборатория, магазин-склад, студия, офис. Собственник: физ.лицо. Просмотры по договоренности. Помещение свободно.

Расположение

Адрес
Учебный пер., 2
Станция метро
Озерки
Район
Выборгский
Регион
Санкт-Петербург

Площади, м2

Общая площадь
182.7

Параметры

Дата постройки
2002
Этаж
3
Этажей
3
Отопление
Камин
Электричество
Есть
Водоснабжение
Есть
Тип объекта
Универсальные помещения

Узнайте больше об объекте

Получите консультацию специалиста

Нажимая на кнопку «Отправить заявку», Вы даете согласие на обработку своих персональных данных.

Объект на карте

Похожие объекты

Этот сайт использует файлы cookie для улучшения пользовательского опыта. Cookie - это небольшие текстовые файлы, которые сохраняются на вашем устройстве и помогают нам запоминать ваши предпочтения, анализировать посещаемость сайта и предоставлять более персонализированный контент. Использование файлов cookie позволяет нам сделать сайт удобнее для вас. Политика конфиденциальности
Принять Отказаться