Универсальные помещения

Санкт-Петербург, Приморский, Савушкина ул.   Посмотреть на карте

Номер объекта: 339806
Цена на м2: 1 825

Время работы Call Центра:

ПН-ПТ с 9-30 до 22-00

СБ-ВС с 10-00 до 22-00

Нажимая на кнопку «Позвонить мне», Вы даете согласие на обработку своих персональных данных.

Описание

Помещение расположено в престижном Приморском районе Санкт-Петербурга, в 6-ти минутах от ст.метро `Черная речка` на улице Савушкина дом 15.

Помещение расположено на первом этаже ;
    Расстояние до ст. метро «Обвод. Канал» — 580 м.
    Профиль помещения: торговое, общепит, свободное назначение;
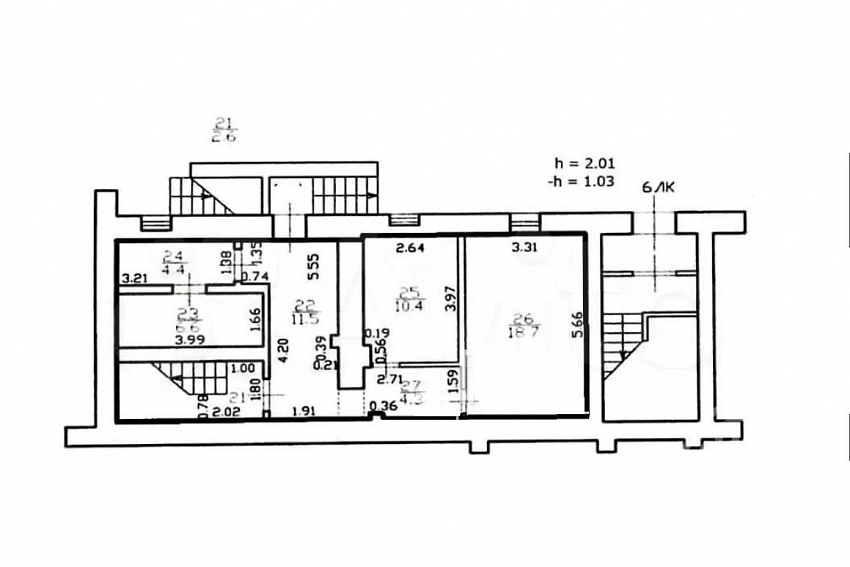
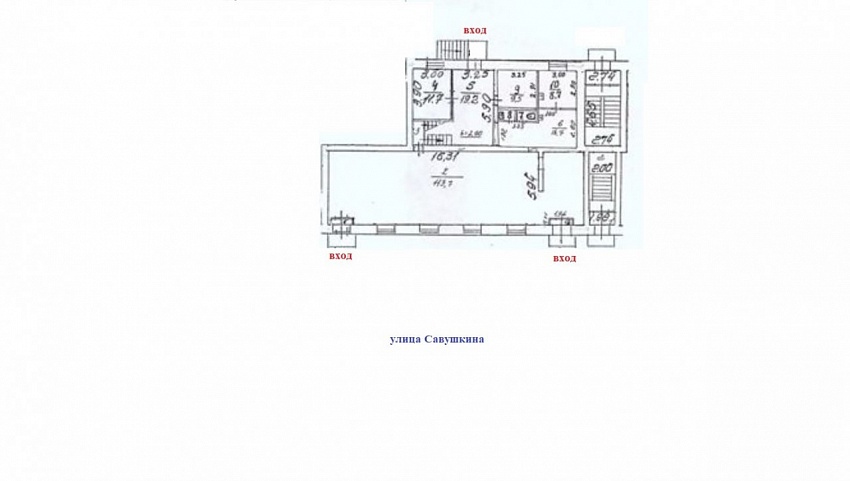
    Площадь помещения  263,3 м.кв.; Первый этаж 190 кв.м. и подвал — 73 кв.м.
    Два отдельных входа с улицы и третий со двора;
    Высота потолка  4,18 м.;
    Эл. мощность – 33  кВт;
    Витринные окна арочного типа;
    Удобная, свободная парковка перед помещением;
    Телефон ПТС,  системы ГВС и ХВС, центральное отопление; канализация;
    Резерв места на фасаде под наружную рекламу;
    Собственность юридического лица.
    Ставка за объект — 480 000 руб. в месяц.
3 входа
витринные окна
назначение: торговое, общепит, свободное назначение;
примечание: Помещение расположено на первой линии домов, большие витринные окна арочного типа. 2 входа с улицы и 3-й со двора, высокие потолки, удобная, свободная парковка перед помещением. Телефон ПТС, системы ГВС и ХВС, центральное отопление; канализация. Резерв места на фасаде под наружную рекламу. Собственность юридического лица.
На данный момент помещение свободно от арендатора
Без комиссии.

Расположение

Адрес
Савушкина ул., 15
Станция метро
Черная Речка
Район
Приморский
Регион
Санкт-Петербург

Площади, м2

Общая площадь
263

Параметры

Этаж
1
Этажей
5
Тип объекта
Универсальные помещения

Узнайте больше об объекте

Получите консультацию специалиста

Нажимая на кнопку «Отправить заявку», Вы даете согласие на обработку своих персональных данных.

Объект на карте

Похожие объекты

Этот сайт использует файлы cookie для улучшения пользовательского опыта. Cookie - это небольшие текстовые файлы, которые сохраняются на вашем устройстве и помогают нам запоминать ваши предпочтения, анализировать посещаемость сайта и предоставлять более персонализированный контент. Использование файлов cookie позволяет нам сделать сайт удобнее для вас. Политика конфиденциальности
Принять Отказаться