Торговые помещения

Санкт-Петербург, Невский, Дыбенко ул.   Посмотреть на карте

Номер объекта: 343751
Цена на м2: 4 327

Время работы Call Центра:

ПН-ПТ с 9-30 до 22-00

СБ-ВС с 10-00 до 22-00

Нажимая на кнопку «Позвонить мне», Вы даете согласие на обработку своих персональных данных.

Описание

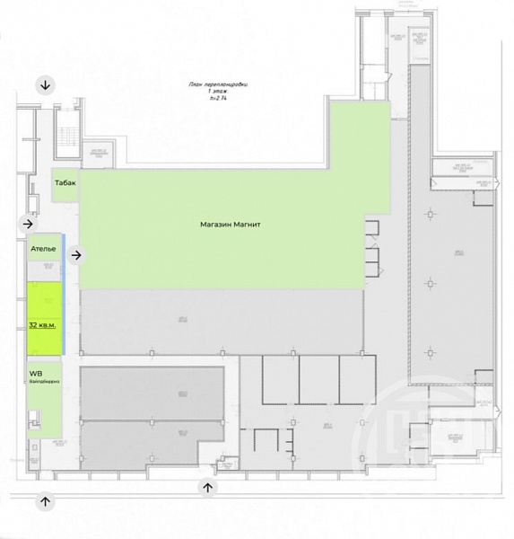
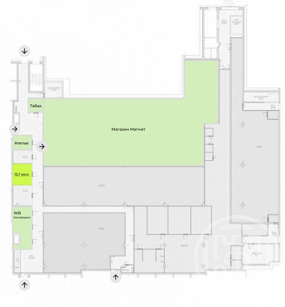
Санкт-Петербург, улица Дыбенко д.2. (торговые помещения в многоквартирном доме).
К Вашему вниманию предлагаются 5 помещений от 10,4  кв м, до 252,3 кв.м. (возможно уменьшение или увеличение под Ваши запросы).

Большие помещения с черновой отделкой:
Площадь — 252,3 кв.м.  
Ар. плата 1 год — 454 000 руб./ 1800 кв.м.
Мощность — 37 кВт

Площадь — 181,2 кв.м.
Ар. плата 1 год 326 000 руб./ 1800 кв.м.
Мощность — 28 кВт

Площадь — 100,8 кв.м.
Ар. плата 1 год 202 000 руб./ 2000 кв.м.
Мощность — 15 кВт

Площадь — 78,1 кв.м.
Ар. плата 1 год 164 000 руб./ 2100  кв.м.
Мощность — 12 кВт

Помещения в прикассовой зоне Магнит с чистовой отделкой и инженерией:

Площадь — 10,4 кв.м.
Арендная плата 1 год 45 000 руб.
Мощность — 4 кВт  10,4 кв.м.

Площадь — 15,7 кв.м.
Арендная плата 1 год 58 000 руб.
Мощность — 4 кВт


Возможно объединение помещений
Площадь — 32 кв.м.
Арендная плата 1 год 116 000 руб.
Мощность — 11 кВт

Ваше соседство — уже работающий бизнес и готовый поток клиентов:
По соседству успешно работают федеральные сети «Магнит»
(ежедневный трафик — 500+ чеков только по данным одного магазина)
и «Валберис».

Условия:
Долгосрочная аренда (от 1 года).
Для добросовестных предпринимателей.
Залог и оплата обсуждаются индивидуально.
КУ-отдельно.
Комиссия 50%.

Расположение

Адрес
Дыбенко ул., 2
Станция метро
Ломоносовская
Район
Невский
Регион
Санкт-Петербург

Площади, м2

Общая площадь
10.4
Полезная площадь
10.4

Параметры

Дата постройки
2024
Состояние
Отличное
Этаж
1
Этажей
1
Отопление
Камин
Электричество
220
Водоснабжение
Есть
Кол-во входов
4
Тип объекта
Торговые помещения

Узнайте больше об объекте

Получите консультацию специалиста

Нажимая на кнопку «Отправить заявку», Вы даете согласие на обработку своих персональных данных.

Объект на карте

Этот сайт использует файлы cookie для улучшения пользовательского опыта. Cookie - это небольшие текстовые файлы, которые сохраняются на вашем устройстве и помогают нам запоминать ваши предпочтения, анализировать посещаемость сайта и предоставлять более персонализированный контент. Использование файлов cookie позволяет нам сделать сайт удобнее для вас. Политика конфиденциальности
Принять Отказаться