6-х комнатная квартира

Санкт-Петербург, Центральный, Шпалерная ул.   Посмотреть на карте

Номер объекта: 298474
Цена на м2: 219 812

Время работы Call Центра:

ПН-ПТ с 9-30 до 22-00

СБ-ВС с 10-00 до 22-00

Нажимая на кнопку «Позвонить мне», Вы даете согласие на обработку своих персональных данных.

Описание

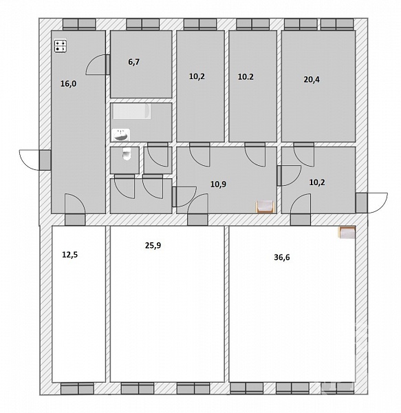
ВП,2х сторонняя квартира с парадным входом,без ремонта,расселение 2х семей,встречка подобрана,два камина и круглая печь - действующие.Система видеонаблюдения закрытый охраняемый двор,2 парковочных места,рядом Таврический сад.Квартира расположена на 4 последнем этаже дома 1896 года постройки. Высота потолков 3,35 метра. Двусторонняя планировка: на Гпалерную выходит 6 окон и во двор тоже 6 окон. Квартира имеет два входа : с парадной и с чёрной лестницы. В данный момент квартира разделена на две квартиры : одна  часть 100м. кв. И вторая часть 70 м. кв. В квартире одна несущая стена , на потолке лепнина, а так же две печи - камины и одна круглая печь. Квартира требует ремонта. Развитая инфраструктура, Таврический сад, река Нева, метро Чернышевская 5 минут пешком.

Расположение

Адрес
Шпалерная ул., 39
Метро
Чернышевская
Район
Центральный
Регион
Санкт-Петербург

Площади, м2

Жилая площадь
115.8
Общая площадь
170.6
Площадь ванной
3.6
Площадь кухни
16

Параметры

Балкон
нет
Входная дверь
металлическая
Горячее водоснабжение
Центральное
Дата постройки
1896
Комнат
6
Лифт
Нет
Плита
Газовая
Сан. узел
Раздельный
Вход
2 входа
Дом
Старый фонд с кап.ремонтом
Этаж
4
Этажность
4
Ипотека
Да

Узнайте больше об объекте

Получите консультацию специалиста

Нажимая на кнопку «Отправить заявку», Вы даете согласие на обработку своих персональных данных.

Объект на карте

Похожие объекты

Затрудняетесь с выбором?

Не тратьте время на поиск и анализ множества предложений недвижимости
Мы сделаем это за вас профессионально, быстро, предложив оптимальные варианты по выгодной цене!

Затрудняетесь с выбором?

Не тратьте время на поиск и анализ множества предложений недвижимости
Мы сделаем это за вас профессионально, быстро, предложив оптимальные варианты по выгодной цене!

Этот сайт использует файлы cookie для улучшения пользовательского опыта. Cookie - это небольшие текстовые файлы, которые сохраняются на вашем устройстве и помогают нам запоминать ваши предпочтения, анализировать посещаемость сайта и предоставлять более персонализированный контент. Использование файлов cookie позволяет нам сделать сайт удобнее для вас. Политика конфиденциальности
Принять Отказаться