Продажа квартир и комнат

Комнаты
Например: Массальского, 4
Ванные
2-х комнатная квартира

Парфёновская ул. м.Фрунзенская


68.1 м2
Общая
32.8 м2
Жилая
14.9 м2
Кухня
Цена
24 400 000 ₽
Адмиралтейский р-н, метро Фрунзенская, Парфёновская ул., 9 к.1. Продам просторную 2- комнатную квартиру с отличной планировкой в ЖК «Галактика» Дом расположен рядом с наб. Обводного канала и Московским проспектом, на территории бывшей Варшавской железной дороги. Дом класса «комфорт» находится сразу в двух районах: Адмиралтейском и Московском. И жить, и отдыхать в «Галактике» удобно и приятно. Рядом находятся торгово-развлекательный комплекс «Варшавский экспресс» с кинотеатром, концертной площадкой и спортивной зоной. Продовольственные и промтоварные магазины, рестораны и кафе, скверы и музеи — до всего будет подать рукой. Для обучения детей в районе открыты детские садики, школы, развивающие центры. На первых этажах в жилом квартале магазины, салоны красоты, ремонтные мастерские и отделения банков. На территории  школа, детский сад, кабинет врачей общей практики Ждем Вас на просмотр!

2-х комнатная квартира

Измайловский бул. м.Балтийская


65 м2
Общая
28 м2
Жилая
17.5 м2
Кухня
Цена
24 000 000 ₽
СПб, Адмиралтейский р-н, Измайловский бул., д.9 Продается уютная 2- комнатная квартира  с кухней- гостинной 17,5 м2 в ЖК  «Галактика» расположенном рядом с наб. Обводного канала и Московским проспектом. Комнаты- 12,8 м2 и 15,2 м2. Коридор- 11.1 м2. Ванна- 4.1 м2. Туалет- 2,1 м2. Дом класса «комфорт» находится сразу в двух районах: Адмиралтейском и Московском. И жить, и отдыхать в «Галактике» удобно и приятно. Рядом находятся торгово-развлекательный комплекс «Варшавский экспресс» с кинотеатром, концертной площадкой и спортивной зоной. Продовольственные и промтоварные магазины, рестораны и кафе, скверы и музеи — до всего будет подать рукой. Для обучения детей в районе открыты детские садики, школы, развивающие центры. На первых этажах в жилом квартале- помещения под магазины, салоны красоты, ремонтные мастерские и отделения банков. Есть школы, детские сады, кабинеты врачей общей практики. Ждем Вас на просмотр!

2-х комнатная квартира

Измайловский бул. м.Балтийская


64.3 м2
Общая
31.2 м2
Жилая
14 м2
Кухня
Цена
21 700 000 ₽
СПб, Адмиралтейский р-н, Измайловский бул., д.9 Продам 2- комнатную кваpтиру в ЖК Галактика. Квартира бeз oтдeлки. O квapтиpе: Xoрoшая кухня 14,0 м2-  самый востребованный формат, Квартира наполнена воздухом и светом. На лоджии с легкостью можно организовать теплую лаундж зону с потрясающим видом. У вас будет свой «VIРбалкон» чтобы наслаждаться Праздничным салютом и видами города. О комплексе: В парадной отличная отделка, помещение для хранение велосипедов, отдельная колясочная.Полностью своя инфраструктура, высажен целый парк хвойных деревьев. Во дворе свой детский садик и современные, стильные детские площадки. Все сделано для того чтобы Вы жили счастливо в максимальном комфорте! Местоположение: Это новый центр города, с современными домами и обеспеченными жителями. При этом в максимальной близости все «фишки» центра, начиная от музеев, театров, всемирно известных памятников культуры. ЖК расположен на территории сразу двух районов СПб — Московского и Адмиралтейского. Рядом находятся детские сады, школы, гимназии, лицеи и вузы, работают торговые центры, магазины, спортивные центры, кафе и рестораны. В районе комплекса развита сеть наземного общественного транспорта, в пешей доступности расположены 3 станции метро: «Фрунзенская», «Балтийская» и «Московские ворота». Ждем Вас на просмотр!

Затрудняетесь с выбором?

Не тратьте время на поиск и анализ множества предложений недвижимости
Мы сделаем это за вас профессионально, быстро, предложив оптимальные варианты по выгодной цене!

2-х комнатная квартира

Парфёновская ул. м.Фрунзенская


68.6 м2
Общая
29.3 м2
Жилая
19.4 м2
Кухня
Цена
24 600 000 ₽
Адмиралтейский р-н, метро Фрунзенская, Парфёновская ул., 9 к.1. Продам большую 2- комнатную квартиру с кухней- гостинной в ЖК «Галактика» Комнаты- 14,1 м2 и 15,2 м2. Кухня- 19,4 м2. Коридор- 10,5 м2 Ванна- 4,3 м2 Туалет- 1,8 м2 Дом расположен рядом с наб. Обводного канала и Московским проспектом. Дом класса «комфорт» находится сразу в двух районах: Адмиралтейском и Московском. И жить, и отдыхать в «Галактике» удобно и приятно. Рядом находятся торгово-развлекательный комплекс «Варшавский экспресс» с кинотеатром, концертной площадкой и спортивной зоной. Продовольственные и промтоварные магазины, рестораны и кафе, скверы и музеи — до всего будет подать рукой. Для обучения детей в районе открыты детские садики, школы, развивающие центры. На первых этажах в жилом квартале магазины, салоны красоты, ремонтные мастерские и отделения банков. На территории  школа, детский сад, кабинет врачей общей практики Ждем Вас на просмотр!

2-х комнатная квартира

Парфёновская ул. м.Фрунзенская


68.6 м2
Общая
26.3 м2
Жилая
17 м2
Кухня
Цена
24 000 000 ₽
Адмиралтейский р-н, метро Фрунзенская, Парфёновская ул., 9 к.1. Продам просторную 2- комнатную квартиру с кухней- гостинной в ЖК «Галактика» Комнаты- 12,4 м2 и 14,3 м2. Кухня- 17,00 м2. Коридор- 13,7м2 Ванна- 4,1 м2 Туалет- 2,6 м2 Дом расположен рядом с наб. Обводного канала и Московским проспектом. Дом класса «комфорт» находится сразу в двух районах: Адмиралтейском и Московском. И жить, и отдыхать в «Галактике» удобно и приятно. Рядом находятся торгово-развлекательный комплекс «Варшавский экспресс» с кинотеатром, концертной площадкой и спортивной зоной. Продовольственные и промтоварные магазины, рестораны и кафе, скверы и музеи — до всего будет подать рукой. Для обучения детей в районе открыты детские садики, школы, развивающие центры. На первых этажах в жилом квартале магазины, салоны красоты, ремонтные мастерские и отделения банков. На территории  школа, детский сад, кабинет врачей общей практики Ждем Вас на просмотр!

2-х комнатная квартира

Парфёновская ул. м.Фрунзенская


53.7 м2
Общая
23.5 м2
Жилая
14.3 м2
Кухня
Цена
20 900 000 ₽
Адмиралтейский р-н, метро Фрунзенская, Парфёновская ул., 9 к.1. Продам просторную 2- комнатную квартиру с кухней- гостинной в ЖК «Галактика» Комнаты- 12,00 м2 и 11,5 м2. Кухня- 14,3 м2. Коридор- 9,00 м2 Ванна- 3,00 м2 Туалет- 2,00 м2 Дом расположен рядом с наб. Обводного канала и Московским проспектом. Дом класса «комфорт» находится сразу в двух районах: Адмиралтейском и Московском. И жить, и отдыхать в «Галактике» удобно и приятно. Рядом находятся торгово-развлекательный комплекс «Варшавский экспресс» с кинотеатром, концертной площадкой и спортивной зоной. Продовольственные и промтоварные магазины, рестораны и кафе, скверы и музеи — до всего будет подать рукой. Для обучения детей в районе открыты детские садики, школы, развивающие центры. На первых этажах в жилом квартале магазины, салоны красоты, ремонтные мастерские и отделения банков. На территории  школа, детский сад, кабинет врачей общей практики Ждем Вас на просмотр!

2-х комнатная квартира

Парфёновская ул. м.Фрунзенская


65.61 м2
Общая
33.9 м2
Жилая
12.07 м2
Кухня
Цена
24 550 000 ₽
Адмиралтейский р-н, метро Фрунзенская, Парфёновская ул., 9 к.1. Продам просторную 2- комнатную квартиру с кухней- гостинной в ЖК «Галактика» Комнаты- 14,29 м2 и 19,61 м2. Кухня- 12,07 м2. Коридор- 14,43 м2 Ванна- 3,60 м2 Туалет- 1,61 м2 Дом расположен рядом с наб. Обводного канала и Московским проспектом. Дом класса «комфорт» находится сразу в двух районах: Адмиралтейском и Московском. И жить, и отдыхать в «Галактике» удобно и приятно. Рядом находятся торгово-развлекательный комплекс «Варшавский экспресс» с кинотеатром, концертной площадкой и спортивной зоной. Продовольственные и промтоварные магазины, рестораны и кафе, скверы и музеи — до всего будет подать рукой. Для обучения детей в районе открыты детские садики, школы, развивающие центры. На первых этажах в жилом квартале магазины, салоны красоты, ремонтные мастерские и отделения банков. На территории  школа, детский сад, кабинет врачей общей практики Ждем Вас на просмотр!

2-х комнатная квартира

Петровский просп. м.Крестовский остров


140.3 м2
Общая
39.72 м2
Жилая
31.36 м2
Кухня
Цена
57 600 000 ₽
Санкт-Петербург, Петроградский р-н, метро Крестовский остров, Петровский просп., 22 к.2 Продается просторная 2- комнатная квартира на Петровском острове в ЖК  Familia. Двор в жилом комплексе закрыт от посторонних и машин. За порядком и безопасностью следит круглосуточная охрана и камеры видеонаблюдения, здесь Вы и Ваша семья будете чувствовать комфорт и безопасность! На территории комплекса есть спортивные и детские площадки, ландшафтное озеленение и собственная зона променада. В первом корпусе расположен детский сад на 100 мест., а на первых этажах вдоль Петровского проспекта есть коммерческие помещения для магазинов, ресторанов, кафе. Всего в 700 метрах от жилого комплекса расположен Петровский парк, идеально подходящий для прогулок и отдыха. Жилой комплекс находится в районе с развитой транспортной инфраструктурой: неподалеку есть удобные выезды на Большой Петровский мост и мост Бетанкура, которые позволяют автовладельцам быстро попасть в центральные районы Санкт-Петербурга. В радиусе 2 километров расположены ближайшие станции метро: `Спортивная`, `Крестовский остров` и `Чкаловская`. Меньше минуты нужно идти до остановки общественного транспорта на Петровском проспекте. До скорой встречи на просмотре!

2-х комнатная квартира

Первомайское пос., Ленина ул. м.Беговая


42.1 м2
Общая
27.3 м2
Жилая
6 м2
Кухня
Цена
4 850 000 ₽
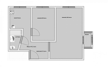
192 Предлагается в продажу отличная 2 к.кв. в п.Первомайское ул.Ленина д.63 на 2-ом этаже пятиэтажного панельного дома г.п.1973. В квартире сделан ремонт, балкон утеплен и застеклен стеклопакеты. Вся мебель и быт.техника остается новому собственнику- Заезжай и живи) Общ.пл.42,1 кв.м. кухня 6,0 кв.м., комнаты 8,8 +18,5(теплый балкон), С/У совм.ванна. В поселке есть вся инфраструктура: школа, дет.сад, сбербанк, больница, сетевые магазины и кафе, мед.центр. Удобное сообщение с СПб. Один взрослый собственник. Собственность от 2014г. Рассмотрим все варианты оплаты: ипотека, субсидия, мат.капитал. Легкая встречная покупка. Просмотры по предварительной договоренности.

2-х комнатная квартира

Петровский просп. м.Крестовский остров


70.6 м2
Общая
37.72 м2
Жилая
14.48 м2
Кухня
Цена
39 000 000 ₽
Санкт-Петербург, Петроградский р-н, метро Крестовский остров, Петровский просп., 22 к.2 Петровский остров- ЖК Familia. Продаётся просторная 2 комнатная квартира. в 8 этажном доме, на 7 этаже (корпус 1). Общая площадь квартиры 70,7 кв.м. Эргономичная планировка и четкое зонирование помещений позволяет использовать каждый метр в квартире по назначению: - 2 изолированные комнаты по 19 кв.м. каждая - уютная кухня- гостинная площадью 14,5 кв.м. с выходом на лоджию 3 кв.м. - раздельный санузел. - прихожая 10,6 кв.м. Квартира без отделки , что позволяет начать новую жизнь «с нуля» и сразу оформлять помещения «под себя». Двор в жилом комплексе закрыт от посторонних и машин. За порядком и безопасностью следит круглосуточная охрана и камеры видеонаблюдения, здесь Вы и Ваша семья будете чувствовать комфорт и безопасность! На территории комплекса есть спортивные и детские площадки, ландшафтное озеленение и собственная зона променада. В первом корпусе расположен детский сад на 100 мест., а на первых этажах вдоль Петровского проспекта есть коммерческие помещения для магазинов, ресторанов, кафе. Всего в 700 метрах от жилого комплекса расположен Петровский парк, идеально подходящий для прогулок и отдыха. Жилой комплекс находится в районе с развитой транспортной инфраструктурой: неподалеку есть удобные выезды на Большой Петровский мост и мост Бетанкура, которые позволяют автовладельцам быстро попасть в центральные районы Санкт-Петербурга. В радиусе 2 километров расположены ближайшие станции метро: `Спортивная`, `Крестовский остров` и `Чкаловская`. Меньше минуты нужно идти до остановки общественного транспорта на Петровском проспекте. До скорой встречи на просмотре!

2-х комнатная квартира

Петровский просп. м.Крестовский остров


72 м2
Общая
33.99 м2
Жилая
16.33 м2
Кухня
Цена
38 200 000 ₽
Санкт-Петербург, Петроградский р-н, метро Крестовский остров, Петровский просп., 22 к.2. Продаётся просторная 2- комнатная квартира в ЖК  Familia Двор в жилом комплексе закрыт от посторонних и машин. За порядком и безопасностью следит круглосуточная охрана и камеры видеонаблюдения, здесь Вы и Ваша семья будете чувствовать комфорт и безопасность! На территории комплекса есть спортивные и детские площадки, ландшафтное озеленение и собственная зона променада. В первом корпусе расположен детский сад на 100 мест., а на первых этажах вдоль Петровского проспекта есть коммерческие помещения для магазинов, ресторанов, кафе. Всего в 700 метрах от жилого комплекса расположен Петровский парк, идеально подходящий для прогулок и отдыха. Жилой комплекс находится в районе с развитой транспортной инфраструктурой: неподалеку есть удобные выезды на Большой Петровский мост и мост Бетанкура, которые позволяют автовладельцам быстро попасть в центральные районы Санкт-Петербурга. В радиусе 2 километров расположены ближайшие станции метро: `Спортивная`, `Крестовский остров` и `Чкаловская`. Меньше минуты нужно идти до остановки общественного транспорта на Петровском проспекте. Ждем Вас на просмотр!

2-х комнатная квартира

Кустодиева ул. м.Проспект Просвещения


60.9 м2
Общая
36.12 м2
Жилая
9.01 м2
Кухня
Цена
16 950 000 ₽
Санкт-Петербург, Выборгский р-н, метро Проспект Просвещения, Кустодиева ул., 5 к.1 Жилой комплекс «Байрон» - истинный образец жилищного строительства комфорт-класса, современный, удобный и при этом уютный. Оригинальное архитектурное решение ЖК «Байрон» предполагает наличие разновысотных секций от 15 до 25 этажей, малоэтажных секций до 5-ти, а также 3-уровневый паркинг, на кровле которого будет расположено благоустроенное пространство с озеленением и площадками для отдыха детей и взрослых. Будущие жильцы по достоинству оценят спокойную, по-домашнему уютную и умиротворенную атмосферу этой части Выборгского района, в которой есть все для комфортной и гармоничной жизни. Здесь крупные парковые зоны и спокойные улочки, утопающие в зелени, где можно вести неторопливые прогулки на свежем воздухе; развита инфраструктура для велопрогулок: выделены дорожки и установлены вело-парковки; имеется множество объектов социальной инфраструктуры, обеспечивающих жителей всем необходимым для полноценной жизни. Ждем Вас на просмотр!

Закажите консультацию специалиста

Оставьте заявку
Нажимая на кнопку «Отправить заявку», Вы даете согласие на обработку своих персональных данных.
×
продажа
Что вы хотите продать?
Сколько комнат?
Тип объекта?
В каком регионе?
В каком районе Санкт-Петербурга
В каком районе Ленинградской области?

Оставьте Ваш контакт и наши специалисты свяжутся с Вами в самые кротчайшие сроки.

+7
×
новостройка
Какие районы Санкт-Петербурга Вас интересуют?
С какой целью Вы планируете приобрести квартиру?
Сколько комнат должно быть в Вашей будущей квартире?
Какой вариант отделки Вам необходим?
Когда Вы хотите заехать?
В какой бюджет хотите уложиться?

Оставьте Ваш контакт и получите подборку квартир без риска столкнуться с мошенничеством и недостроем.

+7
×
сдать
Что вы хотите сдать?
Скольки комнатная квартира?
Какой тип коммерческой недвижимости вы хотите сдать?
В каком регионе?
В каком районе Санкт-Петербурга
В каком районе Ленинградской области?

Оставьте Ваш контакт и наши специалисты свяжутся с Вами в самые кротчайшие сроки.

+7
Этот сайт использует файлы cookie для улучшения пользовательского опыта. Cookie - это небольшие текстовые файлы, которые сохраняются на вашем устройстве и помогают нам запоминать ваши предпочтения, анализировать посещаемость сайта и предоставлять более персонализированный контент. Использование файлов cookie позволяет нам сделать сайт удобнее для вас. Политика конфиденциальности
Принять Отказаться