3-х комнатная квартира

ЛО, Всеволожский, Всеволожск г., Обороны ул.   Посмотреть на карте

Номер объекта: 326155
Цена на м2: 107 153

Время работы Call Центра:

ПН-ПТ с 9-30 до 22-00

СБ-ВС с 10-00 до 22-00

Нажимая на кнопку «Позвонить мне», Вы даете согласие на обработку своих персональных данных.

Описание

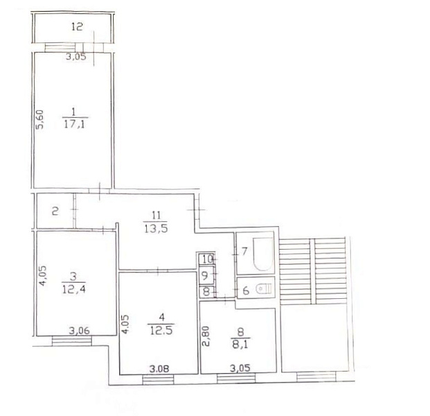
Город Всеволожск, улица Обороны, дом 3, корп. 1. Продается просторная и светлая трехкомнатная квартира площадью 72.7 кв. метров на пятом этаже пятиэтажного дома Гатчинской серии. Три отдельные комнаты 17,1, 12,5 и 12,4 кв метров, из большой комнаты выход на застекленную широкую лоджию. Огромная прихожая 13,5кв. метров позволяет разместить как большой шкаф для хранения, так и зону отдыха или библиотеку. Так же есть вместительная гардеробная 2 кв. метра. В отдельном коридоре, ведущем на квадратную кухню  8,1 кв метров, очень светлую, с большим окном, расположены раздельные туалет и ванная комната. В последней легко становится стиральная машина, а так же установлен водогрей на случай летнего профилактического отключения горячей воды. так же в коридоре есть встроенный шкаф для хранения и антресоли. Кухня и две комнаты выходят окнами во двор, в 100 метрах находится школа №3. Комната с лоджией выходят на зеленые насаждения и частный сектор. Проблемы со смотрящими в окна соседями нет. Чистая парадная и домофон. Район тихий и очень зеленый, рядом парк  Софиевка. В пешей доступности вся нужная инфраструктура: школа, детский сад №10, аптеки, магазины, в 7 минутах станция Бернгардовка, откуда 30 мин до Финляндского вокзала. Два собственника, несложная встречная покупка. Квартира подойдет большой семье, а так же тем, кто работает в городе Санкт-Петербург и хочет добираться без пробок. Низкая цена для большой, просторной квартиры. Звоните, просмотр по договоренности. Рассмотрим любые предложения.

Расположение

Адрес
Всеволожск г., Обороны ул., 3
Метро
Улица Дыбенко
Район
Всеволожский
Город
Всеволожск
Регион
Ленинградская область

Площади, м2

Жилая площадь
42
Общая площадь
72.7
Площадь ванной
2.6
Площадь кухни
8.1
Площадь прихожей
13.5
Площадь санузла
1.3

Параметры

Входная дверь
двойная
Горячее водоснабжение
Центральное
Дата постройки
1992
Комнат
3
Лифт
Нет
Плита
Газовая
Сан. узел
Раздельный
Состояние
Хорошее
Вход
со двора
Дом
Панельный
Этаж
5
Этажность
5
Ипотека
Да

Узнайте больше об объекте

Получите консультацию специалиста

Нажимая на кнопку «Отправить заявку», Вы даете согласие на обработку своих персональных данных.

Объект на карте

Похожие объекты

Затрудняетесь с выбором?

Не тратьте время на поиск и анализ множества предложений недвижимости
Мы сделаем это за вас профессионально, быстро, предложив оптимальные варианты по выгодной цене!

Затрудняетесь с выбором?

Не тратьте время на поиск и анализ множества предложений недвижимости
Мы сделаем это за вас профессионально, быстро, предложив оптимальные варианты по выгодной цене!

Затрудняетесь с выбором?

Не тратьте время на поиск и анализ множества предложений недвижимости
Мы сделаем это за вас профессионально, быстро, предложив оптимальные варианты по выгодной цене!

Затрудняетесь с выбором?

Не тратьте время на поиск и анализ множества предложений недвижимости
Мы сделаем это за вас профессионально, быстро, предложив оптимальные варианты по выгодной цене!

Этот сайт использует файлы cookie для улучшения пользовательского опыта. Cookie - это небольшие текстовые файлы, которые сохраняются на вашем устройстве и помогают нам запоминать ваши предпочтения, анализировать посещаемость сайта и предоставлять более персонализированный контент. Использование файлов cookie позволяет нам сделать сайт удобнее для вас. Политика конфиденциальности
Принять Отказаться