Продажа квартир и комнат

Комнаты
Например: Массальского, 4
Ванные
3-х комнатная квартира

Студенческая ул. м.Лесная


81.3 м2
Общая
49.26 м2
Жилая
15.34 м2
Кухня
Цена
22 830 000 ₽
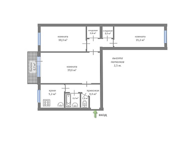
ул. Студенческая, д. 14, корп.1. метро Лесная, Черная речка В продаже трехкомнатная квартира в новом доме в пешей доступности от метро Лесная и Черная речка. Дом сдан. Собственность. Квартира без отделки. Полная цена в договоре. Двухсторонняя планировка. Вид на Север-Западную и Южную стороны. В квартире всегда будет светло и уютно за счет вида на 2 стороны: во двор в сторону Пионерского сада и на Земледельческую! Просторная кухня-гостиная - 15,34 кв метров с лоджией - 2,28 кв м. Удобная прихожая - 8,37 кв м. с вместительной гардеробной - 2,32 кв.м. Все комнаты правильной формы и оптимальные по площади. В жилом комплексе: - подземный паркинг - современные детские площадки; - продуктовые магазины, банки, кафе, рестораны; - до станции метро Лесная 20 минут пешком; - престижный Приморский район; - до центра города 15 минут на машине; - закрытая территория. В шаговой доступности находятся детские сады, школы, медицинские учреждения, аптеки, продовольственные магазины, торгово-развлекательные центры и парки. Прямая продажа.  Просмотры по предварительной договоренности.

3-х комнатная квартира

Романовка пос. м.Ладожская


65.7 м2
Общая
45.7 м2
Жилая
9.8 м2
Кухня
Цена
5 500 000 ₽
Квартира во Всеволожском районе, п.Романовка, 14 км Дороги Жизни. Техкомнатная квартира общей площадью 65,7 м., просторная кухня- 9,8 м, жилая площадь- 45,7 м. Квартира требует ремонта. Один совершеннолетний собственник. Прямая продажа! Обременений и долгов нет! Быстрый выход на сделку! Документы готовы. Рассматриваем любую форму оплаты: ипотека, субсидия и тд.

3-х комнатная квартира

Елизаветино пос., Дружбы пл. м.Проспект Ветеранов


57.6 м2
Общая
46 м2
Жилая
6.9 м2
Кухня
Цена
3 200 000 ₽
Трёхкомнатная квартира в посёлке Елизаветино: комфорт и удобство в Ленинградской области Предлагаем вам прекрасную возможность стать обладателем уютной трёхкомнатной квартиры в посёлке Елизаветино, расположенном вблизи города Гатчины. Это место, где вы сможете наслаждаться спокойствием и красотой природы, не отказывая себе в комфорте городской жизни. Состояние квартиры: Хорошее состояние, требующее незначительного ремонта. Санузел и кухня отделаны кафелем. В комнатах линолеум. Есть большой балкон, который можно использовать по своему усмотрению. Инфраструктура посёлка: Всё необходимое для комфортной жизни: детский сад, школа и другие социальные объекты. Удобное автобусное и железнодорожное сообщение с Гатчиной и Санкт-Петербургом. За час на электричке вы окажетесь в центре Санкт-Петербурга. Автобусное сообщение с Гатчиной ходит каждые 20–30 минут, дорога займёт всего полчаса. Природные красоты: Рядом с посёлком есть прекрасные места для отдыха и купания: «Борницкие карьеры». В 15 минутах на автомобиле находится исток реки Оредеж. Пруд «Кюрлевский карьер» с голубой водой и белыми берегами станет идеальным местом для отдыха на природе. Не упустите свой шанс стать обладателем уютной квартиры в живописном месте Ленинградской области. Свяжитесь с нами сегодня, чтобы узнать больше о покупке или аренде этой замечательной квартиры.

Затрудняетесь с выбором?

Не тратьте время на поиск и анализ множества предложений недвижимости
Мы сделаем это за вас профессионально, быстро, предложив оптимальные варианты по выгодной цене!

3-х комнатная квартира

Первомайское 1-е (Тайвань) м.Беговая


42 м2
Общая
31.6 м2
Жилая
4 м2
Кухня
Цена
1 600 000 ₽
192  Предлагается в продажу  3 к.кв. Лен.обл. Выборгский р-он п.Первомайское-1 ур.д.4. на 3-ем этаже трехэтажного кирпичного дома г.п.1972. В 13 км. от п. Первомайское. От ж/д Рощино (27 км). Общ.42 кв.м./31,6, планировка смежно-изолированная комната 9,7+12,4+9,5. Окна стеклопакеты. В поселке есть своя котельная, вода горячая через бойлер, плита электрическая. Поселок расположен в окружении леса, грибные и ягодные места. Отличное предложение для загородной  кто устал от городской суеты. Взрослый собственник. Прямая продажа. Расписание автобуса №124 от Рощино 5-55;8-05;13-25;17-00;19-10 от Первомайское-1(Тайвань) 6-50; 8-50;14-50;18-00;19-50.

3-х комнатная квартира

Кондратьевский просп. м.Лесная


55.9 м2
Общая
40 м2
Жилая
5.1 м2
Кухня
Цена
8 690 000 ₽
Продается 3-х комнатная квартира в кирпичном доме. О квартире: большая комната, с выходом на балкон, проходная и 2 комнаты по 11 кв.м. раздельные, две кладовки, раздельный СУ. Окна кухни и 2-х комнат выходят во двор и одной комнаты на Кондратьевский проспект. Чистая парадная, после ремонта. Во дворе много зелени, большая детская площадка, есть места для парковки автомобиля. Окружение: остановка общественного транспорта на против дома, через дорогу Сбербанк и Магнит. В районе практически нет высотных зданий, много зелени. В шаговой доступности лицей и детский садик. Сделка: два взрослых собственника более 5 лет, первая продажа, без перепланировок, легкая встречная покупка. Просмотры по договоренности.

3-х комнатная квартира

Пионерская ул. м.Крестовский остров


109.1 м2
Общая
70 м2
Жилая
14 м2
Кухня
Цена
27 300 000 ₽
Квартира, назначение жилое, общая площадь 109,1 кв.м. С гордостью представляем первую в Петербурге резиденцию `Премьер Палас`, расположенную на берегу Невы, напротив зелени скверов Крестовского острова, в исторической части Петроградки. ЖК `Премьер Палас` - это не просто жилой комплекс от известного застройщика Л1, а настоящая клубная резиденция класса Lux! Местоположение комплекса вызывает заслуженную зависть у жителей спальных районов. Театры, архитектурные памятники, музеи - все это находится в пределах шаговой доступности. Любителей спорта, концертов и фестивалей порадует близость дворца спорта `Юбилейный`. Еще одним несомненным достоинством жилого комплекса `Премьер Палас` является отличная социальная инфраструктура. Всего элитных школ, лицеев гимназий, и в нем же сосредоточены лучшие ВУЗы города. К безопасности жильцов ЖК `Премьер Палас` застройщик Л1 подошел весьма серьезно и основательно. Закрытая территория, круглосуточная охрана, сигнализация и другие меры безопасности делают невозможным проникновение постороннего на территорию без специального приглашения. Автолюбителям не придется волноваться за сохранность своего транспортного средства, поскольку подземный паркинг находится под видеонаблюдением. Внутренняя отделка квартир и пентхаусов не оставит равнодушным даже самого взыскательного покупателя. Многоуровневые пентхаусы - еще одна отличительная особенность жилого комплекса `Премьер Палас`. Приобретение квартиры в элитном комплексе от застройщика Л1 может стать Вашим счастливым билетом, т к со временем стоимость таких квартир будет все время увеличиваться. От панорамных видов на Адмиралтейство и водную гладь малой Невки захватывает дух, подсветка Лазаревского моста в ночное время производит неизгладимое впечатление. ЖК `Премьер Палас` полностью введен в эксплуатацию. Разрешение на ввод третьей, последней очереди было получено на полгода раньше заявленного срока.

3-х комнатная квартира

Луга г., Кирова просп.


71.9 м2
Общая
42.1 м2
Жилая
8.6 м2
Кухня
Цена
6 390 000 ₽
Продается трехкомнатная квартира в Луге на проспекте Кирова 22 к 2 Площадь квартиры 71,9 кв.м., кухня 8,6 кв.м. Дом панельный 1991 года постройки 4 этаж пятиэтажного дома Санузел раздельный, есть лоджия Вид из окон во двор Коммуникации: Горячее и холодное водоснабжение Газоснабжение Хорошее месторасположение, центр города, так же недалеко река Луга и зоны отдыха с барбекю на берегу, сосновый бор Рядом вся необходимая инфраструктура, детские сады, школы, магазины, пункты выдачи онлайн заказов, спорт залы и тд. Тихие и приличные соседи. Документы готовы к продажи, быстрый выход на сделку, юридическое сопровождение.

3-х комнатная квартира

Шугозеро пос., Лесная ул. м.Ломоносовская


47.9 м2
Общая
34.3 м2
Жилая
5.8 м2
Кухня
Цена
550 000 ₽
Ленинградская область, Тихвинский район, п.Шугозеро, ул.Лесная д.4. Продаётся трехкомнатная квартира в двухэтажном деревянном доме.Общая площадь 47,9кв.м, из них: прихожая-6кв.м; комната-15,9кв.м; комната-9,5кв.м; комната-8,9кв.м; кухня-5,8кв.м; туалет-1,8кв.м; тамбур-0,6кв.м. Квартира без удобств. Отопление печное, газ-привозной (баллон), вода-колонка (у дома). Поселок с хорошо развитой инфраструктурой, есть все необходимое для комфортного проживания и проведения досуга: средняя общеобразовательная школа, детский сад, дом культуры, аптека, отделение Сбербанка, МФЦ, магазины различного назначения, пункт выдачи OZON, больница, почта и т.д. Отличное транспортное сообщение с г.Санкт-Петербург, ежедневно курирует автобус 869 с Обводного канала. Ближайший административный центр г.Тихвин, несколько раз в день ездит автобус 165. Красивые живописные места, чистейший воздух, шикарный сосновый лес, три прекрасных озера, река `Паша` для ценителей природы, охоты и рыбалки. Один совершеннолетний собственник, без долгов и обременений. Прямая продажа. Звоните, отвечу на все интересующие Вас вопросы, просмотры в удобное для Вас время, по предварительной договорённости.

3-х комнатная квартира

Купчинская ул. м.Купчино


62.2 м2
Общая
39.4 м2
Жилая
9.4 м2
Кухня
Цена
8 800 000 ₽
Санкт-Петербург, Фрунзенский район, улица Купчинская, д.33 литера А М `Купчино` - 1,35 км М `Дунайская` - 2,08 км М Звездная` - 3,4 км Для вас есть хорошее предложение: трёхкомнатная квартира в 10 мин ходьбы  от  метро `Купчино` с чистой историей. Первый собственник квартиры!  Квартира двухсторонняя с удобной планировкой,  окна двух комнат и кухни смотрят в зеленый двор,  окно и балкон третьей комнаты  -  на тихую  улицу. В квартире заменены все трубы включая канализацию. В двух комнатах паркет из красного дерева, а в  гостиной и коридоре  на полу дубовый паркет.В квартире деревянные двойные окна , балкон застеклен . В начале февраля 2025 года  поменяна газовая плита с газ контролем и газовый счетчик.   ИНФРАСТРУКТУРА: район с отлично развитой инфраструктурой, во дворе находится Средняя общеобразовательная школа № 312 с углубленным изучением французского языка, большое разнообразие различных магазинов, поликлиника и многое другое. Много зелени, есть где погулять с детьми или своими питомцами. ТРАНСПОРТНАЯ ДОСТУПНОСТЬ: много общественного транспорта, что позволяет быстро доехать до центра города, а за 10 минут спокойно дойти до станции метро `Купчино`. Собственность более 35 лет . Делайте свой выбор и приходить посмотреть нашу квартиру! Ждем вас на просмотр! До скорых встреч!

Комната в 3-комн. квартире

Молодежное пос., Правды ул. м.Беговая


54.3 м2
Общая
11.4 м2
Жилая
5 м2
Кухня
Цена
2 100 000 ₽
Продается   комната 11,4 в п. Молодежное    Курортного   района Спб  в 3 к квартире.   Дом кирпичный,теплый.   окна  выходят на сквер.  квартира  чистая ,аккуратная Постоянно проживает  1  собственница.     Прописка  Спб. Рядом  санаторий Черная Речка, финский залив   ,лес.

3-х комнатная квартира

Всеволожск г., Балашова ул. м.Ладожская


94.6 м2
Общая
52.9 м2
Жилая
14.2 м2
Кухня
Цена
11 400 000 ₽
Ленинградская обл.Всеволожский р-н, г.Всеволожск, ул.Балашова, д.3. Просторная трехкомнатная квартира на 5 этаже 10-и этажного панельного дома. Все комнаты изолированные.  Очень удобный ; выход из кухни  на застекленную  большую  лоджию.  Квартира двусторонняя(восток-запад). Два санузла . Отличное месторасположение дома, в сравнительно   новом   микрорайоне застройки. В шаговой доступности школа, д\сад, спортивный комплекс с бассейном, ЦРБ, сетевые магазины. В пешей доступности парк Песчанка: с ледовой ареной , концертной площадкой и зонами отдыха.  Рядом  остановки общественного транспорта и маршруток.  Собственник один, право собственности более  5 лет. Отличное предложение для постоянного проживания  в зеленом пригороде СПб

3-х комнатная квартира

Волосово г., Федора Афанасьева ул. м.Проспект Ветеранов


72 м2
Общая
43.8 м2
Жилая
8.5 м2
Кухня
Цена
5 850 000 ₽
Ленинградская область г. Волосово ул. Федора Афанасьева д. 14 Добро пожаловать в новый дом вашей мечты! Представляем вам просторную трехкомнатную квартиру на последнем этаже, которая подарит вам ощущение свободы и уединенности. Живописные виды: В этой квартире каждый день начинается с завораживающего вида из окон. Птицы парят в небе, а город под ногами открывает свои секреты. Уют и комфорт: Пространство квартиры продумано до мелочей. Изолированные комнаты обеспечивают личное пространство для каждого члена семьи, а большая кухня — это идеальное место для семейных ужинов и вечеров встреч с друзьями. Застекленная лоджия приглашает наслаждаться теплыми летними вечерами и уютными зимними днями с чашкой горячего чая. Удобство хранений: Комфортная гардеробная станет вашим надежным хранителем всех модных коллекций, а также поможет сохранить порядок и гармонию в доме. Центр жизненной активности: Развитая инфраструктура района позаботится о каждом аспекте вашей жизни. Магазины, школы, медицинские учреждения — все находится в непосредственной близости. Легкость передвижения: Хорошая транспортная доступность позволяет быстро добираться до центра, при этом оставаясь в спокойствии и уюте своего дома. Юридическая чистота: Один взрослый собственник, который более пяти лет заботился о вашем будущем жилище, сделает покупку квартиры для вас абсолютно безопасной и стабильной. Эта квартира — ваш шанс обрести комфортное жилье, где каждый день приносит удовольствие и радость. Не упустите возможность изменить свою жизнь к лучшему. Свяжитесь с нами, чтобы назначить просмотр, и откройте новую страницу вашего семейного счастья!

Закажите консультацию специалиста

Оставьте заявку
Нажимая на кнопку «Отправить заявку», Вы даете согласие на обработку своих персональных данных.
×
продажа
Что вы хотите продать?
Сколько комнат?
Тип объекта?
В каком регионе?
В каком районе Санкт-Петербурга
В каком районе Ленинградской области?

Оставьте Ваш контакт и наши специалисты свяжутся с Вами в самые кротчайшие сроки.

+7
×
новостройка
Какие районы Санкт-Петербурга Вас интересуют?
С какой целью Вы планируете приобрести квартиру?
Сколько комнат должно быть в Вашей будущей квартире?
Какой вариант отделки Вам необходим?
Когда Вы хотите заехать?
В какой бюджет хотите уложиться?

Оставьте Ваш контакт и получите подборку квартир без риска столкнуться с мошенничеством и недостроем.

+7
×
сдать
Что вы хотите сдать?
Скольки комнатная квартира?
Какой тип коммерческой недвижимости вы хотите сдать?
В каком регионе?
В каком районе Санкт-Петербурга
В каком районе Ленинградской области?

Оставьте Ваш контакт и наши специалисты свяжутся с Вами в самые кротчайшие сроки.

+7
Этот сайт использует файлы cookie для улучшения пользовательского опыта. Cookie - это небольшие текстовые файлы, которые сохраняются на вашем устройстве и помогают нам запоминать ваши предпочтения, анализировать посещаемость сайта и предоставлять более персонализированный контент. Использование файлов cookie позволяет нам сделать сайт удобнее для вас. Политика конфиденциальности
Принять Отказаться