Продажа квартир и комнат

Комнаты
Например: Массальского, 4
Ванные
2-х комнатная квартира

Ириновский просп. м.Ладожская


51.8 м2
Общая
29.8 м2
Жилая
7.8 м2
Кухня
Цена
8 500 000 ₽
В Красногвардейском районе СПБ , продается 2 комнатная квартира на 9 этаже , 12этажного дома на Ириновском проспекте . Ремонт в квартире был сделан но давно . Квартира в чистом состоянии но без евроремонта. Продается частично с мебелью . В квартире ни кто не проживает . Окна выходят на улицу, но ни чего с улицы не слышно , так как огромная лоджия , застекленная . В подъезде  два лифта , грузовой и пассажирский . До метро Ладожской 15 минут на автобусе. Можно еще доехать до метро площадь Ленина. Рядом остановки трамвая и автобусов  общественного транспорта . Вся инфраструктура в шаговой доступности. Хорошая придомовая территория, с площадками .  Квартира без обременения и задолжности , без опеки.

2-х комнатная квартира

Ломоносов г., Владимирская ул. м.Беговая


37.2 м2
Общая
25.2 м2
Жилая
5.5 м2
Кухня
Цена
4 300 000 ₽
квартира площадью 37,2 кв.м., расположенная по адресу: г. Санкт-Петербург, г. Ломоносов, ул. Владимирская, д. 18а Данный объект реализуется через электронные торги. Это значит: - Конечная стоимость покупки объекта на торгах, как правило, ниже рыночной стоимости на 20-30%. - Процедура торгов регламентируется федеральным законом, что делает сделку безопасной. Мы всегда работаем только с одним клиентом по одному объекту, чтобы клиент получил возможность приобретения по самой выгодной цене. Наша компания сопровождает сделку до получения клиентом права собственности. Не упустите свою выгодную покупку! Позвоните и запишитесь к нам на консультацию для получения более подробной информации. Предложение ограничено по времени!

2-х комнатная квартира

Глобицы дер., Октябрьская ул. м.Проспект Ветеранов


44.2 м2
Общая
28 м2
Жилая
5 м2
Кухня
Цена
2 400 000 ₽
Ломоносовский р-он, д. Глобицы, ул. Октябрьская д.2 Квартира на втором этаже. Изолированная планировка, раздельный сан. узел. Хорошее, пригодное для проживания состояние, пол ламинат, установлены стеклопакеты. Все документы в наличии, прямая продажа. Готовы к рассмотрению материнского капитала. Просмотры по договорённости.

Затрудняетесь с выбором?

Не тратьте время на поиск и анализ множества предложений недвижимости
Мы сделаем это за вас профессионально, быстро, предложив оптимальные варианты по выгодной цене!

2-х комнатная квартира

Галерная ул. м.Адмиралтейская


65.3 м2
Общая
36 м2
Жилая
6 м2
Кухня
Цена
10 920 000 ₽
В продаже 2-комнатная квартира по адресу: г.Санкт-Петербург, ул. Галерная, д.46. Квартира, общей площадью 65,3 кв.м, расположена на 3-ем этаже купеческого дома Овандеров, в историческом центре города, в Адмиралтейском районе. Дом построен в конце 18 века для купца Еремея Бардевика. До 1868 года домом владели наследники Бардевика. После, его владельцем стал купец Яков Овандер. Вплоть до революции, до 1917 года, дом принадлежал семье Овандеров. До наших дней внешний вид дома не претерпел никаких изменений и сохранился в историческом виде. В соответствии с распоряжением председателя КГИОП С.В. Макарова от 22.03.2017 года «Дом Овандеров»  включен в единый государственный реестр в качестве объекта культурного наследия регионального значения. Тихая улица, вход со двора, окна так же выходят во двор, что даёт возможность прочувствовать петербургский дух и отдохнуть от суеты. В 2-х минутах ходьбы расположен остров Новая Голландия с ресторанчиками, катком и концертной площадкой. В пешей доступности Исаакиевской собор и Мариинский театр. Тихий, спокойный, закрытый двор. Во дворе организована автомобильная парковка. Хорошая транспортная доступность, развитая социальная и досуговая инфраструктура. Квартира реализуется через электронную торговую площадку, ипотека и субсидии не подходят.

2-х комнатная квартира

Коломяжский просп. м.Пионерская


53 м2
Общая
25.64 м2
Жилая
11 м2
Кухня
Цена
17 700 000 ₽
Санкт-Петербург, Коломяжский проспект 13 к.3 Метро Пионерская -10 мин.пешком Метро Удельная - 2,5 км. через Удельный парк Метро Комендантский проспект - 2,5 км. До центра города -30 минут на личном автомобиле или на общественном транспорте, расстояние от дома до ЗСД 4 км..  До аэропорта Пулково 40-60 мин. в зависимости от выбранного маршрута. Удельный парк в шаговой доступности, где можно гулять с любимым питомцем, или проводить время с семьей. Парк обустроен, есть детская площадка, площадка для танцев, дорожки. Богатая инфраструктура рядом с метро Пионерская. Торговый центр `Сити Молл` , Лемана Про , Перекресток, Спортмастер и т.д. На территории комплекса Приморский квартал  можно выпить любимый кофе или чай, есть выбор Пекарен и кофейни, есть точки доставки товаров, продуктовые магазины у дома, быстрое питание. Рядом с домом есть действующий детский садик, сейчас строится школа. Для детей есть закрытая  площадка для игры в футбол и разные тематические площадки в зависимости от возраста ребенка. Квартира без отделки. Кухня -11 м2, комнаты 13,8м2 и 11,84 м2. Санузел раздельный. Коммуникации заведены в квартиру. Звоните, отвечу на все интересующие вопросы и оперативно проведу показ. Подходит семейная ипотека.

2-х комнатная квартира

Александра Матросова ул. м.Лесная


59.1 м2
Общая
29.7 м2
Жилая
12 м2
Кухня
Цена
19 800 000 ₽
Санкт-Петербург, Выборгский р-н, ст.м. Лесная Александра Матросова ул., д. 1 Ст.м. Лесная пешком 16 мин., Выборгская 17 мин., выезд на ЗСД 10 мин., центр 10 мин. на авто. Продаётся великолепная 2 комн. кв для счастливой семейной жизни, инвестиции или аренды, в ЖК бизнес класса «Притяжение», в удобной локации города. Квартира с прекрасной, функциональной планировкой, кухней-гостинной, раздельными комнатами, раздельным санузлом и гардеробной. Выполнена предчистовая отделка, что позволяет сделать ремонт мечты в кратчайшие сроки и с минимальными затратами, наполнив свою новую квартиру уютом и комфортом. Все поверхности выровнены, уложена плитка. В отделке использованы высококачественные материалы. Напольное покрытие может стать приятным бонусом к квартире. Окна выходят в зелёный тихий двор на две стороны. Преимущества комплекса: многоступенчатая система очистки воды, умные счётчики, безрамное финское остекление “Lumon” (возможность организовать уютную лаундж-зону), бесшумные скоростные лифты «KONE”, отапливаемый паркинг на 692 места и открытый на 84 автомобиля, собственный детский сад на 200 мест, превосходная система безопасности, включающая консъерж-сервис и входные группы с лобби для гостей, охрану 24/7 и регулярный обход территории в ночное время, видеонаблюдение. Двор без машин, с ландшафтным дизайном, пешеходной аллеей, дизайнерскими детскими спортивными площадками и зонами отдыха. Инфраструктура района на высшем уровне, в непосредственной близости детские сады, школы, ведущие медицинские и технические ВУЗы, сетевые супермаркеты и гипермаркеты, магазины различных направлений, салоны красоты, фитнес центры, ПВЗ, пекарни, кофейни, клиники. Достопримечательности поблизости: Ботанический сад, Крейсер «Аврора», Петропавловская крепость, ЦПКиО на Елагином острове. Если Вы всё ещё в поисках своей идеальной квартиры, проведём показ в удобное для Вас время. Возможны ипотека, субсидия. Один собственник, есть обременение, документы готовы к сделке.

2-х комнатная квартира

Реки Карповки наб. м.Петроградская


97 м2
Общая
40.3 м2
Жилая
30.7 м2
Кухня
Цена
59 850 000 ₽
Если ищете синоним слова ПРЕМИУМ, первым в списке будет -  ЖК `Севepнaя Kоpона`. Именно в этом премиальном ЖК в самом сердце Санкт-Петербурга, на 3 этаже 7-ми этажного дома находится наша невероятная двухкомнатная квартира, площадью 96,9 квадратных метров. Продуманная до мелочей планировка и отсутствие внутренней отделки позволит Вам осуществить все самые, казалось бы, не исполнимые дизайнерские решения ! Проект ЖК `Северная Корона` - это современное воплощение и новое развитие архитектуры северного модерна. Особенность и уникальность дома в его протяженности вдоль реки Карповки. Фасад исключает монотонность, линии интегрированы в канву курдонера и внутренних общественных пространств, обращённых как в сторону Каменноостровского проспекта, так и Иоановского монастыря. На первых этажах проекта расположены коммерческие помещения. Входная зона - парадное двухсотметровое лобби. А во дворе ландшафтный дизайн и `вишенка на торте` - фонтан, имеющий несколько световых сценариев. Для жителей ЖК доступны фитнес-клуб, лобби-бар и переговорная. Предусмотрен круглосуточный консьерж-сервис. Для владельцев автомобилей создан подземный паркинг на 335 мест, включая семейные и с автоподъемниками. А так же застройщиком предусмотрена система очистки воды и воздуха. В плане инфраструктуры, можно сказать, что ЖК `Северная Корона` интегрирован в её самое сердце: - метро Петроградская - музеи, набережные, парки Крестовского острова. - кофейни, рестораны, салоны красоты и т.п. - 3 детских сада, гимназии, гипермаркеты, поликлинники Весь Петербургский `вайб`, в шаге от дверей Вашего дома ! Не упустите свою мечту, звоните прямо сейчас !

2-х комнатная квартира

Коломяжский просп. м.Пионерская


67 м2
Общая
36.4 м2
Жилая
12 м2
Кухня
Цена
19 000 000 ₽
Санкт-Петербург, Коломяжский проспект 13 к.3 Метро Пионерская -10 мин.пешком Метро Удельная - 2,5 км. через Удельный парк Метро Комендантский проспект - 2,5 км. До центра города -30 минут на личном автомобиле или на общественном транспорте, расстояние от дома до ЗСД 4 км..  До аэропорта Пулково 40-60 мин. в зависимости от выбранного маршрута. Удельный парк в шаговой доступности, где можно гулять с любимым питомцем, или проводить время с семьей. Парк обустроен, есть детская площадка, площадка для танцев, дорожки. Богатая инфраструктура рядом с метро Пионерская. Торговый центр `Сити Молл` , Лемана Про , Перекресток, Спортмастер и т.д. На территории комплекса Приморский квартал  можно выпить любимый кофе или чай, есть выбор Пекарен и кофейни, есть точки доставки товаров, продуктовые магазины у дома, быстрое питание. Рядом с домом есть действующий детский садик, сейчас строится школа. Для детей есть закрытая  площадка для игры в футбол и разные тематические площадки в зависимости от возраста ребенка. Квартира без отделки. Кухня -12 м2, комнаты: 21м2 + 15,4м2 Санузел раздельный. Коммуникации заведены в квартиру. Подходит семейная ипотека. Звоните, отвечу на все интересующие вопросы!

2-х комнатная квартира

Коломяжский просп. м.Пионерская


60 м2
Общая
29.53 м2
Жилая
14.19 м2
Кухня
Цена
19 700 000 ₽
г. Санкт-Петербург, Коломяжский проспект 13 к.3  Метро Пионерская -10 мин.пешком Метро Удельная - 2,5 км. через Удельный парк  Метро Комендантский проспект - 2,5 км.  До центра города -30 минут на личном транспорте или на общественном, расстояние от дома до ЗСД 4 км..  До аэропорта Пулково 40-60 мин. в зависимости от выбранного маршрута.  Удельный парк в шаговой доступности, где можно гулять с любимым питомцем, или проводить время с семьей. Парк обустроен, есть детская площадка, площадка для танцев, дорожки. Богатая инфраструктура рядом с метро Пионерская. Торговый центр `Сити Молл` , Лемана Про , Перекресток, Спортмастер и т.д.  На территории комплекса Приморский квартал  можно выпить любимый кофе или чай, есть выбор Пекарен и кофейни, есть точки доставки товаров, продуктовые магазины у дома, быстрое питание.  Рядом с домом есть действующий детский садик, сейчас строится школа. Для детей есть закрытая  площадка для игры в футбол и разные тематические площадки в зависимости от возраста ребенка.  Квартира без отделки.  Кухня -14 м2, комнаты 15,7 и 13,7 м2.  Санузел раздельный.  Коммуникации заведены в квартиру.  Звоните, отвечу на все интересующие вопросы и оперативно проведу показ. Подходит семейная ипотека.

2-х комнатная квартира

Петергоф г., Халтурина ул. м.Проспект Ветеранов


56.5 м2
Общая
33.1 м2
Жилая
10.3 м2
Кухня
Цена
5 500 000 ₽
Санкт-Петербург, Петергоф, ул. Халтурина 15к4 Квартира в кирпичном доме 1988 г/п, большая площадь, изолированная планировка, есть застеклённый балкон и раздельный сан узел. Все коммуникации центральные. Хорошее расположение дома и отличная транспортная доступность. Электричка в Санкт-Петербург в пяти минутах и конечная остановка маршрутных автобусов. У дома школа МЧС №319, детский сад №6, парки (Английский парк, Сергиевка и др.), военный институт (Железнодорожных войск и военных сообщений) Военной академии МТО.

2-х комнатная квартира

Кронштадт г., Флотская ул. м.Беговая


46.6 м2
Общая
28.6 м2
Жилая
8.3 м2
Кухня
Цена
7 689 000 ₽
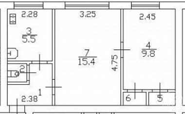
Продается отличная 2-х комнатная квартира в центре города воинской Славы Кронштадт. Расположена квартира в самом центре исторической застройки, на ул. Флотская. Дом был построен специально для сотрудников одного из предприятий города и отличается качеством и планировкой. Это не Типовая застройка, что можно увидеть на плане помещения, одна только кухня в 8,3 метра позволяет ее использовать и как столовую в том числе. Санузел раздельный, отремонтирован в одной цветовой гамме. Заменены коммуникации и трубы. В квартире, во всех комнатах заменена проводка (счетчик в том числе). Межкомнатные двери все новые. Есть места для хранения (кладовая и 2 антресоли). На полу Советский паркет, уложен качественно и не скрипит. Если его обновить и покрыть лаком, то он вновь засияет и будет радовать глаз. Окна выходят на южную сторону, в окно целый день видно голубое небо и солнце. Для того, чтобы Вам не было жарко, в квартире есть кондиционер!!! Установлены двухкамерные, теплоэнерго сберегающие стеклопакеты, шума улицы Вы не услышите и Ваш сон никто не побеспокоит. Один собственник, прямая продажа. Если у Вас есть вопросы, ждем Вашего звонка. Просмотры по договоренности.

2-х комнатная квартира

Петергоф г., Чебышевская ул. м.Проспект Ветеранов


49 м2
Общая
29 м2
Жилая
7 м2
Кухня
Цена
7 450 000 ₽
Санкт-Петербург, Петергоф, ул. Чебышевская 14к1 Кирпичный дом в центре Старого Петергофа. Очень удобное расположение: в шаговой доступности остановки общественного транспорта, детский сад, школа, магазин и сбербанк. Недалеко рынок со свежими овощами и зеленью. Совсем рядом, парк, озеро, места для велосипедных, пеших прогулок и организации пикника на природе. Сам дом отличается хорошей звуко и теплоизоляцией. В квартире везде установлены стеклопакеты, хорошо освещена естественным светом, вид из окон на восточную сторону, практически весь день солнце, заменена на качественную входная дверь. Застеклённый балкон с прекрасным перспективным видом на парк. Есть отдельная кладовка, за счёт которой, при желании, возможно увеличение ванной комнаты. Удобный шестой этаж, в доме новый бесшумный лифт. продаём в прямой продаже, все документы готовы к сделке.

Закажите консультацию специалиста

Оставьте заявку
Нажимая на кнопку «Отправить заявку», Вы даете согласие на обработку своих персональных данных.
×
продажа
Что вы хотите продать?
Сколько комнат?
Тип объекта?
В каком регионе?
В каком районе Санкт-Петербурга
В каком районе Ленинградской области?

Оставьте Ваш контакт и наши специалисты свяжутся с Вами в самые кротчайшие сроки.

+7
×
новостройка
Какие районы Санкт-Петербурга Вас интересуют?
С какой целью Вы планируете приобрести квартиру?
Сколько комнат должно быть в Вашей будущей квартире?
Какой вариант отделки Вам необходим?
Когда Вы хотите заехать?
В какой бюджет хотите уложиться?

Оставьте Ваш контакт и получите подборку квартир без риска столкнуться с мошенничеством и недостроем.

+7
×
сдать
Что вы хотите сдать?
Скольки комнатная квартира?
Какой тип коммерческой недвижимости вы хотите сдать?
В каком регионе?
В каком районе Санкт-Петербурга
В каком районе Ленинградской области?

Оставьте Ваш контакт и наши специалисты свяжутся с Вами в самые кротчайшие сроки.

+7
Этот сайт использует файлы cookie для улучшения пользовательского опыта. Cookie - это небольшие текстовые файлы, которые сохраняются на вашем устройстве и помогают нам запоминать ваши предпочтения, анализировать посещаемость сайта и предоставлять более персонализированный контент. Использование файлов cookie позволяет нам сделать сайт удобнее для вас. Политика конфиденциальности
Принять Отказаться