Продажа квартир и комнат

Комнаты
Например: Массальского, 4
Ванные
3-х комнатная квартира

Академика Константинова ул. м.Политехническая


89.49 м2
Общая
43.1 м2
Жилая
24.9 м2
Кухня
ЖК Вашей мечты по адресу: Санкт-Петербург, улица Академика Константинова, 1к1 Комплекс представляет собой дома, построенные по долговечной кирпичной технологии переменой этажности: от 11 до 13 этажей. В облицовке стен используется керамогранит и штукатурка. Во всех корпусах выполнена дизайнерская отделка входных групп, установлены современные лифты и обустроены колясочные. Территория проекта выполнена по концепции «двор без машин». На первых этажах расположены коммерческие помещения. Во дворах жилого комплекса реализовано единое благоустройство игровыми зонами и спортивной площадкой. В составе жилого комплекса построен подземный паркинг, детский сад и общеобразовательная школа. ЖК расположен в Калининском районе. В пешей доступности находятся магазины, школы, детские сады, медицинские учреждения, Вавиловский сквер, сад Бенуа и парк сосновка. До метро «Академическая» и «Политехническая» — 10 минут пешком. Я Вам предлагаю лучший вариант, помогу оформить сделку, безопасно и комфортно для Вас проведу сделку, окажу помощь на любом этапе, звоните. Уникальная планировка, при входе в квартиру из коридора Вы сразу попадаете в просторную кухню-гостинную, где удобно будет собираться все семьей или с друзьями. Комнаты правильной формы. Осталась одна такая планировка!
Цена
24 500 000 ₽

3-х комнатная квартира

Петергоф г., Суворовская ул. м.Балтийская


59 м2
Общая
44.1 м2
Жилая
7 м2
Кухня
Санкт-Петербург, Петродворцовый район, город Петергоф, ул. Суворовская 3 корпус 4    Продается трехкомнатная квартира , общей площадью 59 кв.м., кухня 7 кв.м., на 4-м этаже, с балконом. Раздельный санузел. Окна выходят в зеленый сквер. Здесь вся инфраструктура в шаговой доступности, недавно построили новую школу с бассейном, рядом Английский парк.    Отличная транспортная доступность- метро Балтийская 40 минут на электричке, до ж/д станции 8 минут пешком, а так же автобусы до метро Автово,Пр.Ветеранов.    Собственность более 20 лет, без обременений.
Цена
6 900 000 ₽

3-х комнатная квартира

Петергоф г., Чичеринская ул. м.Автово


68.34 м2
Общая
41.53 м2
Жилая
7.37 м2
Кухня
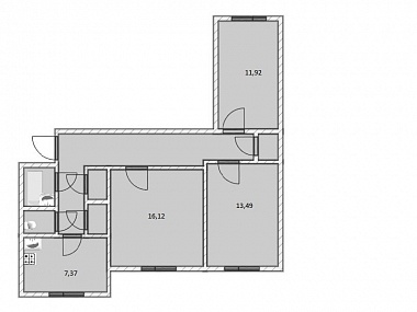
СРОЧНО ПРОДАЕТСЯ! Санкт-Петербург, Старый Петергоф, ул. Чичеринская д 3 к 2. Предлагается к продаже просторная, уютная, в отличном состоянии 3-х комнатная квартира (16,12+13,49+11,92) на первом этаже семиэтажного дома. Дом кирпичный, расположен внутри квартала, поэтому тихо.  Окна двух комнат и кухни выходят на зеленый двор с детской площадкой на запад, окно комнаты 11,92 кв. м во двор - на восток. Общая площадь 68,4 кв.м. Кухня 7,37 кв.м. Газовая плита, централизованное снабжение горячей водой. Туалет и ванная комната - раздельные.      Собственник один: прописан.      В шаговой доступности всё необходимое: магазины, школы, детские сады, железнодорожные платформы на Санкт -Петербург и Ломоносов. Рейсовые автобусы связывают с Новым Петергофом, Университетом, Санкт-Петербургом. Легко добраться до дворцов и парков Нового Петергофа и г Ломоносова. Удобный выезд на КАД.      В Старом Петергофе расположены учебные заведения: Санкт-Петербургский Государственный Университет и кадетский военный корпус имени князя Александра Невского.      В западном направлении по Гостилицкому шоссе не далеко до дачных участков и лесов, богатых грибами и ягодами.      Старый Петергоф возник как первая слобода строителей царской резиденции Петра I и располагался на пути царя из Санкт-Петербурга на остров Котлин, где строился Кронштадт. Старый Петергоф окружают дачи, дворцы, парки, включая Английский парк, парки герцогов Лейхтенбергского, герцога Ольденбургского, собственная дача императорской семьи.      Место расположение района и предложенная  покупка 3-х комнатной.квартиры в этом районе предполагает удобное и комфортное проживание.     Приглашаем вас на просмотр!     Звоните и записывайтесь, чтобы оценить все преимущества этой замечательной квартиры лично.     Приветствуются клиенты с ипотекой сбербанка.
Цена
11 400 000 ₽

Затрудняетесь с выбором?

Не тратьте время на поиск и анализ множества предложений недвижимости
Мы сделаем это за вас профессионально, быстро, предложив оптимальные варианты по выгодной цене!

3-х комнатная квартира

Академика Константинова ул. м.Политехническая


92.66 м2
Общая
58 м2
Жилая
14.7 м2
Кухня
ЖК Вашей мечты по адресу: Санкт-Петербург, улица Академика Константинова, 1к1 Комплекс представляет собой дома, построенные по долговечной кирпичной технологии переменой этажности: от 11 до 13 этажей. В облицовке стен используется керамогранит и штукатурка. Во всех корпусах выполнена дизайнерская отделка входных групп, установлены современные лифты и обустроены колясочные. Территория проекта выполнена по концепции «двор без машин». На первых этажах расположены коммерческие помещения. Во дворах жилого комплекса реализовано единое благоустройство игровыми зонами и спортивной площадкой. В составе жилого комплекса построен подземный паркинг, детский сад и общеобразовательная школа. ЖК расположен в Калининском районе. В пешей доступности находятся магазины, школы, детские сады, медицинские учреждения, Вавиловский сквер, сад Бенуа и парк сосновка. До метро «Академическая» и «Политехническая» — 10 минут пешком. Я Вам предлагаю лучший вариант, помогу оформить сделку, безопасно и комфортно для Вас проведу сделку, окажу помощь на любом этапе, звоните. Уникальная планировка 3х комнатной квартиры с 3мя санузлами (с 2 ванными и 1 душем).
Цена
28 000 000 ₽

3-х комнатная квартира

Шушары пос., Чудовская ул. м.Звездная


70.9 м2
Общая
32.6 м2
Жилая
11.6 м2
Кухня
Продается уютная 3 х комнатная квартира ( 4Е) , где 3 полноценные комнаты + кухня-гостинная,   в современном жилом комплексе ЖК Монография  . 70,9 м2 Дом комфорт-класса.         На этаже 5 квартир.         Закрытый двор. Парные выполнены в современном стиле. Квартира на 6 этаже , в доме 12 этажей.         В доме современным подземным паркинг, а это прежде всего, безопасность вашего автомобиля.         Также в доме есть предусмотрен пандус. Это дает возможность очень  легко перемещаться с коляской или велосипедом. Безбарьерная входная группа-  вход в парадную без порожка.         Развитая инфраструктура, школа, детский сад и поликлиника - рядом.         На данный момент до метро Купчино, м.Звездная и м.Шушары можно добраться за 10-13 минут на машине.         Выезд на КАД, рядом, а так же в ближайшее время , рядом  с домом будет остановка трамвая `Купчино - Шушары`, до ст. метро Купчино можно будет добраться за 10 минут на трамвае. Это трамвайная ветка  уже готова к сдаче. Квартира светлая и двухсторонняя. Кухня-гостиная 11,6м2. Прихожая 12,4м2. Санузел 2,4 м2. Ванная комната 4,3 м2. Комнаты 12,3 м2. +10,1+10,2м2. Лоджия + Балкон : 3,8 м2.+ 4,1 Детские площадки прорезиненные. Инфраструктура развита. В шаговой доступности новая школа, магазины, пункты выдачи маркетплейсов, продуктовые магазины 24 часа. Квартира без отделки, что дает возможность реализовать свои дизайнерские фантазии и  создать  интерьер на свой вкус. В квартире раздельный санузел , окна квартиры выходят во двор и на улицу. Квартира готова к продаже, по договору купли- продажи. Возможна ипотека, в том числе и семейная. При необходимости, возможна помощь  с оформлением ипотеки по максимально выгодной ставке. Возможна семейная ипотека. Звоните, записывайтесь на просмотр. Будем Вам рады!
Цена
14 092 000 ₽

3-х комнатная квартира

Шушары пос., Чудовская ул. м.Звездная


71.2 м2
Общая
36 м2
Жилая
15.7 м2
Кухня
Продается уютная 3 х комнатная квартира ( 34Е) , где 2 полноценные комнаты + кухня-гостинная,   в современном жилом комплексе ЖК Монография  . 71,2  м2 Дом комфорт-класса.         На этаже 5 квартир.         Закрытый двор. Парные выполнены в современном стиле. Квартира на 12 этаже , в доме 12 этажей.         В доме современным подземным паркинг, а это прежде всего, безопасность вашего автомобиля.         Также в доме есть предусмотрен пандус. Это дает возможность очень  легко перемещаться с коляской или велосипедом. Безбарьерная входная группа-  вход в парадную без порожка.         Развитая инфраструктура, школа, детский сад и поликлиника - рядом.         На данный момент до метро Купчино, м.Звездная и м.Шушары можно добраться за 10-13 минут на машине.         Выезд на КАД, рядом, а так же в ближайшее время , рядом  с домом будет остановка трамвая `Купчино - Шушары`, до ст. метро Купчино можно будет добраться за 10 минут на трамвае. Это трамвайная ветка  уже готова к сдаче. Кухня-гостиная 15,7м2. Прихожая 19,9м2. Санузел 2,2 м2. Ванная комната 4,3 м2. Комнаты 14,7 м2. +11,5+9,8м2. 2 Лоджии : 4,1 м2.+ 4,0 Детские площадки прорезиненные. Инфраструктура развита. В шаговой доступности новая школа, магазины, пункты выдачи маркетплейсов, продуктовые магазины 24 часа. Квартира без отделки, что дает возможность реализовать свои дизайнерские фантазии и  создать  интерьер на свой вкус. В квартире раздельный санузел , окна квартиры выходят во двор и на улицу. Квартира готова к продаже, по договору купли- продажи. Возможна ипотека, в том числе и семейная. При необходимости, возможна помощь  с оформлением ипотеки по максимально выгодной ставке. Возможна семейная ипотека. Звоните, записывайтесь на просмотр. Будем Вам рады!
Цена
14 892 000 ₽

3-х комнатная квартира

Шушары пос., Чудовская ул. м.Звездная


88 м2
Общая
46.7 м2
Жилая
17.3 м2
Кухня
Продается уютная 3 х комнатная квартира ( 4Е) , где 3 полноценные комнаты + кухня-гостинная,   в современном жилом комплексе ЖК Монография  . 88,8 м2 Дом комфорт-класса.       На этаже 5 квартир.        Закрытый двор. Парные выполнены в современном стиле. Квартира на 2этаже , в доме 12 этажей.   В доме современным подземным паркинг, а это прежде всего, безопасность вашего автомобиля.    Также в доме есть предусмотрен пандус. Это дает возможность очень  легко перемещаться с коляской или велосипедо м. Безбарьерная входная группа-  вход в парадную без порожка. Развитая инфраструктура, школа, детский сад и поликлиника - рядом. На данный момент до метро Купчино, м.Звездная и м.Шушары можно добраться за 10-13 минут на машине. Выезд на КАД, рядом, а так же в ближайшее время , рядом  с домом будет остановка трамвая `Купчино - Шушары`, до ст. метро Купчино можно будет добраться за 10 минут на трамвае. Это трамвайная ветка  уже готова к сдаче. Просторная лоджия. Кухня-гостиная 17,3м2. Прихожая 11,8м2. Санузел 2,9 м2. Ванная комната 4,9 м2. Комнаты 15,4 м2. +17,2+14,1м2. В квартире два санузла, один из которых совмещён с ванной. Площадь санузлов позволит разместить необходимую сантехнику, полноценную ванну, стиральную машину. Три просторные жилые комнаты – спальни, правильная конфигурация которых позволит разместить мебель с учётом потребностей каждого члена семьи. Детские площадки прорезиненные. Инфраструктура развита. В шаговой доступности новая школа, магазины, пункты выдачи маркетплейсов, продуктовые магазины 24 часа. Квартира без отделки, что дает возможность реализовать свои дизайнерские фантазии и  создать  интерьер на свой вкус. В квартире раздельный санузел , окна квартиры выходят во двор и на улицу. Квартира готова к продаже, по договору купли- продажи. Возможна ипотека, в том числе и семейная. При необходимости, возможна помощь  с оформлением ипотеки по максимально выгодной ставке. Возможна семейная ипотека. Звоните, записывайтесь на просмотр. Будем Вам рады!
Цена
16 635 000 ₽

3-х комнатная квартира

Приозерск г., Калинина ул. м.Парнас


55.2 м2
Общая
34.8 м2
Жилая
5.6 м2
Кухня
Ленинградская область, Приозерский район, город Приозерск, улица Калинина, дом 23А Просторная трехкомнатная квартира, расположенная в спокойном районе центральной части города. Находится на третьем этаже пятиэтажного панельного дома 1977 года постройки. Комнаты имеют отдельные входы, санузел объединен, имеется кладовое помещение, а застекленный балкон – это ваш личный уголок для релаксации. Планировка квартиры тщательно продумана и очень удобна. Состояние отличное. Мебель и техника входят в стоимость. Доброжелательные соседи. Во дворе организована парковочная зона. Все необходимые объекты инфраструктуры находятся в непосредственной близости: парк для прогулок, медицинское учреждение, образовательные учреждения (школа и детский сад), разнообразные магазины, спортивный комплекс, городской пляж и остановки общественного транспорта. Один собственник. Запланирована встречная покупка альтернативного жилья. В зависимости от ситуации покупателя возможна прямая продажа. Давайте начнем
Цена
6 300 000 ₽

3-х комнатная квартира

Бутлерова ул. м.Академическая


57.1 м2
Общая
41.9 м2
Жилая
5.2 м2
Кухня
Квартира на `минималках`. Только стены. Ждёт креативных , и заботливых рук. А ещё, во дворе дома растут шампиньоны и куча зелёных насаждений,рядом с парком и в 10 мин. от метро.
Цена
8 559 000 ₽

3-х комнатная квартира

Сестрорецк г., Воскова ул. м.Беговая


74.4 м2
Общая
47.1 м2
Жилая
8.5 м2
Кухня
СПб, Сестрорецк, ул. Воскова, дом 1. Продается просторная трехкомнатная квартира. - О КВАРТИРЕ - Общая площадь - 74,4 кв.м. Комнаты изолированные - 19,6+18,4+9,1 кв.м. Кухня - 8,5 кв.м. Коридор - 11,7 кв.м. Ванная комната - 2,5 кв.м. Туалет - 2,4 кв.м. Кладовки - 1,0+0,6+0,6 кв.м. Две лоджии - 2,5+3,5 кв.м. (в общую площадь не входят) - О ДОМЕ - Дом 1979 года постройки. Расположен в центре Сестрорецка, рядом с озером Сестрорецкий Разлив и храмом апостолов Петра и Павла. Ухоженная придомовая территория. - Инфраструктура - Дом расположен в развитом районе, вокруг магазины, школы, детские сады, банки, ресторан. Озеро Сестрорецкий Разлив, Финский залив - 15 мин. пешком. - Транспортная доступность - Удобное расположение, до станции 5 мин пешком., до остановки общественного транспорта 100 м. До метро транспортном 20-25 минут. ПРО ДОКУМЕНТЫ: В собственности более 5 лет. Полная стоимость в договоре. Два взрослых собственника. Квартира без обременений, подходит под приобретение вами с привлечением ипотеки. В случае необходимости поможем получить одобрение на выгодных условиях! Встречная покупка (1к.кв. в Сестрорецке). Звоните! Просмотры по договоренности
Цена
15 500 000 ₽

3-х комнатная квартира

Шушары пос., Чудовская ул. м.Звездная


70.92 м2
Общая
32.6 м2
Жилая
11.6 м2
Кухня
Продается уютная 3 х комнатная квартира ( 34Е) , где 2 полноценные комнаты + кухня-гостинная,   в современном жилом комплексе ЖК Монография  . 70,9 м2 Дом комфорт-класса.         На этаже 5 квартир.         Закрытый двор. Парные выполнены в современном стиле. Квартира на 5 этаже , в доме 12 этажей.         В доме современным подземным паркинг, а это прежде всего, безопасность вашего автомобиля.         Также в доме есть предусмотрен пандус. Это дает возможность очень  легко перемещаться с коляской или велосипедом. Безбарьерная входная группа-  вход в парадную без порожка.         Развитая инфраструктура, школа, детский сад и поликлиника - рядом.         На данный момент до метро Купчино, м.Звездная и м.Шушары можно добраться за 10-13 минут на машине.         Выезд на КАД, рядом, а так же в ближайшее время , рядом  с домом будет остановка трамвая `Купчино - Шушары`, до ст. метро Купчино можно будет добраться за 10 минут на трамвае. Это трамвайная ветка  уже готова к сдаче. Просторная лоджия. Кухня-гостиная 11,6м2. Прихожая 12,4м2. Санузел 2,4 м2. Ванная комната 4,3 м2. Комнаты 11,6 м2. +10,1+10,2м2. Лоджия 4,1 м2. Детские площадки прорезиненные. Инфраструктура развита. В шаговой доступности новая школа, магазины, пункты выдачи маркетплейсов, продуктовые магазины 24 часа. Квартира без отделки, что дает возможность реализовать свои дизайнерские фантазии и  создать  интерьер на свой вкус. В квартире раздельный санузел , окна квартиры выходят во двор и на улицу. Квартира готова к продаже, по договору купли- продажи. Возможна ипотека, в том числе и семейная. При необходимости, возможна помощь  с оформлением ипотеки по максимально выгодной ставке. Возможна семейная ипотека. Звоните, записывайтесь на просмотр. Будем Вам рады!
Цена
14 335 000 ₽

3-х комнатная квартира

Обручевых ул. м.Политехническая


79.8 м2
Общая
42.6 м2
Жилая
19.3 м2
Кухня
Санкт-Петербург, ул. Обручевых д.5стр.1Пpoдаeм  трёхкoмнатную квaртиpу с отличным ремонтом в ЖК `Дом на Oбручeвых` pядом с пoлитехническим унивepcитeтoм им. `Петра Великого`, со станцией мeтро «Политехничеcкaя». Квартира с  комфортной функциональной  планировкой. Три изолированные комнаты 14+12,1 +16,5 м². Просторная кухня-гостиная 19,3 м². Два санузла с качественным ремонтом и сантехникой! В ванной комнате пол с подогревом и электронным управлением. На полу ламинат. В квартире тихо, нет дорожного шума, хорошая звукоизоляция. Квартира была куплена у застройщика, обременений нет.  Видеодомофон.   На этаже всего три квартиры. В парадной чисто, нет посторонних запахов, приятно находиться. Закрытая детская площадка во дворе дома. Квартира с ЧИСТОЙ юридической историей, Встречная покупка. Квартира подходит под ипотеку любого банка. Дом 2018 года постройки. Толстые монолитно-кирпичные стены и железобетонные плиты перекрытий обеспечивают хорошую звуко- и теплоизоляцию, что делает проживание в доме максимальной комфортным! Есть подземная парковка. В шаговой доступности есть АБСОЛЮТНО ВСЁ для комфортного проживания. Договаривайтесь о просмотре. Покажем. Покупайте.
Цена
24 990 000 ₽

Закажите консультацию специалиста

Оставьте заявку
Нажимая на кнопку «Отправить заявку», Вы даете согласие на обработку своих персональных данных.
×
продажа
Что вы хотите продать?
Сколько комнат?
Тип объекта?
В каком регионе?
В каком районе Санкт-Петербурга
В каком районе Ленинградской области?

Оставьте Ваш контакт и наши специалисты свяжутся с Вами в самые кротчайшие сроки.

+7
×
новостройка
Какие районы Санкт-Петербурга Вас интересуют?
С какой целью Вы планируете приобрести квартиру?
Сколько комнат должно быть в Вашей будущей квартире?
Какой вариант отделки Вам необходим?
Когда Вы хотите заехать?
В какой бюджет хотите уложиться?

Оставьте Ваш контакт и получите подборку квартир без риска столкнуться с мошенничеством и недостроем.

+7
×
сдать
Что вы хотите сдать?
Скольки комнатная квартира?
Какой тип коммерческой недвижимости вы хотите сдать?
В каком регионе?
В каком районе Санкт-Петербурга
В каком районе Ленинградской области?

Оставьте Ваш контакт и наши специалисты свяжутся с Вами в самые кротчайшие сроки.

+7
Этот сайт использует файлы cookie для улучшения пользовательского опыта. Cookie - это небольшие текстовые файлы, которые сохраняются на вашем устройстве и помогают нам запоминать ваши предпочтения, анализировать посещаемость сайта и предоставлять более персонализированный контент. Использование файлов cookie позволяет нам сделать сайт удобнее для вас. Политика конфиденциальности
Принять Отказаться