Продажа квартир и комнат

Комнаты
Например: Массальского, 4
Ванные
3-х комнатная квартира

Почап дер., Луговой пер. м.Пушкинская


73 м2
Общая
42 м2
Жилая
9 м2
Кухня
Предлагается к продаже трёхкомнатная квартира, расположенная в посёлке Почап Лужского района, на втором этаже трёхэтажного жилого дома. Общая площадь квартиры составляет 73 квадратных метра. Окна выходят на две стороны, что обеспечивает естественное освещение и вентиляцию. Имеются парковочные места для автотранспорта. Квартира находится в хорошем жилом состоянии. Планировка помещения включает просторную прихожую площадью 15 квадратных метров, три жилые комнаты с площадями 12,5, 12,5 и 17 квадратных метров соответственно, а также кухню площадью 9 квадратных метров и кладовку. Санузел раздельный. В квартире установлены счётчики учёта холодной воды, газа и электроэнергии. Квартира отличается хорошей освещённостью и благоустройством, оборудована всеми необходимыми централизованными коммуникациями, включая систему горячего водоснабжения с использованием бойлера. В подвале под домом есть индивидуальное место для хранения овощей. В придачу к квартире прилагается ухоженный неоформленный огород недалеко от дома. Помещение характеризуется высокой теплоизоляцией, что обеспечивает комфортное проживание в любое время года. Соседи спокойные и дружелюбные, подъезд чистый и оборудован домофоном. В непосредственной близости от дома расположены магазин и автобусная остановка. Все документы на квартиру готовы к продаже. Возможность приобретения квартиры с использованием материнского капитала, субсидий или ипотечного кредитования также предусмотрена.
Цена
3 450 000 ₽

3-х комнатная квартира

Сланцы г., Шахтерской Славы ул.


72 м2
Общая
42.8 м2
Жилая
8.3 м2
Кухня
Ленинградская область г. Сланцы ул. Шахтерской Славы д. 20 Эксклюзивное предложение! 3-комнатная квартира в панельном  доме — мечта, которая заставит конкурентов завидовать! Продаётся просторная 3-комнатная квартира в надёжном панельном доме с отличной планировкой — идеальный вариант для комфортной жизни! Комфорт и уют на высоте: Квартира тёплая, солнечная, с изолированными комнатами — каждый член семьи почувствует себя как дома. Вместительная кладовка для хранения всего необходимого и просторная лоджия для отдыха на свежем воздухе. Ремонт на 90% готов — доделайте по своему вкусу! Полы и стены выровнены, установлены дорогие стеклопакеты. В большой комнате осталось только поклеить обои и натянуть потолок — возможность сэкономить и воплотить свои идеи! Вся мебель и техника остаётся — переезжайте с комфортом без дополнительных затрат. Идеальное расположение: Рядом школа, детский сад, магазины — всё под рукой для семьи. Лесополоса для любителей прогулок, спорта и отдыха на природе. Документы и условия: Один взрослый собственник — чистая сделка без лишних нюансов. Нужна встречная покупка — обсудим детали! Это не просто квартира — это шанс обойти конкурентов и обзавестись идеальным жильём! Звоните прямо сейчас — ответим на все вопросы и организуем просмотр! Ваш новый дом ждёт именно вас!
Цена
4 150 000 ₽

Комната в 3-комн. квартире

Первомайское пос., Ленина ул. м.Беговая


64 м2
Общая
35.2 м2
Жилая
6.1 м2
Кухня
192   Предлагается к продаже две комнаты  в 3 к. коммунальной квартире по адресу Лен.обл. Выборгский р-он п.Первомайское ул.Ленина д.70. Квартира расположена на первом этаже пятиэтажного панельного дома г.п.1984. Общ пл.64/46,9  кухня 6,1 коридор 7,6 с/у раздельный. Комнаты 17,2 + застекленная лоджия и 18,0 изолированные. Собственность доля в праве 48/64 приватизация от 2008г ; в пользование комнаты 17,2+ 18,0. В Комнате 11,7  проживает один мужчина( в перспективе есть возможность ее выкупить). Квартира требует ремонта. Три взрослых  собственника. Прямая продажа. В поселке есть вся инфраструктура. Удобное сообщение с СПб. Просмотры по предварительной договоренности.
Цена
2 650 000 ₽

Затрудняетесь с выбором?

Не тратьте время на поиск и анализ множества предложений недвижимости
Мы сделаем это за вас профессионально, быстро, предложив оптимальные варианты по выгодной цене!

3-х комнатная квартира

Пушкин г., Парковая ул. м.Купчино


93.7 м2
Общая
56.1 м2
Жилая
8.7 м2
Кухня
Уникальное предложение. Успейте купить квартиру по выгодной цене. Предложение ограничено по срокам. В продаже 3-х комнатная квартира, окна которой выходят на Екатерининский парк. Ипотека и мат. капитал не подходят.
Цена
11 925 000 ₽

3-х комнатная квартира

Культуры просп. м.Проспект Просвещения


73.4 м2
Общая
42.7 м2
Жилая
7.7 м2
Кухня
Продается очень светлая 3-комнатная квартира с видами на проспект и в зеленый двор. Идеальное сочетание городского комфорта и уюта. Уникальная планировка с окнами на восток и запад обеспечивает много солнечного света в течение всего дня. Ключевые преимущества:   Большой балкон с возможностью остекления;   Свобода для перепланировки: все перегородки не несущие;   Множество встроенных шкафов - готовое решение для хранения;   Раздельный санузел, новые стояки (заменены год назад);   Тихие соседи и закрытый тамбур на 3 квартиры;   Новый лифт и исправный мусоропровод;   В доме подключены все интернет-провайдеры. Район мечты:   Прямо в доме есть все необходимое:   Пятёрочка, Магнит, Магнит Косметик;   Отделение Сбербанка, почта, 2 аптеки;   Пункты выдачи Ozon, Wildberries, Яндекс.Маркет.   Идеальная транспортная доступность:   Красная и синяя ветки метро - всего 7-10 минутна транспорте;   Общественный транспорт каждые 10 минут;   Быстрый выезд на КАД. Состояние:   Квартира готова к проживанию, но требует косметического обновления (обои, мебель).   Все основные системы в идеальном состоянии: электрика, сантехника, водопровод.   Можно заезжать и делать ремонт постепенно. Юридически чисто:   Прямая продажа от собственников;   Это не просто квартира - это готовое пространство для вашей семьи с безупречной инфраструктурой и   транспортной доступностью. Идеальный вариант для тех, кто ценит комфорт, тишину и удобство. Звоните прямо сейчас, назначайте просмотр! Квартира свободна, сделка прозрачная и быстрая. Юридические аспекты:   Прописано трое совершеннолетних   Двое собственников   Прямая продажа   В доме не проводятся ремонтные работы Идеальный вариант для тех, кто ищет квартиру с потенциалом для создания современного жилья в самом сердце развитой инфраструктуры.
Цена
10 150 000 ₽

3-х комнатная квартира

Академика Константинова ул. м.Политехническая


89.49 м2
Общая
43.1 м2
Жилая
24.9 м2
Кухня
ЖК Вашей мечты по адресу: Санкт-Петербург, улица Академика Константинова, 1к1 Комплекс представляет собой дома, построенные по долговечной кирпичной технологии переменой этажности: от 11 до 13 этажей. В облицовке стен используется керамогранит и штукатурка. Во всех корпусах выполнена дизайнерская отделка входных групп, установлены современные лифты и обустроены колясочные. Территория проекта выполнена по концепции «двор без машин». На первых этажах расположены коммерческие помещения. Во дворах жилого комплекса реализовано единое благоустройство игровыми зонами и спортивной площадкой. В составе жилого комплекса построен подземный паркинг, детский сад и общеобразовательная школа. ЖК расположен в Калининском районе. В пешей доступности находятся магазины, школы, детские сады, медицинские учреждения, Вавиловский сквер, сад Бенуа и парк сосновка. До метро «Академическая» и «Политехническая» — 10 минут пешком. Я Вам предлагаю лучший вариант, помогу оформить сделку, безопасно и комфортно для Вас проведу сделку, окажу помощь на любом этапе, звоните. Уникальная планировка, при входе в квартиру из коридора Вы сразу попадаете в просторную кухню-гостинную, где удобно будет собираться все семьей или с друзьями. Комнаты правильной формы. Осталась одна такая планировка!
Цена
24 500 000 ₽

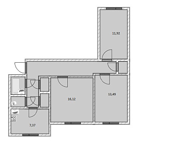
3-х комнатная квартира

Петергоф г., Чичеринская ул. м.Автово


68.34 м2
Общая
41.53 м2
Жилая
7.37 м2
Кухня
СРОЧНО ПРОДАЕТСЯ! Санкт-Петербург, Старый Петергоф, ул. Чичеринская д 3 к 2. Предлагается к продаже просторная, уютная, в отличном состоянии 3-х комнатная квартира (16,12+13,49+11,92) на первом этаже семиэтажного дома. Дом кирпичный, расположен внутри квартала, поэтому тихо.  Окна двух комнат и кухни выходят на зеленый двор с детской площадкой на запад, окно комнаты 11,92 кв. м во двор - на восток. Общая площадь 68,4 кв.м. Кухня 7,37 кв.м. Газовая плита, централизованное снабжение горячей водой. Туалет и ванная комната - раздельные.      Собственник один: прописан.      В шаговой доступности всё необходимое: магазины, школы, детские сады, железнодорожные платформы на Санкт -Петербург и Ломоносов. Рейсовые автобусы связывают с Новым Петергофом, Университетом, Санкт-Петербургом. Легко добраться до дворцов и парков Нового Петергофа и г Ломоносова. Удобный выезд на КАД.      В Старом Петергофе расположены учебные заведения: Санкт-Петербургский Государственный Университет и кадетский военный корпус имени князя Александра Невского.      В западном направлении по Гостилицкому шоссе не далеко до дачных участков и лесов, богатых грибами и ягодами.      Старый Петергоф возник как первая слобода строителей царской резиденции Петра I и располагался на пути царя из Санкт-Петербурга на остров Котлин, где строился Кронштадт. Старый Петергоф окружают дачи, дворцы, парки, включая Английский парк, парки герцогов Лейхтенбергского, герцога Ольденбургского, собственная дача императорской семьи.      Место расположение района и предложенная  покупка 3-х комнатной.квартиры в этом районе предполагает удобное и комфортное проживание.     Приглашаем вас на просмотр!     Звоните и записывайтесь, чтобы оценить все преимущества этой замечательной квартиры лично.     Приветствуются клиенты с ипотекой сбербанка.
Цена
10 900 000 ₽

3-х комнатная квартира

Академика Константинова ул. м.Политехническая


92.66 м2
Общая
58 м2
Жилая
14.7 м2
Кухня
ЖК Вашей мечты по адресу: Санкт-Петербург, улица Академика Константинова, 1к1 Комплекс представляет собой дома, построенные по долговечной кирпичной технологии переменой этажности: от 11 до 13 этажей. В облицовке стен используется керамогранит и штукатурка. Во всех корпусах выполнена дизайнерская отделка входных групп, установлены современные лифты и обустроены колясочные. Территория проекта выполнена по концепции «двор без машин». На первых этажах расположены коммерческие помещения. Во дворах жилого комплекса реализовано единое благоустройство игровыми зонами и спортивной площадкой. В составе жилого комплекса построен подземный паркинг, детский сад и общеобразовательная школа. ЖК расположен в Калининском районе. В пешей доступности находятся магазины, школы, детские сады, медицинские учреждения, Вавиловский сквер, сад Бенуа и парк сосновка. До метро «Академическая» и «Политехническая» — 10 минут пешком. Я Вам предлагаю лучший вариант, помогу оформить сделку, безопасно и комфортно для Вас проведу сделку, окажу помощь на любом этапе, звоните. Уникальная планировка 3х комнатной квартиры с 3мя санузлами (с 2 ванными и 1 душем).
Цена
28 000 000 ₽

3-х комнатная квартира

Шушары пос., Чудовская ул. м.Звездная


70.9 м2
Общая
32.6 м2
Жилая
11.6 м2
Кухня
Продается уютная 3 х комнатная квартира ( 4Е) , где 3 полноценные комнаты + кухня-гостинная,   в современном жилом комплексе ЖК Монография  . 70,9 м2 Дом комфорт-класса.         На этаже 5 квартир.         Закрытый двор. Парные выполнены в современном стиле. Квартира на 6 этаже , в доме 12 этажей.         В доме современным подземным паркинг, а это прежде всего, безопасность вашего автомобиля.         Также в доме есть предусмотрен пандус. Это дает возможность очень  легко перемещаться с коляской или велосипедом. Безбарьерная входная группа-  вход в парадную без порожка.         Развитая инфраструктура, школа, детский сад и поликлиника - рядом.         На данный момент до метро Купчино, м.Звездная и м.Шушары можно добраться за 10-13 минут на машине.         Выезд на КАД, рядом, а так же в ближайшее время , рядом  с домом будет остановка трамвая `Купчино - Шушары`, до ст. метро Купчино можно будет добраться за 10 минут на трамвае. Это трамвайная ветка  уже готова к сдаче. Квартира светлая и двухсторонняя. Кухня-гостиная 11,6м2. Прихожая 12,4м2. Санузел 2,4 м2. Ванная комната 4,3 м2. Комнаты 12,3 м2. +10,1+10,2м2. Лоджия + Балкон : 3,8 м2.+ 4,1 Детские площадки прорезиненные. Инфраструктура развита. В шаговой доступности новая школа, магазины, пункты выдачи маркетплейсов, продуктовые магазины 24 часа. Квартира без отделки, что дает возможность реализовать свои дизайнерские фантазии и  создать  интерьер на свой вкус. В квартире раздельный санузел , окна квартиры выходят во двор и на улицу. Квартира готова к продаже, по договору купли- продажи. Возможна ипотека, в том числе и семейная. При необходимости, возможна помощь  с оформлением ипотеки по максимально выгодной ставке. Возможна семейная ипотека. Звоните, записывайтесь на просмотр. Будем Вам рады!
Цена
13 735 000 ₽

3-х комнатная квартира

Шушары пос., Чудовская ул. м.Звездная


71.2 м2
Общая
36 м2
Жилая
15.7 м2
Кухня
Продается уютная 3 х комнатная квартира ( 34Е) , где 2 полноценные комнаты + кухня-гостинная,   в современном жилом комплексе ЖК Монография  . 71,2  м2 Дом комфорт-класса.         На этаже 5 квартир.         Закрытый двор. Парные выполнены в современном стиле. Квартира на 12 этаже , в доме 12 этажей.         В доме современным подземным паркинг, а это прежде всего, безопасность вашего автомобиля.         Также в доме есть предусмотрен пандус. Это дает возможность очень  легко перемещаться с коляской или велосипедом. Безбарьерная входная группа-  вход в парадную без порожка.         Развитая инфраструктура, школа, детский сад и поликлиника - рядом.         На данный момент до метро Купчино, м.Звездная и м.Шушары можно добраться за 10-13 минут на машине.         Выезд на КАД, рядом, а так же в ближайшее время , рядом  с домом будет остановка трамвая `Купчино - Шушары`, до ст. метро Купчино можно будет добраться за 10 минут на трамвае. Это трамвайная ветка  уже готова к сдаче. Кухня-гостиная 15,7м2. Прихожая 19,9м2. Санузел 2,2 м2. Ванная комната 4,3 м2. Комнаты 14,7 м2. +11,5+9,8м2. 2 Лоджии : 4,1 м2.+ 4,0 Детские площадки прорезиненные. Инфраструктура развита. В шаговой доступности новая школа, магазины, пункты выдачи маркетплейсов, продуктовые магазины 24 часа. Квартира без отделки, что дает возможность реализовать свои дизайнерские фантазии и  создать  интерьер на свой вкус. В квартире раздельный санузел , окна квартиры выходят во двор и на улицу. Квартира готова к продаже, по договору купли- продажи. Возможна ипотека, в том числе и семейная. При необходимости, возможна помощь  с оформлением ипотеки по максимально выгодной ставке. Возможна семейная ипотека. Звоните, записывайтесь на просмотр. Будем Вам рады!
Цена
14 892 000 ₽

3-х комнатная квартира

Шушары пос., Чудовская ул. м.Звездная


88 м2
Общая
46.7 м2
Жилая
17.3 м2
Кухня
Продается уютная 3 х комнатная квартира ( 4Е) , где 3 полноценные комнаты + кухня-гостинная,   в современном жилом комплексе ЖК Монография  . 88,8 м2 Дом комфорт-класса.       На этаже 5 квартир.        Закрытый двор. Парные выполнены в современном стиле. Квартира на 2этаже , в доме 12 этажей.   В доме современным подземным паркинг, а это прежде всего, безопасность вашего автомобиля.    Также в доме есть предусмотрен пандус. Это дает возможность очень  легко перемещаться с коляской или велосипедо м. Безбарьерная входная группа-  вход в парадную без порожка. Развитая инфраструктура, школа, детский сад и поликлиника - рядом. На данный момент до метро Купчино, м.Звездная и м.Шушары можно добраться за 10-13 минут на машине. Выезд на КАД, рядом, а так же в ближайшее время , рядом  с домом будет остановка трамвая `Купчино - Шушары`, до ст. метро Купчино можно будет добраться за 10 минут на трамвае. Это трамвайная ветка  уже готова к сдаче. Просторная лоджия. Кухня-гостиная 17,3м2. Прихожая 11,8м2. Санузел 2,9 м2. Ванная комната 4,9 м2. Комнаты 15,4 м2. +17,2+14,1м2. В квартире два санузла, один из которых совмещён с ванной. Площадь санузлов позволит разместить необходимую сантехнику, полноценную ванну, стиральную машину. Три просторные жилые комнаты – спальни, правильная конфигурация которых позволит разместить мебель с учётом потребностей каждого члена семьи. Детские площадки прорезиненные. Инфраструктура развита. В шаговой доступности новая школа, магазины, пункты выдачи маркетплейсов, продуктовые магазины 24 часа. Квартира без отделки, что дает возможность реализовать свои дизайнерские фантазии и  создать  интерьер на свой вкус. В квартире раздельный санузел , окна квартиры выходят во двор и на улицу. Квартира готова к продаже, по договору купли- продажи. Возможна ипотека, в том числе и семейная. При необходимости, возможна помощь  с оформлением ипотеки по максимально выгодной ставке. Возможна семейная ипотека. Звоните, записывайтесь на просмотр. Будем Вам рады!
Цена
16 635 000 ₽

3-х комнатная квартира

Приозерск г., Калинина ул. м.Парнас


55.2 м2
Общая
34.8 м2
Жилая
5.6 м2
Кухня
Ленинградская область, Приозерский район, город Приозерск, улица Калинина, дом 23А Просторная трехкомнатная квартира, расположенная в спокойном районе центральной части города. Находится на третьем этаже пятиэтажного панельного дома 1977 года постройки. Комнаты имеют отдельные входы, санузел объединен, имеется кладовое помещение, а застекленный балкон – это ваш личный уголок для релаксации. Планировка квартиры тщательно продумана и очень удобна. Состояние отличное. Мебель и техника входят в стоимость. Доброжелательные соседи. Во дворе организована парковочная зона. Все необходимые объекты инфраструктуры находятся в непосредственной близости: парк для прогулок, медицинское учреждение, образовательные учреждения (школа и детский сад), разнообразные магазины, спортивный комплекс, городской пляж и остановки общественного транспорта. Один собственник. Запланирована встречная покупка альтернативного жилья. В зависимости от ситуации покупателя возможна прямая продажа. Давайте начнем
Цена
6 300 000 ₽

Закажите консультацию специалиста

Оставьте заявку
Нажимая на кнопку «Отправить заявку», Вы даете согласие на обработку своих персональных данных.
×
продажа
Что вы хотите продать?
Сколько комнат?
Тип объекта?
В каком регионе?
В каком районе Санкт-Петербурга
В каком районе Ленинградской области?

Оставьте Ваш контакт и наши специалисты свяжутся с Вами в самые кротчайшие сроки.

+7
×
новостройка
Какие районы Санкт-Петербурга Вас интересуют?
С какой целью Вы планируете приобрести квартиру?
Сколько комнат должно быть в Вашей будущей квартире?
Какой вариант отделки Вам необходим?
Когда Вы хотите заехать?
В какой бюджет хотите уложиться?

Оставьте Ваш контакт и получите подборку квартир без риска столкнуться с мошенничеством и недостроем.

+7
×
сдать
Что вы хотите сдать?
Скольки комнатная квартира?
Какой тип коммерческой недвижимости вы хотите сдать?
В каком регионе?
В каком районе Санкт-Петербурга
В каком районе Ленинградской области?

Оставьте Ваш контакт и наши специалисты свяжутся с Вами в самые кротчайшие сроки.

+7
Этот сайт использует файлы cookie для улучшения пользовательского опыта. Cookie - это небольшие текстовые файлы, которые сохраняются на вашем устройстве и помогают нам запоминать ваши предпочтения, анализировать посещаемость сайта и предоставлять более персонализированный контент. Использование файлов cookie позволяет нам сделать сайт удобнее для вас. Политика конфиденциальности
Принять Отказаться