Продажа квартир и комнат

Комнаты
Например: Массальского, 4
Ванные
3-х комнатная квартира

Большой Сампсониевский просп. м.Лесная


80 м2
Общая
52 м2
Жилая
10 м2
Кухня
Цена
16 500 000 ₽
Продается квартира в Сталинском доме рядом с администрацией Выборгского района. Редкая планировка - на три стороны! Квартира граничит с соседней квартирой только одной стеной по кухне. Сверху звукоизоляция! Всего 10 квартир в подъезде! Закрытый двор! только свои) Во дворе  большая детская площадка и яблоневый сад. Очень удобная локация. Рядом центр города, 10 минут Литейный проспект, 5 минут Петроградский район. При этом дом находятся в зеленой зоне Выборгского района. рядом сквер, 5 минут и вы гуляете в Ботаническом саду Лесотехнической академии. 1 собственник. Без обременений!  Подходит по ипотеку! Рассмотрим все виды оплаты.

3-х комнатная квартира

Гостилицы дер., Комсомольская ул. м.Ленинский проспект


59.6 м2
Общая
44 м2
Жилая
7 м2
Кухня
Цена
6 500 000 ₽
Предлагается к продаже трёхкомнатная квартира, смежно-изолированной планировки, на четвёртом этаже пятиэтажного дома. Состояние хорошее, установлены стеклопакеты, отделан и застеклён балкон, окна выходят на север и на юг. Полы- в комнате линолеум, на кухне и в прихожей ламинат. Установлена новая входная металлическая дверь. Один взрослый собственник. Документы готовы к продаже.

3-х комнатная квартира

Янино-1 пос., Оранжевая ул. м.Проспект Большевиков


88.21 м2
Общая
41.73 м2
Жилая
11.36 м2
Кухня
Цена
16 099 000 ₽
Ленинградская область, Янино, ш. ул. Оранжевая, д.8 к5. Продаётся просторная трехкомнатная   квартира с большой кухней  в новом доме , общей площадью 88,21 кв.м., на 3 этаже. Квартира с чистовой отделкой. Заезжай и живи! Просторная,светлая квартира с двухсторонней планировкой. Три  комнаты правильной формы, одна из которых выходит на застекленную лоджию.Просторный холл с отдельной гардеробной,гостевой туалет. Большая кухня  площадью 11,36 кв м.с выходом на лоджию ,  будет прекрасным местом для проведения семейных вечеров . Правильная  планировка квартиры  поможет создать уютную и функциональную обстановку ,чтобы  каждый момент проведенный в этой квартире был наполнен комфортом и радостью.                                                                                                                                                                                                           В доме закрытый двор с уютными местами для отдыха, оборудованными детскими и спортивными площадками. Есть подземный паркинг. Жилой квартал создан специально для современных людей, чья жизнь включает в себя и деятельную активность в городе и счастье  от пребывания близко к природе с возможностью  вести здоровый образ жизни, занимаясь детьми и спортом. Делайте свой выбор!  Готова ответить на все Ваши вопросы .

Затрудняетесь с выбором?

Не тратьте время на поиск и анализ множества предложений недвижимости
Мы сделаем это за вас профессионально, быстро, предложив оптимальные варианты по выгодной цене!

3-х комнатная квартира

Лесколово пос., Красноборская ул. м.Девяткино


67.8 м2
Общая
46.2 м2
Жилая
11.8 м2
Кухня
Цена
6 700 000 ₽
Продается просторная трехкомнатная квартира площадью 67,8  квадратных метров в деревне Лесколово. Квартира находится на 4 этаже 5 этажного дома, расположенного в тихом и спокойном месте. В квартире выполнен качественный ремонт, установлены пластиковые окна, новые радиаторы отопления, межкомнатные двери и сантехника. Также имеется просторная кухня с газовой плитой,  3 комнаты, балкон,СУР. Деревня Лесколово находится в 20 минутах езды от Санкт-Петербурга, что делает ее идеальным местом для тех, кто хочет жить в тихом и уютном районе, но при этом иметь доступ к городской инфраструктуре. В деревне есть магазины, школа, детский сад,поликлиника и многое другое. Рядом с домом расположен лес,спортивный стадион где можно прогуляться или заняться спортом. Квартира продаётся со встроенной кухней. Если вы хотите купить квартиру в деревне Лехколово и наслаждаться жизнью за городом, не упустите свой шанс! Документы готовы. В собственности более 5 лет. Прямая продажа. Возможен торг.Звоните!!!

3-х комнатная квартира

Сестрорецк г., Дубковское шос. м.Беговая


101.9 м2
Общая
61.7 м2
Жилая
16.1 м2
Кухня
Цена
25 400 000 ₽
Сестрорецк, Дубковское шоссе дом 9 В одном из лучших домов Сестрорецка продается просторная 3 ком.квартира 101,9 кв.м. Квартира имеет три изолированных комнаты, два сан.узла, кухню 16 кв.м, утепленные лоджия и балкон. При желании можно сделать 4 отдельных комнаты, т.к. в большой комнате 3 окна. Окна выходят на три стороны, что делает квартиру очень светлой. Высокие потолки 2,85 м. В квартире установлены фильтры на воду, бойлеры. Кирпичный теплый дом 2002 года постройки, чистая парадная, 2 лифта, консьерж, красивый холл  во входной группе с пандусом для колясок и зоной отдыха.  Есть кладовая и отдельные помещения для хранения велосипедов. Видеонаблюдение, закрытая территория, есть парковка и можно отдельно приобрести подземный паркинг. Уникальное расположение дома - знаменитый  парк Дубки в 400 метрах, ж.д станция Сестрорецк в 300 метрах, рядом все магазины, аптеки, пекарня. Во дворе школа и детский сад. В пешей доступности пляжи и прогулочные зоны вдоль Финского залива. Квартира без перепланировок,  без обременений, подходит под ипотеку любого банка, в собственности более 15 лет. Помогаем с одобрением ипотеки. Гарантируем юридическую чистоту сделки.

Комната в 3-комн. квартире

Семиозерье пос., Лесная ул. м.Беговая


52.4 м2
Общая
10.8 м2
Жилая
6.4 м2
Кухня
Цена
640 000 ₽
Семиозерье.Отдельная комната в домике.Все удобства.

3-х комнатная квартира

Сясьстрой г., Космонавтов ул.


61 м2
Общая
45 м2
Жилая
5.5 м2
Кухня
Цена
3 700 000 ₽
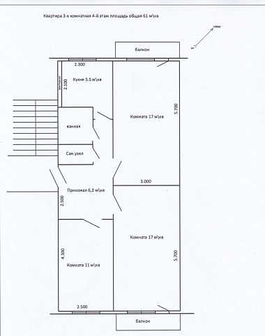
Ленинградская область, Волховский  район, г. Сясьстрой, ул. Космонавтов д. 7 Продам 3-х комнатную квартиру площадью 61 м.кв, на 4/5этаже.  Три изолированные  комнаты 17; 17 и 11 м.кв., кухня 5,5 м.кв., санузел раздельный, 2 балкона. Квартира двухсторонняя.Окна стеклопакеты. В шаговой доступности вся городская инфраструктура: сетевые магазины, банки, поликлиника,.школа, д/сад. Подходит для постоянного проживания и загородного отдыха. Благоустроенный песчаный пляж на реке Сясь в сосновом бору. Долгов по оплате нет. Два взрослых  собственника. Прямая продажа.Указываем полную цену. Просмотры по предварительной договоренности.

Комната в 3-комн. квартире

Героев просп. м.Проспект Ветеранов


92.4 м2
Общая
18 м2
Жилая
12.2 м2
Кухня
Цена
3 500 000 ₽
Продается отличная комната в трехкомнатной квартире. Ухоженная, чистая, опрятная с хорошим ремонтом не требующая никаких вложений. Натяжной потолок, стеклопакет, новая батарея. Мебель остается в подарок. Адекватные соседи. Во всей квартире идеальный порядок. Есть своя вместительная кладовка с вешалками и шкафчиками, и местом для стиральной машинки. Своя кухонная мебель. Застекленный балкон. В одной из комнат не живут. Во второй снимает семья( русских) с ребенком-школьником. Нотариальные отказы получены от всех собственников. Без обременений. Получена в собственность по договору мены. Вся инфраструктура в шаговой доступности: школы, сетевые магазины, садики, поликлиники, транспорт. рядом Финский залив и парковая зона.

3-х комнатная квартира

Сестрорецк г., Токарева ул. м.Беговая


61.4 м2
Общая
34.7 м2
Жилая
8.4 м2
Кухня
Цена
12 450 000 ₽
СПб, г. Сестрорецк, ул.Токарева, д.15. Продаётся 3-х комнатная квартира, общ.пл.61,4 кв.м с отличной планировкой. Квартира двусторонняя, светлая, очень тёплая. Комнаты изолированные. Просторная прихожая с 3-я встроенными шкафами. Звоните, отвечу на все, интересующие Вас вопросы.

Комната в 3-комн. квартире

Октябрьская наб. м.Проспект Большевиков


82.4 м2
Общая
20.4 м2
Жилая
9.6 м2
Кухня
Цена
3 500 000 ₽
Сталинский дом 1952 года постройки. Второй этаж! Высокие потолки. Видовая комната -  вид на р. Нева. Хорошие и дружные соседи (три человека) Документы готовы к сделке. Один взрослый собственник. Более 5ти лет владения объектом. Полная стоимость в договоре. Просмотр в любое удобное время. Звоните!

3-х комнатная квартира

Радищева ул. м.Чернышевская


62.4 м2
Общая
36.9 м2
Жилая
7.4 м2
Кухня
Цена
20 000 000 ₽
Просторная,светлая квартира в доме 1880г.п.,год последнего кап.ремонта1981,перекрытия железобетонные.Высота потолков 3,8м окна из комнат выходят на ул.Радищева,окно из кухни во двор.Отлично подойдёт для тех,кто хочет жить в самом центре Санкт-Петербурга.Закрытый двор с возможностью оставить машину,ключи только у собственников.Чистая лестница с ремонтом.В парадной всего 7квартир на каждом этаже одна квартира.3мин., от м.Чернышевская,5мин. от Таврического сада.Школы и дет.садики в пешей доступности.ПП,Торг,квартира требует ремонта

3-х комнатная квартира

Победа пос., Мира ул. м.Беговая


72.5 м2
Общая
42.8 м2
Жилая
8.3 м2
Кухня
Цена
5 200 000 ₽
192 Предлагается к продаже большая 3 комнатная квартира Лен.обл. Выборгский р-он п.Победа ул.Мира д.4 на пятом этаже пятиэтажного панельного дома г.п.1991.Общ. 72,5 кв.м. планировка двухсторонняя- изолированная 12,8+12,9+17,1+застекленная лоджия. Кухня 8,3 кв.м, большая прихожая 14,7 кв.м, с/у раздельный ,есть большая кладовка 2,1кв.м и две 0,3+0,4 кв.м. Частично оставляем мебель. Квартира расположена в середине дома ,очень теплая. Требует косметического ремонта. В поселке хорошо развита инфраструктура. Есть школа, детский сад, медицинский кабинет, сетевые магазины` Пятерочка`, ` Магнит`, мини- Лента. До ж/д Каннельярви, 5 минут на автобусе. До СПб ходят электрички повышенной комфортности `Ласточка` - 35 мин. Вокруг лес, озеро. Летом грибы, ягоды. Три взрослых собственника. Подходит под ипотеку. Встречная покупка 2 к.кв. в п.Победа ул.Мира первый или второй этаж. Просмотры по предварительной договоренности.

Закажите консультацию специалиста

Оставьте заявку
Нажимая на кнопку «Отправить заявку», Вы даете согласие на обработку своих персональных данных.
×
продажа
Что вы хотите продать?
Сколько комнат?
Тип объекта?
В каком регионе?
В каком районе Санкт-Петербурга
В каком районе Ленинградской области?

Оставьте Ваш контакт и наши специалисты свяжутся с Вами в самые кротчайшие сроки.

+7
×
новостройка
Какие районы Санкт-Петербурга Вас интересуют?
С какой целью Вы планируете приобрести квартиру?
Сколько комнат должно быть в Вашей будущей квартире?
Какой вариант отделки Вам необходим?
Когда Вы хотите заехать?
В какой бюджет хотите уложиться?

Оставьте Ваш контакт и получите подборку квартир без риска столкнуться с мошенничеством и недостроем.

+7
×
сдать
Что вы хотите сдать?
Скольки комнатная квартира?
Какой тип коммерческой недвижимости вы хотите сдать?
В каком регионе?
В каком районе Санкт-Петербурга
В каком районе Ленинградской области?

Оставьте Ваш контакт и наши специалисты свяжутся с Вами в самые кротчайшие сроки.

+7
Этот сайт использует файлы cookie для улучшения пользовательского опыта. Cookie - это небольшие текстовые файлы, которые сохраняются на вашем устройстве и помогают нам запоминать ваши предпочтения, анализировать посещаемость сайта и предоставлять более персонализированный контент. Использование файлов cookie позволяет нам сделать сайт удобнее для вас. Политика конфиденциальности
Принять Отказаться