Продажа квартир и комнат

Комнаты
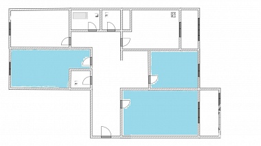
Например: Массальского, 4
Ванные
4-х комнатная квартира

Декабристов ул. м.Садовая


107.1 м2
Общая
51.4 м2
Жилая
30.6 м2
Кухня
Цена
21 700 000 ₽
Санкт-Петербург, Адмиралтейский р-н, Декабристов ул.,д.11 Перспективная 4ккв на 2м этаже в доме дореволюционной постройки, Доходный дом (правая часть), где в свое время жил Александр Грин. Квартира имеет два входа - с лицевой парадной (ул.Декабристов) со световым фонарем и  с внутреннего двора, что открывает практически неограниченное коичество вариантов перепланировки и переоборудования. На фото планировка из тех.документации и соответствует сегодняшнему состоянию. Все 6 окон квартиры выходят во внутренний тихий двор. В квартире 4 изолированные комнаты, просторная кухня площадью 30.6 кв.м., раздельный сан.узел и сауна(парилка) при ванной комнате. Состояние - требуется ремонт. Собственники одна семья, более 10 лет. Рассмотрим любую форму продажи, в том числе вариант обмена на 2ккв в Московском районе + ваша доплата. Просмотр практически в любое время. Разумный торг уместен.

Комната в 4-комн. квартире

Сертолово г., Ларина ул. м.Проспект Просвещения


98.7 м2
Общая
16.6 м2
Жилая
8.5 м2
Кухня
Цена
1 666 000 ₽
Малонаселённая коммунальная квартира на комфортном втором этаже. Комната правильной формы, площадью: 16,6 кв м., окно выходит во двор. Обременений и опеки нет. Месторасположение дома находится вблизи основных инфраструктур: магазины аптеки почта сбербанк рынок, всё рядом. Маршрутные автобусы курсируют до метро Пр. Просвещения и Озерки с коротким интервалом. Готовы своевременно согласовать просмотр комнаты.

Комната в 4-комн. квартире

Новолитовская ул. м.Лесная


75 м2
Общая
12.5 м2
Жилая
10 м2
Кухня
Цена
2 350 000 ₽
В СТАЛИНСКОМ ДОМЕ в 4-комнатной квартире комната 12,5 кв.м - удобная локация и транспортная доступность. 13 мин пешком до метро (Лесная и Выборгская), близко к центру; -развитая инфраструктура, в пешей доступности от дома расположены следующие объекты инфраструктуры: 35 магазинов, 4 школы, 17 детских садов, 35 салонов красоты, 35 поликлиник и больниц, 35 кафе и ресторанов, 27 аптек и пр.; - здание на Новолитовской, 5 занимает целый квартал, и это делает дом архитектурным ядром микрорайона. Комплекс был построен в 1956 году и стал эталоном послевоенного неоклассицизма. Граненые эркеры, широкое обрамление дверей, богатая лепка вдоль фасада; высокие и сложно организованные ворота с узорными решетками; - благодаря удобной планировке в квартире тихо и комфортно, окна выходят во двор. Оптимальный микроклимат в квартире обеспечивает толщина стен и ориентация окон; - в квартире всего 4 комнаты, по факту в настоящее время проживает только одна соседка. Просмотры по предварительной договоренности.

Затрудняетесь с выбором?

Не тратьте время на поиск и анализ множества предложений недвижимости
Мы сделаем это за вас профессионально, быстро, предложив оптимальные варианты по выгодной цене!

Комната в 4-комн. квартире

Маршала Казакова ул. м.Проспект Ветеранов


99.9 м2
Общая
49.7 м2
Жилая
11 м2
Кухня
Цена
12 399 000 ₽
В четырёхкомнатной квартире продаются три комнаты: S 21 кв.м.+12,6кв.м.+16,1кв.м. с перспективой выкупа оставшейся. Порядок пользования комнатами между собственниками определён. Дом расположен в достаточно удобной локации для комфортного проживания. Просмотры согласовывайте заранее.

4-х комнатная квартира

Всеволожск г., Плоткина ул. м.Ладожская


73.3 м2
Общая
48.5 м2
Жилая
6.2 м2
Кухня
Цена
8 900 000 ₽
Ленинградская область, Всеволожский р-н, Всеволожск г., Плоткина ул. Квартира с хорошим ремонтом, светлая, уютная. В санузлах кафель, стеклопакеты на окнах, все стены выровнены, красивые светлые обои. На полу качественный ламинат. В кухне остается хороший кухонный гарнитур со всей встроенной мебелью. Большой застекленный балкон из одной из комнат. Дом теплый, парадная чистая. Рядом вся инфраструктура. Школы, детские сады, магазины, парик для прогулок, спорткомплексы, больница, поликлиника, и пр.- все в пешей доступности. Отличное транспортное сообщение. Без обременений, более 5-ти лет в собственности. Встречная покупка жилья для собственника не сложная..

Комната в 4-комн. квартире

Сестрорецк г., Борисова ул. м.Беговая


30 м2
Общая
22.1 м2
Жилая
4.4 м2
Кухня
Цена
4 280 000 ₽
Санкт-Петербург, г.Сестрорецк, ул.Борисова, д.9, корп.1, литера.А.                       ;                                                  Уведомления готовы! Продажа двух объединенных комнат в Сестрорецке (ул. Борисова,д.9,корп.1) — СВОЯ КУХНЯ! Продаются две объединенные комнаты с собственными кухней и коридором в виде отдельной  двухкомнатной квартиры. Мебель остается новому хозяину. Комнаты изолированные, светлые, уютные. Есть своя кухня оборудованная электрической плитой, центральным водопроводом и канализацией. Комнаты:12,7 кв.м.+9,4 кв.м.; Кухня :4,4 кв.м.; Коридор:3,5 кв.м. С\У - общий (в коридоре) на две семьи. Прямая продажа!   Указываем полную стоимость. Один собственник. Более 5 лет в собственности. Никто не зарегистрирован. Не упустите уникальную возможность стать обладателем этой уютной квартиры! Звоните для записи на просмотр и становитесь частью прекрасного района Сестрорецка. Экологически чистый район, все плюсы загородной жизни с развитой инфраструктурой города. Вокруг дома много зелени и детских площадок. Дом расположен в шаговой доступности от пляжей озера Разлив и Финского залива. Рядом несколько детских садов, школ,спортивный комплекс(каток), дом детского творчества,   магазины, аптеки, почта, сбербанк, детская поликлиника и многопрофильная больница № 40. Рядом есть остановки автобуса. До ст.м. Беговая транспортом 25 минут. До выезда на КАД и ЗСД - 15 минут.

Комната в 4-комн. квартире

Бухарестская ул.


64.8 м2
Общая
11 м2
Жилая
7 м2
Кухня
Цена
2 600 000 ₽
Санкт-Петербург ул. Бухарестская д. 94 к 1 Идеальное предложение рядом с метро Проспект Славы! Приглашаем приобрести уютную, светлую комнату в четырехкомнатной квартире. Расположение комнаты порадует каждого, ведь всего в 5 минутах пешком находится станция метро `Проспект Славы`. Это означает быстрое перемещение по городу и свободу передвижения! Основные преимущества покупки: -  Просторная и хорошо освещённая комната позволит создать атмосферу комфорта и тепла. -  Чистая общая территория, поддерживаемая собственниками, создаёт приятную обстановку для совместного проживания. -  Гарантированно отсутствие неприятных соседей и любых проблем с насекомыми или грызунами. -  Прямая сделка с одним взрослым собственником, владеющим комнатой  без всяких обременений. -  Покупка доступна гражданам всех категорий, оформление документов без задержек и проблем. -  Удобное расположение: отличный район Петербурга с развитой инфраструктурой и зелеными зонами для прогулок. Это идеальный вариант для тех, кто ценит комфорт, безопасность и удобства городского жилья, при этом предпочитает разумную цену за покупку недвижимости. Свяжитесь с нами прямо сейчас, чтобы ознакомиться с предложением и сделать правильный выбор своего будущего жилища! Ваш новый домашний очаг ждет вас!

4-х комнатная квартира

Реки Фонтанки наб. м.Балтийская


93.3 м2
Общая
56 м2
Жилая
9.3 м2
Кухня
Цена
14 850 000 ₽
Санкт-Петербург,Аукцион ,торги 15,04,2026 4 комнатная квартира,1 этаж,Историческое здание со своей интересной историей.

4-х комнатная квартира

Московский просп. м.Московская


106.3 м2
Общая
70 м2
Жилая
20 м2
Кухня
Цена
24 926 000 ₽
Аукцион!!! Предлагаем к продаже отличную квартиру в ЖК `Граф Орлов`. Отличное расположение, престижный Московский район, удобная транспортная доступность, рестораны, кафе, магазины, всё в шаговой доступности. Покупка возможна только за наличный/безналичный расчёт, без использования ипотечных средств, средств материнского капитала и субсидий. Звоните, отвечу на вопросы.

4-х комнатная квартира

Энгельса пр. м.Проспект Просвещения


88 м2
Общая
59.4 м2
Жилая
9.8 м2
Кухня
Цена
16 677 000 ₽
4х.комнатная квартира на улице Энгельса. Дом построен в 1999 году. Метро Просвещения 3 минуты. Дет. сад, спортивный комплекс Газпром и каток во дворе.

Комната в 4-комн. квартире

Обуховской Обороны просп. м.Елизаровская


102.4 м2
Общая
24.4 м2
Жилая
9 м2
Кухня
Цена
3 200 000 ₽
Невский район, пр. Обуховской обороны д. 115 В продаже большая, светлая комната 24,4 кв.м в 4 ком.квартире. В комнате два больших окна, высота потолков 3,53 м. Комнату можно приобрести как для сдачи в аренду, так и для постоянного проживания. Заменена электропроводка. По желанию покупателя всю мебель в комнате можем оставить или вывезти. На первом этаже, под нашей квартирой, располагается коммерческое помещение, комнату можно сделать студией. Хорошее расположение, до метро Елизаровская 15 минут пешком или пара остановок общественным транспортом. Дом расположен на первой линии Невы с прекрасной набережной, а также для прогулок рядом парк имени Бабушкина. Удобный выезд на КАД через Володарский мост. В районе рядом присутствуют школы, детские сады, поликлиники. Рядом с домом супермаркеты, аптеки, кафе, отделения банков.

Комната в 4-комн. квартире

Политрука Пасечника (Торики) ул. м.Проспект Ветеранов


98.8 м2
Общая
31.7 м2
Жилая
7.5 м2
Кухня
Цена
4 300 000 ₽
В Ториках, регистрация СПБ продаются две раздельные комнаты в 4 комнатной коммунальной квартире. От общего коридора их отделяет свой небольшой тамбур за дверью. Площадь 17,4 м2 и 14,3 м2. Высота потолков 3 м. Одна из комнат угловая, с 2 металлопластиковыми окнами. Дом кирпичный, с большой толщиной стен. Комнаты тёплые, как и вся квартира. Стена утеплена. На полу ламинат. В квартире имеются кладовка и 2 углублённых шкафа на кухне. Санузел раздельный, с продольной чугунной ванной и окном. Газовая плита и сантехника в хорошем состоянии, как и вся квартира. В квартире никто не проживает. В продаваемых комнатах никто не прописан. Два взрослых собственника. Более 5 лет в собственности. Материнский капитал не использовался. В Ториках представлена вся необходимая инфраструктура: школа, д/садик, супермаркеты, ателье, почта, кафе и многое другое. В 3 минутах ходьбы от дома находится небольшое озерцо, где жители района любят проводить время. Есть парк для прогулок. Район очень зеленый и спокойный. Много транспорта до метро и ЖД станция. Приходите на просмотры.

Закажите консультацию специалиста

Оставьте заявку
Нажимая на кнопку «Отправить заявку», Вы даете согласие на обработку своих персональных данных.
×
продажа
Что вы хотите продать?
Сколько комнат?
Тип объекта?
В каком регионе?
В каком районе Санкт-Петербурга
В каком районе Ленинградской области?

Оставьте Ваш контакт и наши специалисты свяжутся с Вами в самые кротчайшие сроки.

+7
×
новостройка
Какие районы Санкт-Петербурга Вас интересуют?
С какой целью Вы планируете приобрести квартиру?
Сколько комнат должно быть в Вашей будущей квартире?
Какой вариант отделки Вам необходим?
Когда Вы хотите заехать?
В какой бюджет хотите уложиться?

Оставьте Ваш контакт и получите подборку квартир без риска столкнуться с мошенничеством и недостроем.

+7
×
сдать
Что вы хотите сдать?
Скольки комнатная квартира?
Какой тип коммерческой недвижимости вы хотите сдать?
В каком регионе?
В каком районе Санкт-Петербурга
В каком районе Ленинградской области?

Оставьте Ваш контакт и наши специалисты свяжутся с Вами в самые кротчайшие сроки.

+7
Этот сайт использует файлы cookie для улучшения пользовательского опыта. Cookie - это небольшие текстовые файлы, которые сохраняются на вашем устройстве и помогают нам запоминать ваши предпочтения, анализировать посещаемость сайта и предоставлять более персонализированный контент. Использование файлов cookie позволяет нам сделать сайт удобнее для вас. Политика конфиденциальности
Принять Отказаться