Продажа квартир и комнат

Комнаты
Например: Массальского, 4
Ванные
2-х комнатная квартира

Лиговский пр. м.Обводный канал


51.7 м2
Общая
21.7 м2
Жилая
18.4 м2
Кухня
Россия, Санкт-Петербург, Фрунзенский р-н, метро Обводный канал, Лиговский пр., 242 Продам 2- комнатную квартиру с кухней- гостинной в ЖК Витебский парк. Кухня- 18,4 м2. Комнаты- 11,2 м2 и 10,2 м2. Коридор- 6,5 м2. Ванна- 3,6 м2. Туалет- 1,2 м2. Жилой комплекс с закрытыми дворами-парками, в лобби высокие потолки и стеклянные двери, установлены современные бесшумные лифты. В квартире предусмотрены корзины под кондиционеры. В ЖК реализована концепция «двор-парк». Здесь расположены современные детские и спортивные площадки, организованы зоны отдыха. Через весь жилой район широкий пешеходный бульвар для прогулок и спорта. На 1 этажах  коммерческие помещения, в подземной части корпусов  — индивидуальные кладовые и паркинг. На территории комплекса находится 3 детских сада и школа. Жилой комплекс находится во Фрунзенском районе. Рядом расположены магазины, торговые центры, фитнес-клубы, кафе и рестораны, вузы и поликлиника. Московский парк Победы и центр города находится в 10 минутах на транспорте. До метро «Обводный канал» — 15 минут пешком. Ждем Вас на просмотр!
Цена
22 000 000 ₽

2-х комнатная квартира

Приозерск г., Ленинградское шос. м.Парнас


40.1 м2
Общая
24.7 м2
Жилая
6.2 м2
Кухня
Ленинградская область, Приозерский район, город Приозерск, ул. Леншоссе, 63а Эта двухкомнатная квартира – настоящий оазис спокойствия и комфорта, расположенный в гармоничном сочетании городской доступности и природной тишины. Представьте себе: просыпаясь утром, вы любуетесь из окна величественными соснами, вдыхаете свежий лесной воздух и ощущаете умиротворение, которое дарит жизнь вдали от городской суеты. При этом, все необходимые удобства и инфраструктура находятся под рукой. Квартира полностью готова к проживанию и не требует дополнительных вложений. Светлые комнаты, удобная планировка, современный ремонт – здесь продумана каждая деталь для вашего комфорта. Обработанный участок станет вашим личным пространством для отдыха, садоводства и наслаждения природой. Теплица позволит выращивать собственные овощи и зелень, а яркие цветочные клумбы будут радовать глаз. Удобное расположение – еще одно преимущество этой квартиры. Близость автобусной остановки обеспечивает легкий доступ к Приозерску и Санкт-Петербургу. Любители активного отдыха оценят близость озера Судоковское, где можно купаться, загорать, рыбачить или просто наслаждаться живописными пейзажами. Мы готовы ответить на все ваши вопросы и организовать просмотр в удобное для вас время. Не упустите свой шанс стать обладателем этой уникальной квартиры, где сочетаются комфорт, природа и доступность! Звоните прямо сейчас, чтобы договориться о встрече и оценить все преимущества этого прекрасного места.
Цена
3 200 000 ₽

2-х комнатная квартира

Новосаратовка дер., Первых ул. м.Ломоносовская


54.3 м2
Общая
23.92 м2
Жилая
15.35 м2
Кухня
Продается двухкомнатная квартира с большой кухней-гостинной, раздельным санузлом, лоджией и с отделкой `под ключ` в новом Жилом Комплексе, в 20 минутах транспортом от станции метро Ломоносовская. Жилой Комплекс расположен в дер. Новосаратовка, на комфортном расстоянии от шоссе.Дом в высокой степени готовности, ключи выдают в этом году. Важным преимуществом предложения является уникальная собственная инфраструктура для полноценной жизни, работы, досуга и отдыха в окружении природных ландшафтов. На территории ЖК будут расположены деловые зоны, многофункциональные общественные учреждения и уникальные рекреационные зоны. До берега реки Нева 15 минут пешком. Отличное место для проживания и работы, особенно для тех, кто работает удаленно. По соседству с ЖК расположены индивидуальные малоэтажные дома в поселке Новосаратовка с одной стороны, а с другой — Невский лесопарк и парковый комплекс «Усадьба Богословка». В ближайшее время планируется открытие школы на 1375 мест и три детских сада на 870 мест, паркинги, магазины на первых этажах . Также, для удобства транспортного сообщения планируется расширение Октябрьской набережной. ЖК расположен в ключевом градостроительном пространстве Приневской агломерации, на границе Города и Ленинградской области, всего в 2,5 км от КАД., рядом с Вантовым не разводящимся мостом, по которому можно добраться до СПб, в любое время. В 500 метрах от  домов находится остановка общественного транспорта, который уже сегодня довезёт вас до станций метро «Ломоносовская» или «Улица Дыбенко» В 15 минутах от нового проекта расположен крупный торгово‐развлекательный комплекс «Мега», где есть не только всевозможные магазины и бутики, фудкорт и кинотеатр, парк на открытом воздухе. Отличное предложение по интересной цене. По всем вопросам - Звоните!
Цена
7 904 000 ₽

Затрудняетесь с выбором?

Не тратьте время на поиск и анализ множества предложений недвижимости
Мы сделаем это за вас профессионально, быстро, предложив оптимальные варианты по выгодной цене!

2-х комнатная квартира

Песочный пос., Белоостровское шос. м.Беговая


55.6 м2
Общая
32.7 м2
Жилая
7.2 м2
Кухня
Санкт-Петербург, Курортный район, пос. Песочный, Белоостровское шоссе. ОТЛИЧНЫЙ ДАЧНЫЙ ВАРИАНТ ЖИЛЬЯ!!! Предлагается к приобретению  двухкомнатная квартира, расположенная на 1-м этаже 5-ти этажного кирпичного дома. Квартира просторная 55,6 м2. Две изолированных комнаты 21,6м2 и 11,1м2. Вместительная кухня 7,2м2, правильной формы. Раздельный с/узел.  Состояние квартиры удовлетворительное, требуется косметический ремонт Квартира располагается в поселке Песочный с полной городской инфраструктурой: поликлиника, д/садик, школа, почта, магазины, супермаркет «Магнит». Тихое спокойное место в окружении лесного массива, располагающее, как для постоянного проживания, так  и для отдыха. Во дворе установлены современные детская и спортивные площадки. В поселке основан приходской православный храм в честь Преподобного Серафима Саровского. В храме проводятся богослужения, совершаются таинства, организуются паломнические поездки. Хорошая транспортная доступность, 20 минут от Санкт-Петербурга на маршрутном такси, электричке - станция `Дибуны`, городском автобусе. Квартира продается в прямой продаже.
Цена
5 950 000 ₽

2-х комнатная квартира

Кушелевская дор. м.Площадь Мужества


59.2 м2
Общая
32 м2
Жилая
17 м2
Кухня
Просторная квартира в зеленом развитом районе Санкт-Петербурга. Школы, детсады, торговые центры и прочие блага – всё в шаговой доступности. Квартира имеет комфортную планировку – комнаты раздельные, кухня большая квадратная (17 кв. м), окна в квартире выходят на две стороны, что способствует удобному проветриванию. Высокий первый этаж, отличная звукоизоляция (соседей не слышно). Собственность более пяти лет. Нет обременений. Юридическая помощь на всех этапах сделки.
Цена
14 577 000 ₽

2-х комнатная квартира

Кубинская ул. м.Московская


63.07 м2
Общая
32.77 м2
Жилая
16.27 м2
Кухня
Россия, Санкт-Петербург, Московский р-н, метро Московская, Кубинская ул., 82 к.3 стр. 1 Продам просторную 2- комнатную квартиру с кухней- гостинной и лоджией в ЖК Cube. Комнаты- 16,76 м2 и 16,01 м2. Кухня- 16,27 м2. Коридор- 8,18 м2. Ванная- 4,43 м2. Туалет- 1,42 м2. В ЖК выполнена дизайнерская отделка входной группы и установлены современные лифты. У входа в парадную находятся велопарковки, а на первом этаже предусмотрены колясочные. Территория комплекса благоустроена и закрыта, на ней проведено озеленение и постоянно ведется видеонаблюдение. На придомовой территории выполнен ландшафтный дизайн, установлены детские и спортивные площадки с современным оборудованием, продуманы скамейки и прогулочные зоны. На первых этажах разместились коммерческие помещения. На территории комплекса построен свой детский сад на 100 мест. Для владельцев автомобилей предусмотрен подземный паркинг. Жилой комплекс находится в Московском районе. Внешняя инфраструктура развита, в пешей доступности: магазины, кафе, детские сады, школы, медицинские учреждения, банкоматы. Метро «Московская» в 20 минутах пешком. Ждем Вас на просмотр!
Цена
18 400 000 ₽

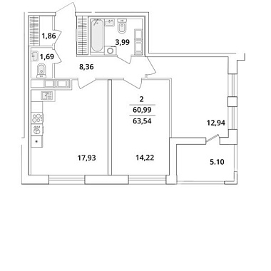
2-х комнатная квартира

Кубинская ул. м.Московская


63.54 м2
Общая
27.16 м2
Жилая
17.93 м2
Кухня
Россия, Санкт-Петербург, Московский р-н, метро Московская, Кубинская ул., 82 к.3 стр. 1 Продам 2- комнатную квартиру с кухней- гостинной и лоджией в ЖК Cube. Комнаты- 14,22 м2 и 12,94 м2. Кухня- 17,93 м2. Коридор- 8,36м2. Ванная- 3,99м2. Туалет- 1,69 м2. В ЖК выполнена дизайнерская отделка входной группы и установлены современные лифты. У входа в парадную находятся велопарковки, а на первом этаже предусмотрены колясочные. Территория комплекса благоустроена и закрыта, на ней проведено озеленение и постоянно ведется видеонаблюдение. На придомовой территории выполнен ландшафтный дизайн, установлены детские и спортивные площадки с современным оборудованием, продуманы скамейки и прогулочные зоны. На первых этажах разместились коммерческие помещения. На территории комплекса построен свой детский сад на 100 мест. Для владельцев автомобилей предусмотрен подземный паркинг. Жилой комплекс находится в Московском районе. Внешняя инфраструктура развита, в пешей доступности: магазины, кафе, детские сады, школы, медицинские учреждения, банкоматы. Метро «Московская» в 20 минутах пешком. Ждем Вас на просмотр!
Цена
18 400 000 ₽

2-х комнатная квартира

Первомайское пос., Ленина ул. м.Беговая


46.6 м2
Общая
27.5 м2
Жилая
7.5 м2
Кухня
п. Первомайское ,Выборгского р-н, ЛО . Предлагается к продаже удобная 2-х комнатная квартира в теплом кирпичном доме на 5 этаже. Дом 1980 года постройки расположен в шаговой доступности до центра населенного пункта. Общая площадь квартиры 46,6 м2. Кухня площадью 7,5 м2 с выходом на незастекленную лоджию. Две равноценные комнаты по разные стороны коридора 14,4 м2 и 13,1 м2. Окна выходят на разные стороны дома. Сан.узел раздельный. Высота потолков 2,6 м. В поселке есть все условия для проживания: больница, школа, детский сад, все сетевые магазины, рынок. Квартира требует небольшого ремонта. Регулярное автобусное сообщение с Санкт-Петербургом и п. Рощино, где находится железнодорожная станция, позволяют достаточно быстро доехать до мегаполиса.   Квартира в собственности с 2020 года, 2 собственника. Встречная покупка.
Цена
5 100 000 ₽

2-х комнатная квартира

24-я линия В.О.


62.66 м2
Общая
25.29 м2
Жилая
17.34 м2
Кухня
В престижном Василеостровском районе, в современном жилом комплексе элит-класса, вас ждет просторная 3-Е квартира, площадью 62,66 м. Квартира имеет грамотную планировку, которая позволяет максимально эффективно использовать каждый уголок. Большая кухня-гостиная площадью 17,34 м², с выходом на балкон(2,66м), станет местом для семейных вечеров и встреч с друзьями. Просторная прихожая (10,93 м²), позволит удобно разместить предметы мебели для комфортного хранения вещей.Для комфортного проживания в квартире два санузла. Высокие потолки 3 м. и панорамные окна в пол, создают много света и простора.   Квартира предлагается без отделки, что дает возможность воплотить в жизнь собственные дизайнерские идеи и создать интерьер своей мечты. Преимущества локации * Исторический район Санкт-Петербурга с богатой историей * Первая береговая линия Невы * Большое количество прогулочных и культурных пространств * Хорошая транспортная доступность. Преимущества ЖК: * Закрытая, охраняемая территория * Двухуровневые входные группы * Территория с авторской концепцией. * Подземный паркинг Срочная продажа.
Цена
26 800 000 ₽

2-х комнатная квартира

Красносельское (Горелово) шос. м.Проспект Ветеранов


56 м2
Общая
31.2 м2
Жилая
10 м2
Кухня
Продается двухкомнатная квартира в Санкт-Петербурге, Красносельский район, Горелово, Красносельское шоссе, 48. Квартира расположена на третьем этаже с окнами во двор. Это один из самых красивых и зеленых дворов в районе, а также самое удобное место в доме: рядом остановки, магазины и все выезды. В минуте ходьбы от дома — оборудованная зона отдыха у пруда. Общая площадь квартиры — 58 квадратных метров, с лоджией — 60. Жилые комнаты — 14 и 17,2 квадратных метров, кухня — 10,1, коридор — 10,8, балкон— 4,65. Квартира продается полностью меблированной, включая две гардеробные и кухню с посудомоечной машиной. На кухне есть просторный балкон. Лестничная площадка закрыта от лифтов, что обеспечивает дополнительный комфорт и безопасность. Напротив дома — платная парковка.
Цена
10 500 000 ₽

2-х комнатная квартира

Малое Карлино дер. м.Московская


52.3 м2
Общая
32 м2
Жилая
7.7 м2
Кухня
Ленинградская область, Ломоносовский р-н, д. Малое Карлино Возможность покупки по сельской ипотеке по ставке до 3 % годовых. Квартира для людей, которые  мечтают о размеренной жизни на  природе. Всегда мечтали жить и любоваться  красивейшей окружающей природой и слушать мелодичное пение птиц ? Тогда вам повезло, у нас есть для Вас интересное предложение! Двухкомнатная квартира в деревне Малое Карлино Ломоносовского района , где вы получаете уникальную возможность релаксации не выходя из дома: вид из окон – лес и ласковое солнце, а самое главное чистый воздух. В деревне есть вся инфраструктура,  необходимая для жизни и отдыха. Это тихое и уютное место для  проживания с детьми, много детских площадок, детские сады, бесплатные кружки в Доме культуры, конно-спортивный клуб. Построена новая школа, где самая большая библиотека в области. Прогулочные зоны  имеют современный дизайн. Для Вашего автомобиля есть возможность парковки в закрытом дворе. Вас не будет беспокоить шумный транспорт, дом стоит вдали от магистральной трассы. Хорошая транспортная доступность, до метро «Московская»  можно доехать на автобусе за  полчаса. До г.Пушкина время в пути  15 мин.. Общая площадь квартиры около 53 кв.м., которая окружена приветливыми и доброжелательными соседями. Находится на 3 этаже 3-х этажного дома. Сердце квартиры – кухня, где светло-серый оттенок кухонного гарнитура гармонично смотрится со стеновой панелью с рисунком из красивых цветов. Кухонный пол из плитки, это так практично и  привлекательно. Продолжение кухни - в большую лоджию с остеклением, где можно отдохнуть от суеты и насладиться чистым воздухом. Квартира уютная, теплая, с грамотной планировкой и обилием естественного света. Комнаты отличаются нежностью интерьерных решений и вызывают положительные эмоции. В квартире остается качественная и стильная мебель от производителя IKEA, кухонный гарнитур с бытовой техникой. Это квартира для Вас, знающих качество жизни. Спешите на просмотр, я уверена, вы в нее влюбитесь!
Цена
6 900 000 ₽

2-х комнатная квартира

Низино дер., Центральная ул. м.Автово


45.1 м2
Общая
31.4 м2
Жилая
5.4 м2
Кухня
Вашему вниманию предлагается двухкомнатная квартира в Низино. В зелёном и тихом районе Ленобласти, рядом с Петергофом. В шаговой доступности Луговой парк и прекрасный Бельведер. В квартире сделан качественный ремонт в 2018г: стяжка пола ( засыпан керамзит), выравнивание стен, в коридоре мокрая штукатурка, звукоизоляция стен, санузел совмещён для удобства, установлен водонагреватель 30л, поэтому летом всегда есть горячая вода,теплый пол, джакузи в рабочем состоянии, натяжные потолки, проведена замена электропроводки, лоджия сделана в 2020г. Кухня остаётся новым хозяевам! Один взрослый собственник. Прямая продажа. Документы готовы к сделке! Звоните и записывайтесь на просмотр прекрасной квартиры!
Цена
7 500 000 ₽

Закажите консультацию специалиста

Оставьте заявку
Нажимая на кнопку «Отправить заявку», Вы даете согласие на обработку своих персональных данных.
×
продажа
Что вы хотите продать?
Сколько комнат?
Тип объекта?
В каком регионе?
В каком районе Санкт-Петербурга
В каком районе Ленинградской области?

Оставьте Ваш контакт и наши специалисты свяжутся с Вами в самые кротчайшие сроки.

+7
×
новостройка
Какие районы Санкт-Петербурга Вас интересуют?
С какой целью Вы планируете приобрести квартиру?
Сколько комнат должно быть в Вашей будущей квартире?
Какой вариант отделки Вам необходим?
Когда Вы хотите заехать?
В какой бюджет хотите уложиться?

Оставьте Ваш контакт и получите подборку квартир без риска столкнуться с мошенничеством и недостроем.

+7
×
сдать
Что вы хотите сдать?
Скольки комнатная квартира?
Какой тип коммерческой недвижимости вы хотите сдать?
В каком регионе?
В каком районе Санкт-Петербурга
В каком районе Ленинградской области?

Оставьте Ваш контакт и наши специалисты свяжутся с Вами в самые кротчайшие сроки.

+7
Этот сайт использует файлы cookie для улучшения пользовательского опыта. Cookie - это небольшие текстовые файлы, которые сохраняются на вашем устройстве и помогают нам запоминать ваши предпочтения, анализировать посещаемость сайта и предоставлять более персонализированный контент. Использование файлов cookie позволяет нам сделать сайт удобнее для вас. Политика конфиденциальности
Принять Отказаться