3-х комнатная квартира

ЛО, Ломоносовский, Яльгелево пос.   Посмотреть на карте

Номер объекта: 338325
Цена на м2: 104 948

Время работы Call Центра:

ПН-ПТ с 9-30 до 22-00

СБ-ВС с 10-00 до 22-00

Нажимая на кнопку «Позвонить мне», Вы даете согласие на обработку своих персональных данных.

Описание

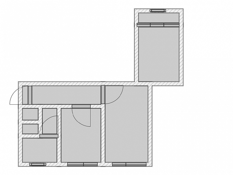
Продается хорошая, теплая, светлая, не угловая и  просторная трехкомнатная квартира без перепланировки, без обременений, с хорошей планировкой, с прекрасным видом из окон на закат и на восход, на деревья и зеленую зону, виден горизонт, облака  и просторы. Установлены стеклопакеты,  лоджия застеклена, на полу паркетная доска, утепленный, особопрочный линолиум под паркет, коридоры, кухня, ванная и туалет выложены кафелем, есть бойлер.  С момента постройки в квартире жила одна семья, поэтому квартира чистая и уютная, лестничная площадка чистая, просторная, соседи спокойные, вежливые и дружелюбные, за домом благоустроенная детская площадка, есть видеонаблюдение. Удобное расположение дома в центре поселка,рядом дом культуры с кружками для детей и спортсекциями, напротив школа,в 100 метрах садик, почта, магазины:Пятерочка, Магнит, пункты выдачи, ФАП, спортстадион, банкетный зал.  Есть места для выгула собак, в частном секторе можно приобрести продукты фермерского  хозяйства, недалеко от поселка конный клуб, большое, красивое  озеро и пруд. Удобная транспортная развязка, остановки общественного транспорта.

Расположение

Адрес
Яльгелево пос., 46
Метро
Проспект Ветеранов
Район
Ломоносовский
Город
Яльгелево
Регион
Ленинградская область

Площади, м2

Жилая площадь
42.3
Общая площадь
66.7
Площадь кухни
8.1

Параметры

Входная дверь
металлическая
Горячее водоснабжение
Центральное
Дата постройки
1993
Комнат
3
Лифт
Нет
Плита
Газовая
Сан. узел
Раздельный
Этаж
4
Этажность
5
Ипотека
Нет

Узнайте больше об объекте

Получите консультацию специалиста

Нажимая на кнопку «Отправить заявку», Вы даете согласие на обработку своих персональных данных.

Объект на карте

Похожие объекты

Затрудняетесь с выбором?

Не тратьте время на поиск и анализ множества предложений недвижимости
Мы сделаем это за вас профессионально, быстро, предложив оптимальные варианты по выгодной цене!

Затрудняетесь с выбором?

Не тратьте время на поиск и анализ множества предложений недвижимости
Мы сделаем это за вас профессионально, быстро, предложив оптимальные варианты по выгодной цене!

Затрудняетесь с выбором?

Не тратьте время на поиск и анализ множества предложений недвижимости
Мы сделаем это за вас профессионально, быстро, предложив оптимальные варианты по выгодной цене!

Затрудняетесь с выбором?

Не тратьте время на поиск и анализ множества предложений недвижимости
Мы сделаем это за вас профессионально, быстро, предложив оптимальные варианты по выгодной цене!

Этот сайт использует файлы cookie для улучшения пользовательского опыта. Cookie - это небольшие текстовые файлы, которые сохраняются на вашем устройстве и помогают нам запоминать ваши предпочтения, анализировать посещаемость сайта и предоставлять более персонализированный контент. Использование файлов cookie позволяет нам сделать сайт удобнее для вас. Политика конфиденциальности
Принять Отказаться