2-х комнатная квартира

ЛО, Всеволожский, Кузьмоловский пос., Железнодорожная ул.   Посмотреть на карте

Номер объекта: 341434
Цена на м2: 179 054

Время работы Call Центра:

ПН-ПТ с 9-30 до 22-00

СБ-ВС с 10-00 до 22-00

Нажимая на кнопку «Позвонить мне», Вы даете согласие на обработку своих персональных данных.

Описание

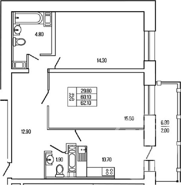
Продам прекрасную новую 2 комнатную квартиру во Всеволожском р-не Лен. области д. Кузьмолово. Общая площадь 62,1 м 2, две жилые изолированные комнаты  14,3 м2  и 15,5 м2, кухня 10,7 м2, просторный коридор 12.9  м2 , большая ванная 4,8 м2, с/у 1,9 м2, большой балкон с остеклением 6,8 м2, высота потолка 2,75 м,  этаж 4/19
Преимущества квартиры и самого дома:
- новая чистовая отделка
- в санузлах кафельная плитка на полу и на стенах до потолка;
- акриловая ванна, раковина с подвесной тумбой;
- увеличенные оконные проемы, что дает дополнительный дневной свет;
- пол ламинат 33 класса;
- наземная парковка;
- в этом доме дополнительно можно приобрести кладовое помещение для хранения сезонных вещей;
Преимущества локации:
- вся развитая инфраструктура!!
- до ж/д станции и автобусной остановки пешком можно дойти за 5-7 мин;
- на электричке до метро Девяткино 10 минут;
- до центра СПб наземным транспортом 40 мин;
- рядом школа , детский сад;
- взрослая и детская поликлиники;
- Кузьмоловский дом культуры;
- отделение полиции;
- банки, аптеки, кафе, пекарни, магазины ( пятерочка и др.)
- самое главное преимущество- это в пешей доступности КУЗЬМОЛОВСКИЙ КАРЬЕР с ПЛЯЖЕМ и шикарными видами на огромный сосновый лесопарк ;
- так же очень большая зеленая зона лесопарка с прудом находится вокруг дома , где каждый день можно гулять с детьми, с питомцами , да и просто отдыхать на природе!
Достопримечательности в Кузьмолово:
-Пешеходный экологический маршрут Долина реки Охта;
-Пешеходный экологический маршрут Изумрудное озеро;
-Поляна сказок;
-Дом жестянщика  и многое другое.
        
Все вышеперечисленные преимущества квартиры дают возможность комфортно проживать семьям с детьми, а также возможно покупка такой квартиры для старшего поколения. Либо, кто устал от городской суеты и хочет удаленности и замедления!
Квартиру можно купить по семейной ипотеке!
Звоните , записывайтесь на просмотр квартиры !!!

Расположение

Адрес
Кузьмоловский пос., Железнодорожная ул., 5
Метро
Девяткино
Район
Всеволожский
Город
Кузьмоловский
Регион
Ленинградская область

Площади, м2

Жилая площадь
29.8
Общая площадь
64.5
Площадь ванной
4.8
Площадь кухни
10.7
Площадь прихожей
12.9
Площадь санузла
1.9

Параметры

Балкон
балкон
Входная дверь
металлическая
Горячее водоснабжение
Центральное
Дата постройки
2025
Комнат
2
Лифт
Есть
Плита
Электрическая
Сан. узел
2 сан.узла
Дом
Монолитный
Этаж
4
Этажность
19
Ипотека
Да

Узнайте больше об объекте

Получите консультацию специалиста

Нажимая на кнопку «Отправить заявку», Вы даете согласие на обработку своих персональных данных.

Объект на карте

Похожие объекты

Затрудняетесь с выбором?

Не тратьте время на поиск и анализ множества предложений недвижимости
Мы сделаем это за вас профессионально, быстро, предложив оптимальные варианты по выгодной цене!

Затрудняетесь с выбором?

Не тратьте время на поиск и анализ множества предложений недвижимости
Мы сделаем это за вас профессионально, быстро, предложив оптимальные варианты по выгодной цене!

Затрудняетесь с выбором?

Не тратьте время на поиск и анализ множества предложений недвижимости
Мы сделаем это за вас профессионально, быстро, предложив оптимальные варианты по выгодной цене!

Затрудняетесь с выбором?

Не тратьте время на поиск и анализ множества предложений недвижимости
Мы сделаем это за вас профессионально, быстро, предложив оптимальные варианты по выгодной цене!

Этот сайт использует файлы cookie для улучшения пользовательского опыта. Cookie - это небольшие текстовые файлы, которые сохраняются на вашем устройстве и помогают нам запоминать ваши предпочтения, анализировать посещаемость сайта и предоставлять более персонализированный контент. Использование файлов cookie позволяет нам сделать сайт удобнее для вас. Политика конфиденциальности
Принять Отказаться