1-х комнатная квартира

Санкт-Петербург, Невский, Цимбалина ул.   Посмотреть на карте

Номер объекта: 343821
Цена на м2: 308 672

Время работы Call Центра:

ПН-ПТ с 9-30 до 22-00

СБ-ВС с 10-00 до 22-00

Нажимая на кнопку «Позвонить мне», Вы даете согласие на обработку своих персональных данных.

Описание

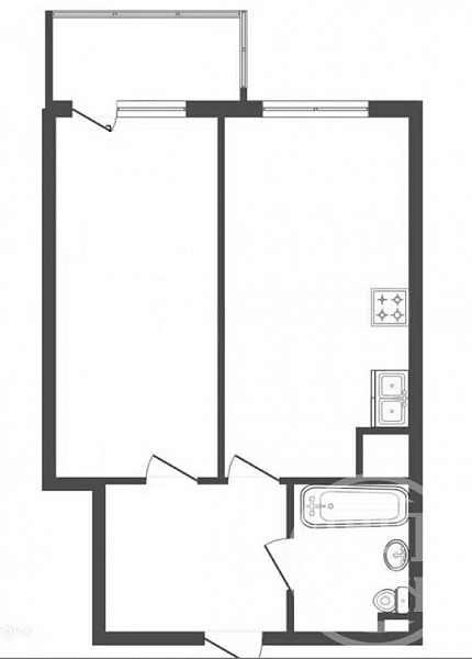
Продается однокомнатная квартира в ЖК `Высота` в Санкт‑Петербурге.
Общая площадь 39,9 м². Комната 14,1 м2, кухня 14,6 м2. Большой застекленный балкон. Комфортный 10-й этаж 25‑этажного кирпичного дома.
Дом комфорт-класса. Оснащен подземным паркингом. Видеонаблюдение.

Вся инфраструктура в шаговой доступности: школы и детские сады, поликлиники взрослая и детская, магазины, кафе, банки, детские и спортивные площадки. Отличный выбор для комфортной жизни или сдачи в аренду.

Рядом с домом расположен парк им. И.В. Бабушкина. Один из старейших зелёных массивов Невского района. Там можно провести время с семьёй: покататься на каруселях, коньках, поужинать в ресторане. Так же пешком можно дойти до парка «Куракина дача» или просто прогуляться по берегу Невы.

До метро `Елизаровская`, `Ломоносовская`: ~15 мин пешком.
До цента города- 12 мин. на автомобиле.
До выезда на КАД- 10 мин. на автомобиле.

Один взрослый собственник. Прямая продажа. Показы по предварительной договоренности.

Особые условия покупки выгодному покупателю при быстром выходе не сделку!

Расположение

Адрес
Цимбалина ул., 25
Метро
Елизаровская
Район
Невский
Регион
Санкт-Петербург

Площади, м2

Жилая площадь
14.1
Общая площадь
39.9
Площадь ванной
4.3
Площадь кухни
14.6
Площадь прихожей
6.9

Параметры

Входная дверь
металлическая
Горячее водоснабжение
Центральное
Дата постройки
2018
Комнат
1
Лифт
Есть
Плита
Электрическая
Сан. узел
Совмещенный
Состояние
Хорошее
Вход
со двора
Дом
Кирпичный
Этаж
10
Этажность
25
Ипотека
Да

Узнайте больше об объекте

Получите консультацию специалиста

Нажимая на кнопку «Отправить заявку», Вы даете согласие на обработку своих персональных данных.

Объект на карте

Похожие объекты

Затрудняетесь с выбором?

Не тратьте время на поиск и анализ множества предложений недвижимости
Мы сделаем это за вас профессионально, быстро, предложив оптимальные варианты по выгодной цене!

Затрудняетесь с выбором?

Не тратьте время на поиск и анализ множества предложений недвижимости
Мы сделаем это за вас профессионально, быстро, предложив оптимальные варианты по выгодной цене!

Затрудняетесь с выбором?

Не тратьте время на поиск и анализ множества предложений недвижимости
Мы сделаем это за вас профессионально, быстро, предложив оптимальные варианты по выгодной цене!

Этот сайт использует файлы cookie для улучшения пользовательского опыта. Cookie - это небольшие текстовые файлы, которые сохраняются на вашем устройстве и помогают нам запоминать ваши предпочтения, анализировать посещаемость сайта и предоставлять более персонализированный контент. Использование файлов cookie позволяет нам сделать сайт удобнее для вас. Политика конфиденциальности
Принять Отказаться