3-х комнатная квартира

ЛО, Всеволожский, Рахья пос., Станционная ул.   Посмотреть на карте

Номер объекта: 344053
Цена на м2: 95 175

Время работы Call Центра:

ПН-ПТ с 9-30 до 22-00

СБ-ВС с 10-00 до 22-00

Нажимая на кнопку «Позвонить мне», Вы даете согласие на обработку своих персональных данных.

Описание

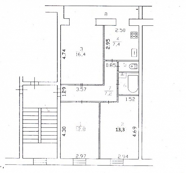
гп Рахья Всеволожский р-н  Предлагаем к продаже уютную, теплую квартиру с двухсторонней планировкой, в отличном состоянии. Общая площадь 60,1 кв.м,  изолированные комнаты (16,4; 12,8; 13,3) ,  застекленная лоджия (5 кв.м) с видом на сосновый лес,  кухня 7,4кв.м. Горячая вода -газовая колонка, раздельный санузел. Лоджия разделена на две части (одна часть совмещена с комнатой, вторая часть с кухней). На лоджию вынесена газовая колонка(очень функционально и безопасно).В стоимость квартиры входит мебель на кухне. Остальная мебель по договоренности. Чистый подъезд, хорошие соседи. Окна на восток и запад.
    Поселок с развитой инфраструктурой (д/сад, школа, муз. школа, поликлиника, православный храм, сетевые магазины, аптеки)  в 25 км от КАД.  Хорошая транспортная доступность. До Санкт-Петербурга ходит электричка (до ж/д ст. пешком 15 мин.) через 1 час  и вы на  Финляндском вокзале. 25 км на машине до КАД. Автобусы до Всеволожска и м. Ладожская. Звоните. Показ по договоренности.  Все фотографии актуальные. Звоните, ответим на все вопросы.

Расположение

Адрес
Рахья пос., Станционная ул., 30
Метро
Улица Дыбенко
Район
Всеволожский
Город
Рахья
Регион
Ленинградская область

Площади, м2

Жилая площадь
42.5
Общая площадь
60.1
Площадь кухни
7.4
Площадь прихожей
7.2

Параметры

Входная дверь
двойная
Горячее водоснабжение
Газовая колонка
Дата постройки
1980
Комнат
3
Лифт
Нет
Плита
Газовая
Сан. узел
Раздельный
Состояние
Отличное
Вход
со двора
Дом
Кирпичный
Этаж
5
Этажность
5
Ипотека
Да

Узнайте больше об объекте

Получите консультацию специалиста

Нажимая на кнопку «Отправить заявку», Вы даете согласие на обработку своих персональных данных.

Объект на карте

Похожие объекты

Затрудняетесь с выбором?

Не тратьте время на поиск и анализ множества предложений недвижимости
Мы сделаем это за вас профессионально, быстро, предложив оптимальные варианты по выгодной цене!

Затрудняетесь с выбором?

Не тратьте время на поиск и анализ множества предложений недвижимости
Мы сделаем это за вас профессионально, быстро, предложив оптимальные варианты по выгодной цене!

Затрудняетесь с выбором?

Не тратьте время на поиск и анализ множества предложений недвижимости
Мы сделаем это за вас профессионально, быстро, предложив оптимальные варианты по выгодной цене!

Затрудняетесь с выбором?

Не тратьте время на поиск и анализ множества предложений недвижимости
Мы сделаем это за вас профессионально, быстро, предложив оптимальные варианты по выгодной цене!

Этот сайт использует файлы cookie для улучшения пользовательского опыта. Cookie - это небольшие текстовые файлы, которые сохраняются на вашем устройстве и помогают нам запоминать ваши предпочтения, анализировать посещаемость сайта и предоставлять более персонализированный контент. Использование файлов cookie позволяет нам сделать сайт удобнее для вас. Политика конфиденциальности
Принять Отказаться