Жилой дом

ЛО, Ломоносовский, Лопухинка дер.   Посмотреть на карте

Номер объекта: 326873
Цена на м2: 47 813

Время работы Call Центра:

ПН-ПТ с 9-30 до 22-00

СБ-ВС с 10-00 до 22-00

Нажимая на кнопку «Позвонить мне», Вы даете согласие на обработку своих персональных данных.

Описание

Ломоносовский р-н, Лопухинское сельское поселение, ДНП `Сказка`.
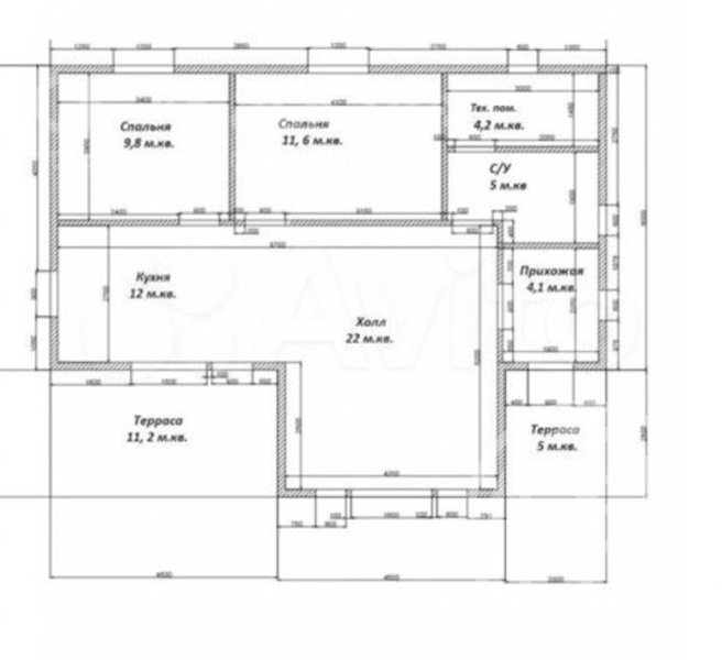
   СРОЧНАЯ ПРОДАЖА!  Продается новый уютный дом для круглогодичного проживания. В доме расположены кухня-гостиная 34 кв.м, две спальни 10 и 12 кв.м, просторный санузел 5 кв.м и хоз.комната 4.2 кв.м. Имеются две отдельные террасы 11 кв.м и 5 кв.м с шикарными видами на закат.
Дом теплый (утеплитель: потолок - 250 мм, стены - 150 мм, полы - 200 мм), произведен качественный ремонт. Стены оклеены американскими дизайнерскими обоими York. В санузле и котельной испанская плитка и теплый пол. В комнатах - ламинат и натяжные потолки. Свет 10 кВт, есть возможность увеличить.
Просторная кухня-гостиная с панорамным окнами и вторым светом имеет выход на большую террасу.
ДНП `Сказка` - это экологически чистый поселок в великолепном тихом месте вдали от суеты и шума города, вокруг лесной массив. На территории ДНП есть детская и спортивная площадки, пожарные водоемы, пункт охраны, шлагбаум административные здания, гостевая парковка и хорошее освещение по улицам. В шаговой доступности автобусная остановка.
Просмотры в удобное для вас время. Под семейную ипотеку не подходит - собственник физ. лицо.

Расположение

Адрес
Лопухинка дер.
Метро
Автово
Район
Ломоносовский
Расстояние от СПб
51
Город
Лопухинка
Регион
Ленинградская область

Площади, м2

Жилая площадь
22
Общая площадь
96
Площадь кухни
34
Площадь участка
8 сот.

Параметры

Комнат
2
Санузел
Совмещенный
Этажей
1
Ипотека
Да
Отделка
Обои
Отопление
Электрическое
Электрификация
Есть
Канализация
Нет
Водоснабжение
Отсутствует
Стены
Брус
Крыша
Металлочерепица
Подъездные пути
Асфальт
Готовность
95%
Фундамент
Столбы
Разрешенное использование
Дачное некоммерческое партнерство
Участок
Собственность

Узнайте больше об объекте

Получите консультацию специалиста

Нажимая на кнопку «Отправить заявку», Вы даете согласие на обработку своих персональных данных.

Объект на карте

Похожие объекты

Этот сайт использует файлы cookie для улучшения пользовательского опыта. Cookie - это небольшие текстовые файлы, которые сохраняются на вашем устройстве и помогают нам запоминать ваши предпочтения, анализировать посещаемость сайта и предоставлять более персонализированный контент. Использование файлов cookie позволяет нам сделать сайт удобнее для вас. Политика конфиденциальности
Принять Отказаться