Жилой дом

ЛО, Всеволожский, Щеглово пос.   Посмотреть на карте

Номер объекта: 331252
Цена на м2: 41 499

Время работы Call Центра:

ПН-ПТ с 9-30 до 22-00

СБ-ВС с 10-00 до 22-00

Нажимая на кнопку «Позвонить мне», Вы даете согласие на обработку своих персональных данных.

Описание

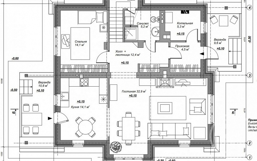
Ленинградская область,Всеволожский район, п.Щеглово.Недостроенный дом из газосиликатных блоков, усиленная фундаментная плита 600 мм( стандарт250-300 мм), с контрфорсами,  и  земельный участок 8,06 сотки в районе коттеджной застройки. В соседних домах - центральный газопровод, скважины, электричество. Хороший  подъезд.
Поселок Щеглово обладает развитой инфраструктурой - школа, детсад, магазины,храм, музыкальная школа. Сообщение с Спб маршрутка и электричка. Участок ровный, сухой. При желании можно купить еще 2 соседних участка или поселить друзей.Есть проект дома.

Расположение

Адрес
Щеглово пос.
Метро
Улица Дыбенко
Район
Всеволожский
Расстояние от СПб
23.04
Регион
Ленинградская область

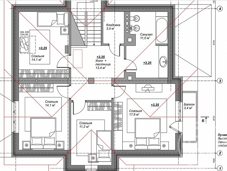
Площади, м2

Жилая площадь
104.2
Общая площадь
173.5
Площадь кухни
14.1
Площадь участка
8.06 сот.

Параметры

Комнат
6
Этажей
2
Ипотека
Нет
Электрификация
Возможно подключение
Стены
Пено-газобетон
Подъездные пути
Асфальт
Размер дома
10х11
Готовность
50%
Фундамент
Заливной монолитный
Разрешенное использование
ИЖС
Участок
Собственность

Узнайте больше об объекте

Получите консультацию специалиста

Нажимая на кнопку «Отправить заявку», Вы даете согласие на обработку своих персональных данных.

Объект на карте

Похожие объекты

Этот сайт использует файлы cookie для улучшения пользовательского опыта. Cookie - это небольшие текстовые файлы, которые сохраняются на вашем устройстве и помогают нам запоминать ваши предпочтения, анализировать посещаемость сайта и предоставлять более персонализированный контент. Использование файлов cookie позволяет нам сделать сайт удобнее для вас. Политика конфиденциальности
Принять Отказаться