Жилой дом

ЛО, Приозерский, Сосново пос., Дубравная ул   Посмотреть на карте

Номер объекта: 331349
Цена на м2: 52 000

Время работы Call Центра:

ПН-ПТ с 9-30 до 22-00

СБ-ВС с 10-00 до 22-00

Нажимая на кнопку «Позвонить мне», Вы даете согласие на обработку своих персональных данных.

Описание

Предлагаем Вашему вниманию жилой дом 125 м кв на 10 сотках ИЖС. электричество 15 квт, колодец 6 колец с чистейшей водой, септик. Остановка общественного транспорта в 300 м от дома, до п Сосново 5 мин езды, вся инфраструктура с магазинами к Вашим услугам.Также на общественном транспорте за 1ч 20 мин Вы доедете до м Парнас.За домом сосновый лес. Дом совершенно новый.Что самое важное что этот дом подходит под сельскую ипотеку.Всего 2 км горнолыжный курорт «Игора» в Ленинградской области  — это не только трассы для катаний, но также ледовый дворец, плавательный комплекс.Под семейную ипотеку не подходит.

Расположение

Адрес
Сосново пос., Дубравная ул
Метро
Парнас
Район
Приозерский
Расстояние от СПб
65.19
Город
Сосново
Регион
Ленинградская область

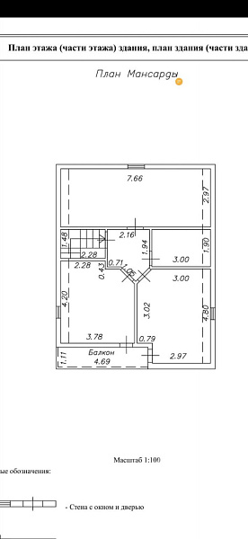
Площади, м2

Жилая площадь
65
Общая площадь
125
Площадь кухни
20
Площадь участка
10 сот.

Параметры

Комнат
5
Санузел
2 сан.узла
Состояние
Отличное
Этажей
2
Ипотека
Да
Отделка
Вагонка
Отопление
Электрическое
Электрификация
380
Водоснабжение
Колодец+насос
Стены
Каркас
Крыша
Металлочерепица
Фундамент
Столбы
Разрешенное использование
ИЖС
Участок
Собственность

Узнайте больше об объекте

Получите консультацию специалиста

Нажимая на кнопку «Отправить заявку», Вы даете согласие на обработку своих персональных данных.

Объект на карте

Похожие объекты

Этот сайт использует файлы cookie для улучшения пользовательского опыта. Cookie - это небольшие текстовые файлы, которые сохраняются на вашем устройстве и помогают нам запоминать ваши предпочтения, анализировать посещаемость сайта и предоставлять более персонализированный контент. Использование файлов cookie позволяет нам сделать сайт удобнее для вас. Политика конфиденциальности
Принять Отказаться