Жилой дом

ЛО, Всеволожский, Дубровка пос., Московская ул.   Посмотреть на карте

Номер объекта: 332372
Цена на м2: 148 416

Время работы Call Центра:

ПН-ПТ с 9-30 до 22-00

СБ-ВС с 10-00 до 22-00

Нажимая на кнопку «Позвонить мне», Вы даете согласие на обработку своих персональных данных.

Описание

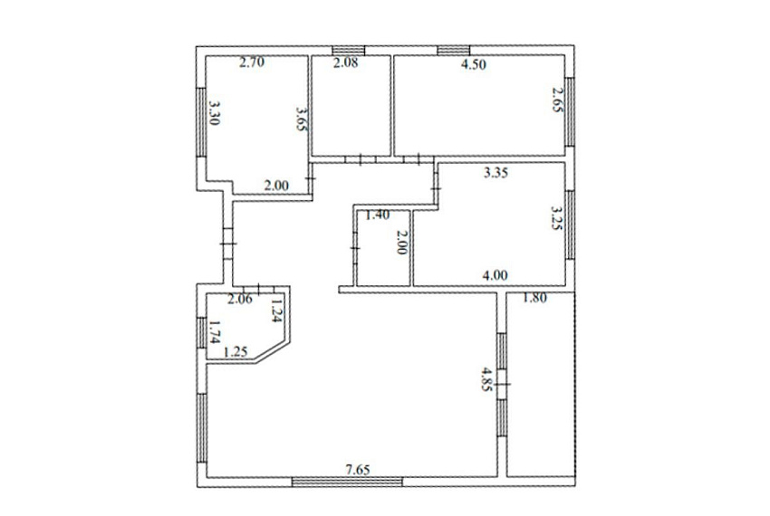
пос.Дубровка, ул.Московская. В продаже небольшой , новый, современный дом из газобетона. Хорошая планировка: 3 комнаты, кухня- гостиная ( 37кв.м.), СУ ,постирочная, гардероб. В доме электричество ( 15КВТ), центральный водопровод, магистральный газ, канализация-септик. Участок 12 соток, правильной квадратной формы. На участке навес на 2 машины, хозблок. В стоимость входит готовность дома под чистовую отделку. Поселок с развитой инфраструктурой, неподалеку лес, река Нева.Отличное предложение для постоянного проживания.

Расположение

Адрес
Дубровка пос., Московская ул.
Метро
Улица Дыбенко
Район
Всеволожский
Расстояние от СПб
37.93
Город
Невская Дубровка
Регион
Ленинградская область

Площади, м2

Жилая площадь
32
Общая площадь
101
Площадь кухни
12
Площадь участка
12 сот.

Параметры

Комнат
3
Санузел
2 сан.узла
Этажей
1
Ипотека
Нет
Отделка
Без отделки
Отопление
АГВ
Электрификация
380
Водоснабжение
Центр. водопровод
Стены
Пено-газобетон
Крыша
Металлочерепица
Подъездные пути
Асфальт
Готовность
80%
Фундамент
Заливной монолитный
Разрешенное использование
ИЖС

Узнайте больше об объекте

Получите консультацию специалиста

Нажимая на кнопку «Отправить заявку», Вы даете согласие на обработку своих персональных данных.

Объект на карте

Похожие объекты

Этот сайт использует файлы cookie для улучшения пользовательского опыта. Cookie - это небольшие текстовые файлы, которые сохраняются на вашем устройстве и помогают нам запоминать ваши предпочтения, анализировать посещаемость сайта и предоставлять более персонализированный контент. Использование файлов cookie позволяет нам сделать сайт удобнее для вас. Политика конфиденциальности
Принять Отказаться