ЛО, Выборгский, Полянское сельское поселение, Сады снт Посмотреть на карте
Время работы Call Центра:
ПН-ПТ с 9-30 до 22-00
СБ-ВС с 10-00 до 22-00
снт Сады.
Новый дачный дом в небольшом садоводстве с закрытой территорией. В пешей доступности Гладышевское озеро.
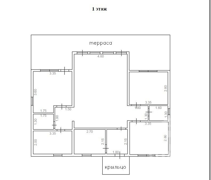
Подведено электричество, вода-скважина, канализация-септик. Дом 1-этажный, с террасой.
Дом подготовлен под чистовую отделку. Установлена баня. Участок ровный, правильной формы.
Окружение: новые, современные дома. Практически все соседи уже построились.
Участок и дом в собственности. Межевание сделано.
Просмотры по договоренности.
Расположение
Площади, м2
Параметры Получите консультацию специалиста
Не тратьте время на поиск и анализ множества предложений недвижимости
Мы сделаем это за вас профессионально, быстро, предложив оптимальные варианты по выгодной цене!