Жилой дом

Санкт-Петербург, Петродворцовый, Ломоносов г., Промышленный пер.   Посмотреть на карте

Номер объекта: 334357
Цена на м2: 232 713

Время работы Call Центра:

ПН-ПТ с 9-30 до 22-00

СБ-ВС с 10-00 до 22-00

Нажимая на кнопку «Позвонить мне», Вы даете согласие на обработку своих персональных данных.

Описание

Продаётся  презентабельный дом в г. Ломоносов по ул.Промышленный переулок.
ИЖС для круглогодичного проживания с пропиской.
В живописном месте Петродворцового района  в 5 минутах езды  до
дворцово- паркового ансамбля г. Петергофа.
Удобный выезд на КАД, всего 5 мин до центра г .Ломоносов.

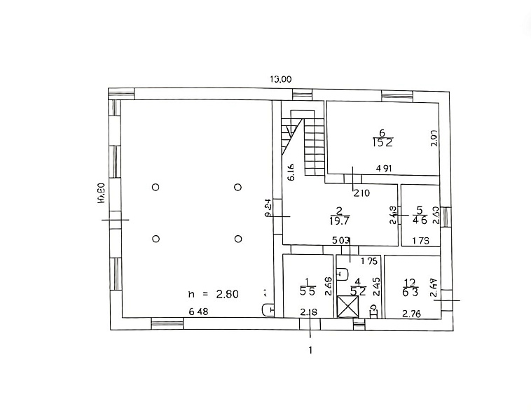
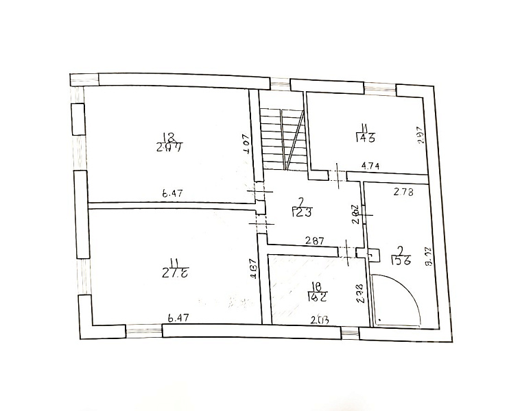
В доме 4 комнаты, кабинет, гостиная-кухня, гардеробная, прачечная, два санузла, ванная-джакузи,
сауна и душевая.
Общая площадь дома 360 кв.м. Третий этаж свободной планировки.
Стены дома из газобетонных блоков 400 мм с утеплением (каменная вата Rockwool толщ. 150мм.)
фасад дома - клинкерная плитка.
Все перекрытия монолитные. Перегородки внутренние газобетон и кирпич.
Внутренняя отделка стен армированная декоративная штукатурка с покраской.
Высота потолка 1-2 этажа 2,8м.,3 мансардный этаж-1,8-4,6 м.
Полы с теплым контуром на 1 и 2 этаже, покрытие  ламинат и напольная плитка.
Окна утепленные зеркальные 2-х камерные.
Цоколь дома отделан из полнотелого кирпича. Отделка площадки у дома брусчатка.
Кровля многоскатная, покрытие металлочерепица (утепление - плиты минвата Rockwool 200мм, паро- гидроизоляция Tyvek).
Система подкровельной вентиляции под уклон в соответствии со строительными нормативами.

Электричество  мощностью 30 кВт, договор с ЛенЭнерго.
Газ проходит по границе участка,есть возможность подключения.
Септик на 6 чел.Вода из собственной скважины.
Имеется водосточная, ливнёвая и дренажная система.
Для приятного времяпровождения баня с большой террасой и зоной барбекю!
Развитая  инфраструктура -  детский сад, школа, библиотека, аптека, магазины.....
10 минут до пляжа Финского залива.
Отличная транспортная развязка, в шаговой доступности ЖД станция `Мартышкино`
Прекрасный панорамный вид из окон дома на свой участок и лес.
Участок 10 соток (есть возможность увеличения участка),ровный, сухой, правильной формы где
высажены  плодоносящие деревья и кустарники.
Дом находиться в тихом тупиковом переулке- никакого трафика , только тишина ,чистый воздух и пение птиц.
Торг уместен!

Расположение

Адрес
Ломоносов г., Промышленный пер.
Метро
Проспект Ветеранов
Район
Петродворцовый
Расстояние от СПб
7.96
Город
Ломоносов
Регион
Санкт-Петербург

Площади, м2

Жилая площадь
180
Общая площадь
225.6
Площадь кухни
40
Площадь участка
10 сот.

Параметры

Комнат
5
Санузел
В доме
Состояние
Хорошее
Этажей
2
Ипотека
Нет
Отделка
Обои
Отопление
Камин
Водоснабжение
В доме
Крыша
Металлочерепица
Подъездные пути
Асфальт
Готовность
Готов
Разрешенное использование
ИЖС
Участок
Собственность

Узнайте больше об объекте

Получите консультацию специалиста

Нажимая на кнопку «Отправить заявку», Вы даете согласие на обработку своих персональных данных.

Объект на карте

Похожие объекты

Затрудняетесь с выбором?

Не тратьте время на поиск и анализ множества предложений недвижимости
Мы сделаем это за вас профессионально, быстро, предложив оптимальные варианты по выгодной цене!

Этот сайт использует файлы cookie для улучшения пользовательского опыта. Cookie - это небольшие текстовые файлы, которые сохраняются на вашем устройстве и помогают нам запоминать ваши предпочтения, анализировать посещаемость сайта и предоставлять более персонализированный контент. Использование файлов cookie позволяет нам сделать сайт удобнее для вас. Политика конфиденциальности
Принять Отказаться