Жилой дом

Санкт-Петербург, Курортный, Сестрорецк г., 17-я линия (Разлив) ул.   Посмотреть на карте

Номер объекта: 335303
Цена на м2: 102 042

Время работы Call Центра:

ПН-ПТ с 9-30 до 22-00

СБ-ВС с 10-00 до 22-00

Нажимая на кнопку «Позвонить мне», Вы даете согласие на обработку своих персональных данных.

Описание

СПб, г. Сестрорецк, СНТ `Разлив`
Пpедлагаeм новый, 2024 года постройки, современный  2-х этажный жилой дом, общей площадью 240 кв.м.,  расположенный на участке 4,6 соток. В доме панорамное остекление, что создает ощущение света и пространства.
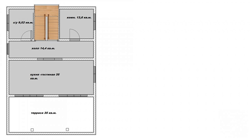
На первом этаже  просторный холл, кухня-гостиная с выходом на большую террасу, спальня, санузел, (полы с подогревом) На 2-м этаже -3 спальные комнаты, большой холл с выходом на балкон, санузел.
Фундамент-монолитная плита.
Материал стен- газобетон. Дом утеплен каменной ватой,  Рок Фасад оштукатурен штукатуркой и окрашен.
- Перекрытия - Монолит
- Кровля - Металлочерепица
  Отопление
  1 этаж- теплый пол
  2 этаж- радиаторы
  В систему залит антифриз.
Коммуникации: Электричество, Газ по границе участка, Центральный водопровод, локальная канализация.
Участок полностью огорожен,установлены автоматические ворота.
Хорошее транспортное сообщение,  всeгo в 15 мин. езды дo м Беговая. Удобныe выeзды на KAД, ЗСД и тpaсcу Cкандинaвия. Идeaльно для постоянного проживания, в экологически чистом месте. Шаговая доступность до озера Разлив, Финский залив в 1 км,  Звоните, покажем в любое удобное для Вас время.

Расположение

Адрес
Сестрорецк г., 17-я линия (Разлив) ул.
Метро
Беговая
Район
Курортный
Расстояние от СПб
5.86
Город
Сестрорецк
Регион
Санкт-Петербург

Площади, м2

Общая площадь
240
Площадь участка
4.6 сот.

Параметры

Комнат
4
Санузел
2 сан.узла
Этажей
2
Ипотека
Нет
Отделка
Штукатурка
Электрификация
Есть
Водоснабжение
Центр. водопровод
Стены
Пено-газобетон
Крыша
Металлочерепица
Подъездные пути
Асфальт
Размер дома
24490
Готовность
Готов
Фундамент
Заливной монолитный
Разрешенное использование
Садоводство
Участок
Собственность

Узнайте больше об объекте

Получите консультацию специалиста

Нажимая на кнопку «Отправить заявку», Вы даете согласие на обработку своих персональных данных.

Объект на карте

Похожие объекты

Этот сайт использует файлы cookie для улучшения пользовательского опыта. Cookie - это небольшие текстовые файлы, которые сохраняются на вашем устройстве и помогают нам запоминать ваши предпочтения, анализировать посещаемость сайта и предоставлять более персонализированный контент. Использование файлов cookie позволяет нам сделать сайт удобнее для вас. Политика конфиденциальности
Принять Отказаться