Жилой дом

ЛО, Выборгский, Первомайское пос., Ручеёк-Первомайское снт   Посмотреть на карте

Номер объекта: 338756
Цена на м2: 50 667

Время работы Call Центра:

ПН-ПТ с 9-30 до 22-00

СБ-ВС с 10-00 до 22-00

Нажимая на кнопку «Позвонить мне», Вы даете согласие на обработку своих персональных данных.

Описание

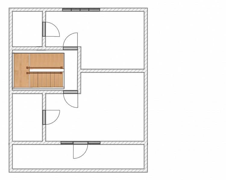
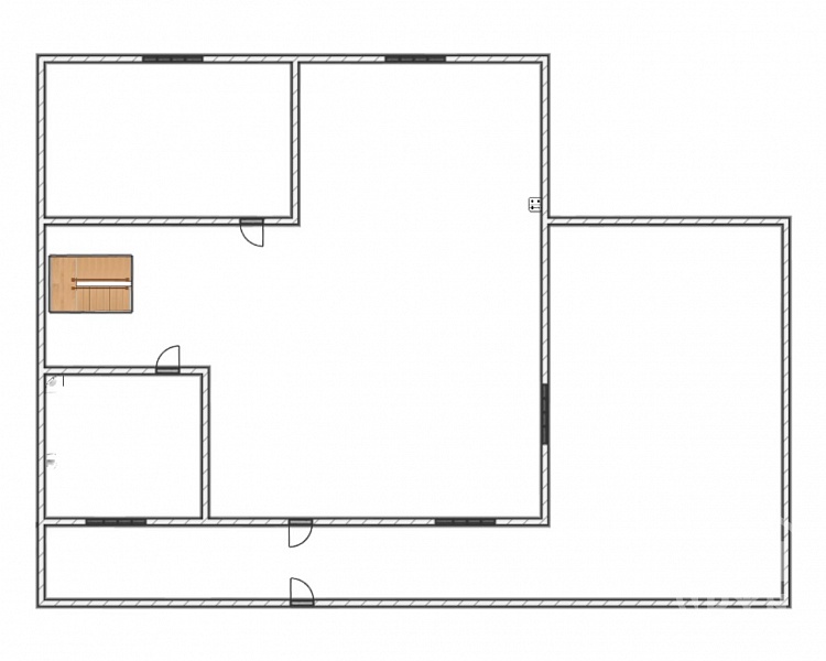
В пос. Первомайское Выборгского р-она Ленинградской обл отличное предложение — двухэтажный дом — каракас 2015 г.п., зимний теплый жилой дом. Общая площадь составляет 150 кв. м. При входе в дом располагается открытая терраса. На первом этаже располагается просторная прихожая, кухня 11,7 кв.м., гостиная 29,1 кв.м, спальня 11,7 кв.м и совмещенный с/у 6,6 кв.м. На 2 этаже 2 изолированные комнаты 21,7 кв.м. + 18,9 кв.м, 2 гардеробные 5,6 кв.м. и 4,7 кв.м. + балкон 14,6 кв.м. Высота потолка на 1 этаже 2.5 м, второй этаж мансардный. Дом светлый, просторный. Строился для себя из хороших дорогих материалов. Фундамент плита + лента. Крыша ондулин. Дом обшит — блокхаусом. Электричество 15 кВт. Вода в доме —скважина 18 метров. Локальная канализация. Отопление электричество. Центральный газ по границе участка. В доме выполнена предчистовая отделка, требуется частичная внутренняя отделка. Земельный участок площадью 6 соток, категория земли — земли населенных пунктов. Ровный, прямоугольный. Участок огорожен деревянным забором. Соседи живут постоянно, улица электрифицирована, освещается и чистится. Участок и дом имеет прекрасное расположение сочетание несочетаемого: хорошая транспортная доступность — прямое сообщение с г.Санкт- Петербургом и изумительная природа — сосновый бор, грибы, ягоды, озеро в шаговой доступности.Торг возможен.

Расположение

Адрес
Первомайское пос., Ручеёк-Первомайское снт
Метро
Беговая
Район
Выборгский
Расстояние от СПб
60.44
Город
Первомайское
Регион
Ленинградская область

Площади, м2

Общая площадь
150
Площадь кухни
11.7
Площадь участка
6 сот.

Параметры

Комнат
4
Санузел
В доме
Этажей
2
Ипотека
Нет
Отопление
Электрическое
Электрификация
Есть
Канализация
Локальная канал.
Водоснабжение
Скважина
Стены
Каркас
Крыша
Ондулин
Подъездные пути
Асфальт
Фундамент
Заливной монолитный
Разрешенное использование
Садоводство
Участок
Собственность

Узнайте больше об объекте

Получите консультацию специалиста

Нажимая на кнопку «Отправить заявку», Вы даете согласие на обработку своих персональных данных.

Объект на карте

Похожие объекты

Этот сайт использует файлы cookie для улучшения пользовательского опыта. Cookie - это небольшие текстовые файлы, которые сохраняются на вашем устройстве и помогают нам запоминать ваши предпочтения, анализировать посещаемость сайта и предоставлять более персонализированный контент. Использование файлов cookie позволяет нам сделать сайт удобнее для вас. Политика конфиденциальности
Принять Отказаться