Жилой дом

ЛО, Выборгский, Рощино пос., Офицерская ул.   Посмотреть на карте

Номер объекта: 339370
Цена на м2: 58 292

Время работы Call Центра:

ПН-ПТ с 9-30 до 22-00

СБ-ВС с 10-00 до 22-00

Нажимая на кнопку «Позвонить мне», Вы даете согласие на обработку своих персональных данных.

Описание

Ленинградская обл. Выборгский р-он, п. Рощино, Офицерская улица.
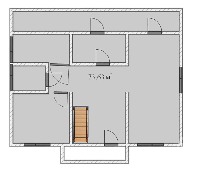
Предлагается отличный участок ИЖС,  общей площадью 1200 кв.м (по факту 14 соток) с новым, недостроенным домом, пл. 240 кв.м.  Есть хорошая возможность  реализовать проект по своему вкусу. Участок разработан.  Сухой,ровный, прямоугольной формы. На участке расположен  летний дом, 100% готовности. Центральный водопровод, 15 кВт электричества. Газ в 100 метрах от  участка. Прописка.  В шаговой доступности река Рощинка, где  обустроен пляж для отдыха и купания.  Звоните,  отвечу на все интересующие вопросы.
Участок находится в окружении вековых сосен

Расположение

Адрес
Рощино пос., Офицерская ул.
Метро
Беговая
Район
Выборгский
Расстояние от СПб
62.87
Город
Рощино
Регион
Ленинградская область

Площади, м2

Общая площадь
240
Площадь участка
12 сот.

Параметры

Комнат
3
Этажей
2
Ипотека
Нет
Отделка
Без отделки
Электрификация
380
Водоснабжение
Центр. водопровод
Стены
Каркас
Крыша
Металлочерепица
Подъездные пути
Асфальт
Размер дома
10x12
Фундамент
Столбы
Разрешенное использование
ИЖС
Участок
Собственность

Узнайте больше об объекте

Получите консультацию специалиста

Нажимая на кнопку «Отправить заявку», Вы даете согласие на обработку своих персональных данных.

Объект на карте

Похожие объекты

Этот сайт использует файлы cookie для улучшения пользовательского опыта. Cookie - это небольшие текстовые файлы, которые сохраняются на вашем устройстве и помогают нам запоминать ваши предпочтения, анализировать посещаемость сайта и предоставлять более персонализированный контент. Использование файлов cookie позволяет нам сделать сайт удобнее для вас. Политика конфиденциальности
Принять Отказаться