Жилой дом

ЛО, Выборгский, Малышево пос.   Посмотреть на карте

Номер объекта: 339670
Цена на м2: 60 494

Время работы Call Центра:

ПН-ПТ с 9-30 до 22-00

СБ-ВС с 10-00 до 22-00

Нажимая на кнопку «Позвонить мне», Вы даете согласие на обработку своих персональных данных.

Описание

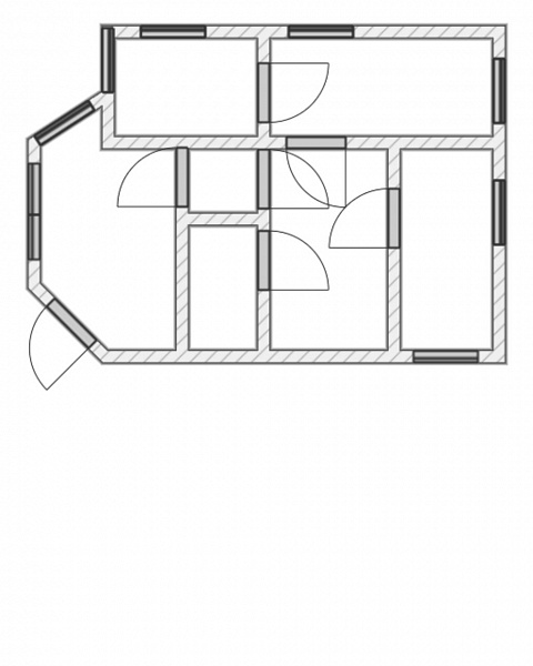
Продается дом ИЖС 1993 г.п. с участком 18 ст., расположенный в пос. Малышево. Выборгского района. Дом, общей площадью 81 м2, размером 7,5 х 6,5 м., выполнен из бруса, внешняя облицовка – кирпич, внутренняя – вагонка. На первом этаже расположены: кухня 6,5 м2, гостиная 14,1 м2, закрытая веранда – комната 4,7 м2, прихожая 4,8 м2, подсобные помещения. На втором этаже три комнаты 8,8 м2, 10,9 м2, 6,7 м2. Фундамент ленточный бетонный. Крыша – металл. Окна деревянные, на окнах решетки. Отопление электрическое и дровяное. В гостиной комнате камин, на кухне печь. Участок огорожен сеткой рабица. Туалет во дворе. В 7 минутах ходьбы расположено озеро Пионерское. Вокруг леса, где много ягод и грибов. Дом расположен на противоположной стороне участка, который непосредственно примыкает к Центральной улице. Дорогу зимой чистят регулярно. Продукты привозят автолавкой по расписанию.

Расположение

Адрес
Малышево пос.
Район
Выборгский
Расстояние от СПб
133.76
Город
Малышево
Регион
Ленинградская область

Площади, м2

Жилая площадь
40
Общая площадь
81
Площадь кухни
6
Площадь участка
18 сот.

Параметры

Комнат
3
Санузел
На улице
Состояние
Хорошее
Этажей
2
Ипотека
Нет
Отделка
Вагонка
Отопление
Камин
Электрификация
Есть
Водоснабжение
Колодец
Стены
Брус
Крыша
Металл
Подъездные пути
Асфальт
Фундамент
Ленточный
Разрешенное использование
ИЖС
Участок
Собственность

Узнайте больше об объекте

Получите консультацию специалиста

Нажимая на кнопку «Отправить заявку», Вы даете согласие на обработку своих персональных данных.

Объект на карте

Похожие объекты

Этот сайт использует файлы cookie для улучшения пользовательского опыта. Cookie - это небольшие текстовые файлы, которые сохраняются на вашем устройстве и помогают нам запоминать ваши предпочтения, анализировать посещаемость сайта и предоставлять более персонализированный контент. Использование файлов cookie позволяет нам сделать сайт удобнее для вас. Политика конфиденциальности
Принять Отказаться