Жилой дом

ЛО, Тосненский, Любань пгт., Круговая ул.   Посмотреть на карте

Номер объекта: 340563
Цена на м2: 63 874

Время работы Call Центра:

ПН-ПТ с 9-30 до 22-00

СБ-ВС с 10-00 до 22-00

Нажимая на кнопку «Позвонить мне», Вы даете согласие на обработку своих персональных данных.

Описание

Продается отличный, теплый , уютный дом для семьи в г. Любань Ленинградской области 336,6 м2на участке 18,26 соток. Дом двухэтажный, кровля двускатная.
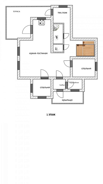
На первом этаже размещаются: гардеробная, тамбур с выходом на крыльцо, холл, две спальни, кухня-столовая 57,68 м2 с выходом на террасу, сан.узел, ванная, тех.помещение. Под тех.помещением располагается подвалс высотой потолка 2м.
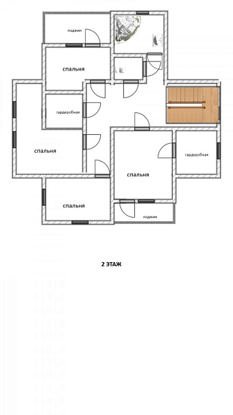
На втором этаже размещаются 4 спальни ( 2 из них с выходом на лоджии, одна с гардеробной), сан.узел, ванная, общая гардеробная, холл.
Фундамент-ж/б плитный, с устройством ребер жесткости.
Несущие стены-керамический поризованный блок.
Внешняя отделка стен-облицовачный кирпич.
Кровельное окрытие-мягкая черепица.
Оконные блоки и двери лоджии-металлопластиковые с двухкамерными стеклопакетами.
На территории участка баня 12м2.
Отопление-газовый котел, водоснабжение- скважина, теплые полы.
Звоните- отвечу на вопросы, организую просмотр.

Расположение

Адрес
Любань пгт., Круговая ул.
Метро
Рыбацкое
Район
Тосненский
Расстояние от СПб
85.96
Город
Любань
Регион
Ленинградская область

Площади, м2

Жилая площадь
114.17
Общая площадь
336.6
Площадь кухни
57.68
Площадь участка
18 сот.

Параметры

Комнат
6
Санузел
Два и более
Состояние
Отличное
Этажей
2
Ипотека
Нет
Отопление
АГВ
Электрификация
Есть
Водоснабжение
Скважина
Стены
КЕРАМЗИТОБЕТОН
Крыша
Мягкая кровля
Размер дома
336,6
Готовность
Готов
Фундамент
Заливной монолитный
Разрешенное использование
ИЖС
Участок
Собственность

Узнайте больше об объекте

Получите консультацию специалиста

Нажимая на кнопку «Отправить заявку», Вы даете согласие на обработку своих персональных данных.

Объект на карте

Похожие объекты

Этот сайт использует файлы cookie для улучшения пользовательского опыта. Cookie - это небольшие текстовые файлы, которые сохраняются на вашем устройстве и помогают нам запоминать ваши предпочтения, анализировать посещаемость сайта и предоставлять более персонализированный контент. Использование файлов cookie позволяет нам сделать сайт удобнее для вас. Политика конфиденциальности
Принять Отказаться