Жилой дом

ЛО, Лужский, Ильжо дер.   Посмотреть на карте

Номер объекта: 341224
Цена на м2: 60 526

Время работы Call Центра:

ПН-ПТ с 9-30 до 22-00

СБ-ВС с 10-00 до 22-00

Нажимая на кнопку «Позвонить мне», Вы даете согласие на обработку своих персональных данных.

Описание

Ленинградская область, Лужский район, д. Ильжо
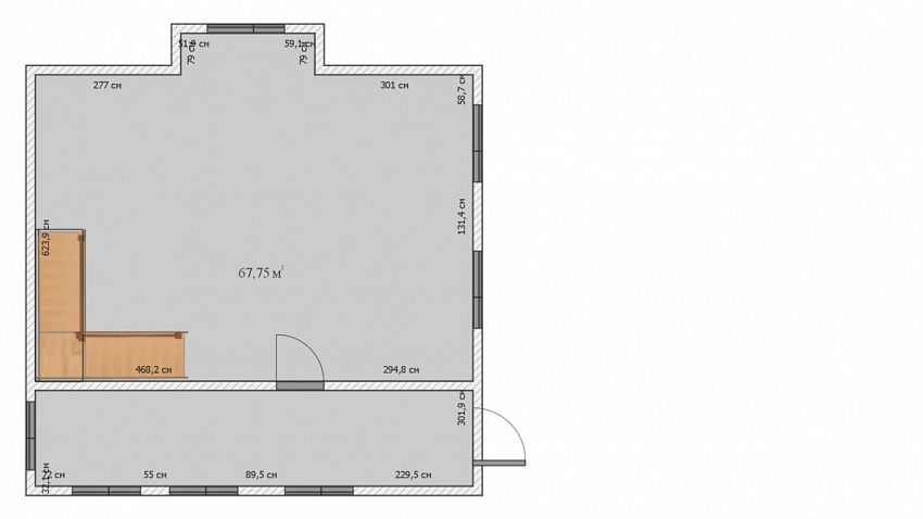
На первой линии Ильжовского озера продается земельный участок 20 соток и расположенный на нем новый дом 2022 года постройки 114 кв м
Дом двухэтажный из бревна, фундамент ленточный, крыша мягкая черепица.
На первом этаже коридор и огромная комната с четырьмя окнами, что позволяет разделить комнату на несколько зон, есть фундамент под почку, сухой подвал в полный рост.
На втором этаже две спальни.
Водоснабжения и канализации нету.
Площадь участка 20 соток, огорожен, имеет небольшой уклон, свой выход к озеру, беседка, уличный туалет.
В 3 минутах от дома продуктовый магазин и остановка общественного транспорта, детская площадка .
Отличные места для уединения с природой : рыбалка , охота , грибы, ягоды .
В деревне имеется усадьба, где Шишкин и Крамской писали свои знаменитые пейзажи .
Отличное местоположение с прекрасным озером.

Расположение

Адрес
Ильжо дер.
Район
Лужский
Город
Ильжо
Регион
Ленинградская область

Площади, м2

Общая площадь
114
Площадь участка
20 сот.

Параметры

Комнат
3
Этажей
2
Ипотека
Да
Электрификация
Есть
Водоснабжение
Отсутствует
Стены
Бревна
Крыша
Мягкая кровля
Размер дома
8х8
Фундамент
Ленточный
Разрешенное использование
ЛПХ
Участок
Собственность

Узнайте больше об объекте

Получите консультацию специалиста

Нажимая на кнопку «Отправить заявку», Вы даете согласие на обработку своих персональных данных.

Объект на карте

Похожие объекты

Этот сайт использует файлы cookie для улучшения пользовательского опыта. Cookie - это небольшие текстовые файлы, которые сохраняются на вашем устройстве и помогают нам запоминать ваши предпочтения, анализировать посещаемость сайта и предоставлять более персонализированный контент. Использование файлов cookie позволяет нам сделать сайт удобнее для вас. Политика конфиденциальности
Принять Отказаться