Жилой дом

ЛО, Всеволожский, Сады массив, Березка-2 снт   Посмотреть на карте

Номер объекта: 341229
Цена на м2: 56 250

Время работы Call Центра:

ПН-ПТ с 9-30 до 22-00

СБ-ВС с 10-00 до 22-00

Нажимая на кнопку «Позвонить мне», Вы даете согласие на обработку своих персональных данных.

Описание

Предлагаем к продаже жилой,зимний дом в снт Березка, массив Сады,Всеволожский район,Ленинградская область.
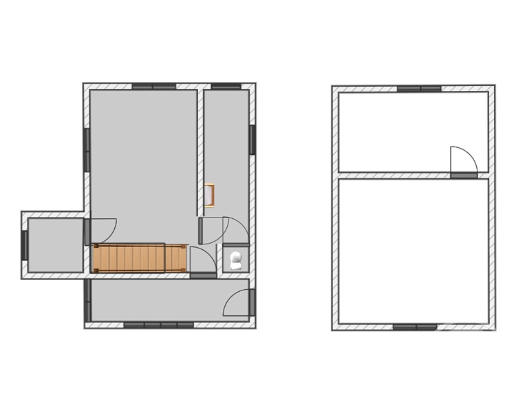
Дом очень крепкий,двухэтажный с большой верандой и санузлом в доме.Фундамент ленточный и бетонные блоки,сделана отмостка по периметру дома.Отопление печь с варочной поверхностью для готовки.На первом этаже большая веранда,кухня с холодильником и микроволновой печью,просторная гостиная и спальня,туалет зимний.На втором этаже холл и еще одна комната,есть места для хранения.Вода заведена в дом и баню,летний водопровод и колодец с насосной станцией.Дом основательный,жилой,подходит для круглогодичного проживания и прописки.
Участок 9 соток,соседи только с двух сторон.Хороший,удобный заезд,участок огорожен со всех сторон.Разработан,сделан дренаж,стоит фильтрационная установка для летнего водопровода.На участке расположены  просторная баня с душевой и комнатой отдыха,небольшой уютной парилкой.Также на участке есть хозблок-мастерская.Растут сосны,голубые ели,березы.Место тихое,спокойное,хорошие соседи.Садоводство небольшое,дружное.Дороги зимой чистят,охрана.До озера с пляжем и лесом 15 минут пешком.Хорошая транспортная доступность,до ж/д станции 25 минут пешком.От города ехать на машине 40 минут,на электричке час.Рядом Ладожское озеро и Нева,прекрасные места для отдыха и рыбалки.
Звоните и мы договоримся о просмотре.Полное юридическое сопровождение сделки.

Расположение

Адрес
Сады массив, Березка-2 снт
Метро
Рыбацкое
Район
Всеволожский
Расстояние от СПб
41.09
Регион
Ленинградская область

Площади, м2

Жилая площадь
40
Общая площадь
80
Площадь кухни
12
Площадь участка
9 сот.

Параметры

Комнат
3
Санузел
В доме
Этажей
2
Ипотека
Да
Отделка
Вагонка
Отопление
Печь
Электрификация
220
Водоснабжение
В доме
Стены
Панель
Крыша
Металл
Подъездные пути
Асфальт
Размер дома
6*8
Готовность
Готов
Фундамент
Заливной монолитный
Разрешенное использование
Садоводство
Участок
Собственность

Узнайте больше об объекте

Получите консультацию специалиста

Нажимая на кнопку «Отправить заявку», Вы даете согласие на обработку своих персональных данных.

Объект на карте

Похожие объекты

Этот сайт использует файлы cookie для улучшения пользовательского опыта. Cookie - это небольшие текстовые файлы, которые сохраняются на вашем устройстве и помогают нам запоминать ваши предпочтения, анализировать посещаемость сайта и предоставлять более персонализированный контент. Использование файлов cookie позволяет нам сделать сайт удобнее для вас. Политика конфиденциальности
Принять Отказаться