Жилой дом

ЛО, Всеволожский, Малая Романовка дер., Садовая ул.   Посмотреть на карте

Номер объекта: 341819
Цена на м2: 75 603

Время работы Call Центра:

ПН-ПТ с 9-30 до 22-00

СБ-ВС с 10-00 до 22-00

Нажимая на кнопку «Позвонить мне», Вы даете согласие на обработку своих персональных данных.

Описание

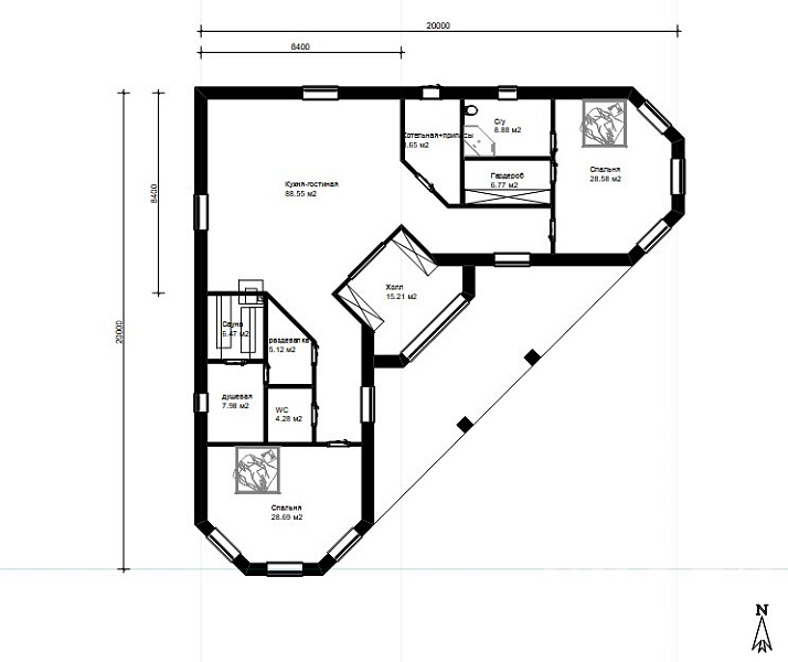
Ленинградская область, Всеволожский р-н, Малая Романовка дер. Коттедж с отделкой 95%!  Построен на монолитной плите 300 мм, с утеплением, качественные материалы, строился для себя, без экономии. Пено-газобетон 400 мм+ утепление фасада+ полнотелый кирпич = толщина стен 600мм. Все коммуникации в доме. Внутренняя отделка- интерьерная штукатурка полностью выполнена, потолок в гостиной в стиле Лофт, мраморные подоконники, идеальная заливка пола. Качественное остекление дома с энергосберегающим покрытием. Установлены датчики температуры для АГВ. Котельная полностью оборудована.
  Две большие спальни с просторными гардеробными комнатами. Два полноценных санузла, один гостевой, один в спальне. Помещение сауны с помывочной зоной- без косметической отделки, все коммуникации проведены.
В доме осталось сделать напольное покрытие, двери и потолки в спальных комнатах и котельной, а так же отделка санузлов.
   По всем помещениям выполнены теплые водяные полы, а так же радиаторы в каждой комнате, что позволяет отрегулировать комфортную температуру.
   Участок огорожен хорошим металлическим забором, ворота откатные. На въезде навес на 2 а/м с хозяйственным помещением.
   Идеальное местоположение, достойное окружение, отличный подъезд к дому. Вся инфраструктура в пешей доступности. Школа, детский сад, амбулатория, остановка городского транспорта, ж/д станция. Прямая продажа. Без обременений, полная стоимость в ДКП. Один взрослый собственник.

Расположение

Адрес
Малая Романовка дер., Садовая ул.
Метро
Ладожская
Район
Всеволожский
Расстояние от СПб
18
Город
Малая Романовка
Регион
Ленинградская область

Площади, м2

Жилая площадь
145.77
Общая площадь
215.6
Площадь участка
14.2 сот.

Параметры

Комнат
3
Санузел
2 сан.узла
Состояние
Отличное
Этажей
1
Ипотека
Да
Отделка
Штукатурка
Отопление
АГВ
Электрификация
380
Водоснабжение
Колодец+насос
Стены
Пено-газобетон
Крыша
Металлочерепица
Подъездные пути
Асфальт
Готовность
95%
Фундамент
Заливной монолитный
Разрешенное использование
ИЖС
Участок
Собственность

Узнайте больше об объекте

Получите консультацию специалиста

Нажимая на кнопку «Отправить заявку», Вы даете согласие на обработку своих персональных данных.

Объект на карте

Похожие объекты

Затрудняетесь с выбором?

Не тратьте время на поиск и анализ множества предложений недвижимости
Мы сделаем это за вас профессионально, быстро, предложив оптимальные варианты по выгодной цене!

Этот сайт использует файлы cookie для улучшения пользовательского опыта. Cookie - это небольшие текстовые файлы, которые сохраняются на вашем устройстве и помогают нам запоминать ваши предпочтения, анализировать посещаемость сайта и предоставлять более персонализированный контент. Использование файлов cookie позволяет нам сделать сайт удобнее для вас. Политика конфиденциальности
Принять Отказаться