Жилой дом

ЛО, Ломоносовский, Низино дер., Нахимовская ул   Посмотреть на карте

Номер объекта: 342370
Цена на м2: 115 741

Время работы Call Центра:

ПН-ПТ с 9-30 до 22-00

СБ-ВС с 10-00 до 22-00

Нажимая на кнопку «Позвонить мне», Вы даете согласие на обработку своих персональных данных.

Описание

Ленинградская область, Ломоносовский р-н, Низино дер.

Просторный дом 108 м² в КП «Петергофское имение» — Идеально для семьи! Ипотека!

Описание:
Продается современный, уютный дом площадью 108 кв.м. на участке 6 соток в престижном коттеджном поселке «Петергофское имение».
Этот дом создан для комфортной жизни:
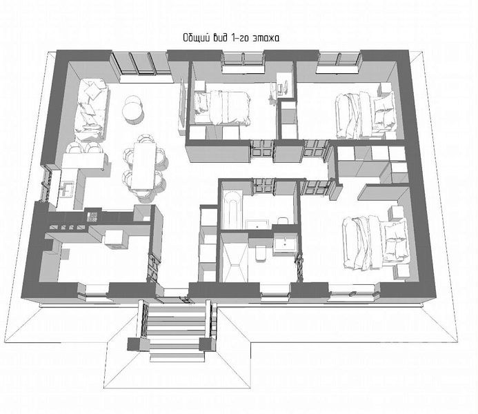
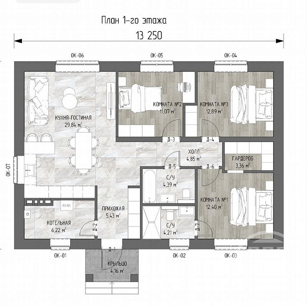
Функциональная планировка: Продуманное пространство включает мастер-спальню (для родителей) и удобные, светлые комнаты для детей. Гардеробная, два санузла, один с выходом из мастер спальни, котельная.
Высокое качество строительства: Надежный фундамент — монолитная плита, толщина стен 400 мм. Установлены качественные окна, сделана внешняя штукатурка и утепление перекрытий.
Благоустройство «под ключ»:
Уже выполнены все необходимые ландшафтные работы: посажен газон и деревья, участок спланирован.
Обустроена зона парковки, сделана отмостка.
Установлен забор и ворота.
Инженерные решения: Реализован теплый контур, дренажная система, эффективная система водоотведения от крыши и всего участка.
Преимущества локации:
Статус земли: ИЖС (индивидуальное жилищное строительство).
КП «Петергофское имение»: Асфальтированные дороги, круглосуточная охрана, небольшие коммунальные платежи.
Звоните, чтобы договориться о просмотре вашего будущего семейного гнездышка!

Расположение

Адрес
Низино дер., Нахимовская ул
Метро
Беговая
Район
Ломоносовский
Расстояние от СПб
15.82
Город
Низино
Регион
Ленинградская область

Площади, м2

Жилая площадь
35.36
Общая площадь
108
Площадь кухни
29.84
Площадь участка
6 сот.

Параметры

Комнат
3
Санузел
2 сан.узла
Этажей
1
Ипотека
Нет
Отделка
Без отделки
Отопление
Электрическое
Электрификация
Есть
Водоснабжение
Центр. водопровод
Стены
Пено-газобетон
Подъездные пути
Асфальт
Размер дома
13,2*8,1
Фундамент
Заливной монолитный
Разрешенное использование
ИЖС
Участок
Собственность

Узнайте больше об объекте

Получите консультацию специалиста

Нажимая на кнопку «Отправить заявку», Вы даете согласие на обработку своих персональных данных.

Объект на карте

Похожие объекты

Этот сайт использует файлы cookie для улучшения пользовательского опыта. Cookie - это небольшие текстовые файлы, которые сохраняются на вашем устройстве и помогают нам запоминать ваши предпочтения, анализировать посещаемость сайта и предоставлять более персонализированный контент. Использование файлов cookie позволяет нам сделать сайт удобнее для вас. Политика конфиденциальности
Принять Отказаться