Жилой дом

ЛО, Ломоносовский, Ольгинские просторы тер.   Посмотреть на карте

Номер объекта: 342686
Цена на м2: 103 571

Время работы Call Центра:

ПН-ПТ с 9-30 до 22-00

СБ-ВС с 10-00 до 22-00

Нажимая на кнопку «Позвонить мне», Вы даете согласие на обработку своих персональных данных.

Описание

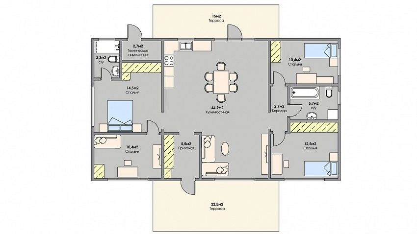
Продается одноэтажный дом в д. Князево. Подходит под ипотеку, в том числе семейную. Дом выполнен из бесшовной современной монолитной конструкции, что обеспечивает надежную гидроизоляцию, а так же естественное проветривание дома в летний период. В доме большая кухня-гостинная, панорамное остекление, 2 террасы с навесом, все коммуникации. Комплектация вайт-бокс. Забор с откатными воротами. До выезда на КАД 3 км. В 10 минутах на машине в Петергофе вся инфраструктура (школы, д/сады, магазины, рестораны, кафе и пр.)

Расположение

Адрес
Ольгинские просторы тер.
Метро
Проспект Ветеранов
Район
Ломоносовский
Расстояние от СПб
6.06
Регион
Ленинградская область

Площади, м2

Жилая площадь
47.8
Общая площадь
140
Площадь кухни
44.9
Площадь участка
6.6 сот.

Параметры

Комнат
4
Санузел
2 сан.узла
Состояние
Отличное
Этажей
1
Ипотека
Да
Отделка
Штукатурка
Отопление
Электрическое
Электрификация
Есть
Водоснабжение
Скважина
Стены
Панель
Крыша
Металлочерепица
Подъездные пути
Грунт
Фундамент
Заливной монолитный
Разрешенное использование
ИЖС
Участок
Собственность

Узнайте больше об объекте

Получите консультацию специалиста

Нажимая на кнопку «Отправить заявку», Вы даете согласие на обработку своих персональных данных.

Объект на карте

Похожие объекты

Затрудняетесь с выбором?

Не тратьте время на поиск и анализ множества предложений недвижимости
Мы сделаем это за вас профессионально, быстро, предложив оптимальные варианты по выгодной цене!

Этот сайт использует файлы cookie для улучшения пользовательского опыта. Cookie - это небольшие текстовые файлы, которые сохраняются на вашем устройстве и помогают нам запоминать ваши предпочтения, анализировать посещаемость сайта и предоставлять более персонализированный контент. Использование файлов cookie позволяет нам сделать сайт удобнее для вас. Политика конфиденциальности
Принять Отказаться