Жилой дом

ЛО, Всеволожский, Сертолово г., Слобода днп   Посмотреть на карте

Номер объекта: 343347
Цена на м2: 123 438

Время работы Call Центра:

ПН-ПТ с 9-30 до 22-00

СБ-ВС с 10-00 до 22-00

Нажимая на кнопку «Позвонить мне», Вы даете согласие на обработку своих персональных данных.

Описание

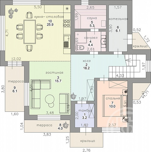
Просторный дом в стиле Хай-Тек .
В доме очень много света. Гостиная со вторым светом и высотой потолков 8 метров станет уютным местом для вас и вашей семьи.
•    4 просторные спальни с высокими потолками и 3 балконами
•    Все окна в доме - панорамные «в пол».
Инженерные сети:
•    Электричество – 15 кВт
•    Газопровод подведен к участку
•    Водоснабжение – выполнена артезианская скважина 100 м
•    Канализация – выполнен септик
•    Выполнены теплые полы
Стадия готовности: WHITE BOX с готовой финальной штукатуркой и керамогранит на полу и стенах, парящие натяжные потолки, кухонный гарнитур с бытовой техникой, санузел с душевыми, мебель в спальнях.
На въезде на улицу установлен шлагбаум.
Имеется заасфальтированный подъезд до участка.
Все соседи проживают круглогодично.
Годовые членские взносы - 20 тыс. руб. в год.
Поселок Петровское расположен в 20-ти минутах от города.
•    Развитая инфраструктура - рядом находятся: новая поликлиника, детские сады, школы, магазины, «Пятерочка», салоны красоты, рынок, баня, Сбербанк - в 3 км от дома.
•    КАД - 15 мин на машине
•    Медное озеро, пляж - 10 мин на машине
•    Остановка общественного транспорта в 15 минутах ПЕШКОМ.
•    Станция метро `Озерки` - 25 минут на машине по Выборгскому шоссе
•    8 км от КАД

Расположение

Адрес
Сертолово г., Слобода днп
Метро
Парнас
Район
Всеволожский
Расстояние от СПб
11.76
Город
Сертолово
Регион
Ленинградская область

Площади, м2

Общая площадь
192
Площадь кухни
26
Площадь участка
10 сот.

Параметры

Этажей
2
Ипотека
Да
Электрификация
Есть
Водоснабжение
Скважина
Подъездные пути
Асфальт
Готовность
90%
Разрешенное использование
Дачное некоммерческое партнерство

Узнайте больше об объекте

Получите консультацию специалиста

Нажимая на кнопку «Отправить заявку», Вы даете согласие на обработку своих персональных данных.

Объект на карте

Похожие объекты

Этот сайт использует файлы cookie для улучшения пользовательского опыта. Cookie - это небольшие текстовые файлы, которые сохраняются на вашем устройстве и помогают нам запоминать ваши предпочтения, анализировать посещаемость сайта и предоставлять более персонализированный контент. Использование файлов cookie позволяет нам сделать сайт удобнее для вас. Политика конфиденциальности
Принять Отказаться