ЛО, Выборгский, Озерки (Первомайское) пос., Лесная ул. Посмотреть на карте
Время работы Call Центра:
ПН-ПТ с 9-30 до 22-00
СБ-ВС с 10-00 до 22-00
Срочная продажа.
Ленинградская область, Выборгский район, п. Озерки.
Редкое предложение - домовладение с выходом на свой личный пирс и сосновым лесом за домом. Жилой дом общей площадью 95,1 кв.м на земельном участке 12 соток в престижной коттеджной застройке на берегу красивейшего Малого озера.
Дом 2010 г.п., использовался для дачного проживания, можно проживать круглогодично. Коммуникации в наличии: электричество 380 В (15 кВт-прямой договор с ПЭСК), отопление камин с воздуховодами и электроконвекторы, вода заведена в дом из колодца, канализация-два переливных колодца с полем рассеивания.
Материал постройки дома-брус, все полы выложены доской из лиственницы, фундамент -ленточный.
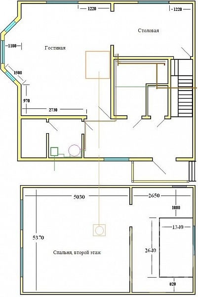
В доме на первом этаже: гостиная 23 кв.м, кухня 11.1 кв.м, прихожая 9,7 кв.м, бойлерная, кладовая, душевая и санузел.
На втором этаже: большая спальня -26,7 кв.м и холл 10,2 кв.м.
Участок ровный, сухой, правильной формы, ухоженный, с декоративными деревьями, кустарниками, цветами и газоном.
Поселок с благоустроенным песчаным пляжем и детской площадкой. Подъездная дорога-крепкий грунт.Взносов нет - оплата к/у только за электричество по счетчику. Общая территория застройки ограничена шлагбаумом-проезд только для собственников. Улицы освещаются муниципалитетом. До п.Рощино -10 км, до п.Первомайское-8 км, до скоростной трассы Скандинавия -5 км.
Что вы получите, кроме завистливых взглядов друзей и родственников?
- Готовый дом, в котором можно реализовать свои мечты и фантазии.
- 12 соток земли - достаточно, чтобы обустроить зону отдыха.
- Рыбалку и выход в лес за грибами и ягодами прямо возле дома.
- Достойное окружение-рядом только современная застройка и минимум соседей.
- Близость развитой инфраструктуры соседних поселков создает возможность комфортного проживания.
Один взрослый собственник, полная стоимость в договоре, никто не прописан. Стоимость обсуждается-готовы к диалогу.
Расположение
Площади, м2
Параметры Получите консультацию специалиста
Не тратьте время на поиск и анализ множества предложений недвижимости
Мы сделаем это за вас профессионально, быстро, предложив оптимальные варианты по выгодной цене!
Не тратьте время на поиск и анализ множества предложений недвижимости
Мы сделаем это за вас профессионально, быстро, предложив оптимальные варианты по выгодной цене!
Не тратьте время на поиск и анализ множества предложений недвижимости
Мы сделаем это за вас профессионально, быстро, предложив оптимальные варианты по выгодной цене!