Торговые помещения

ЛО, Всеволожский, Сертолово г., Центральная ул.   Посмотреть на карте

Номер объекта: 344874
Цена на м2: 1 163

Время работы Call Центра:

ПН-ПТ с 9-30 до 22-00

СБ-ВС с 10-00 до 22-00

Нажимая на кнопку «Позвонить мне», Вы даете согласие на обработку своих персональных данных.

Описание

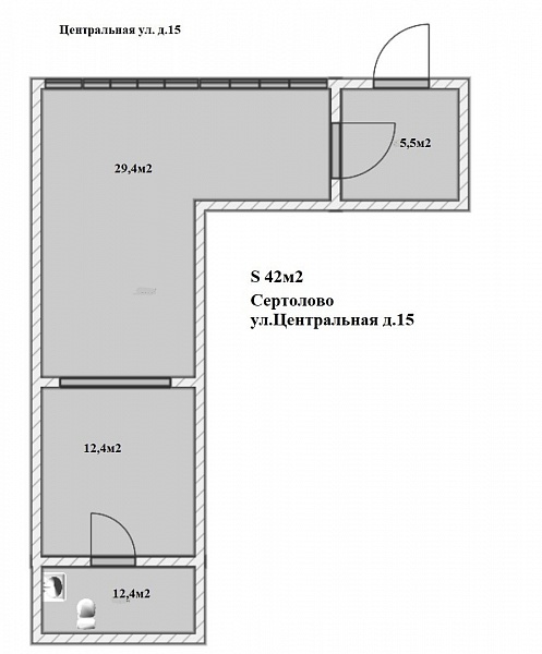
▌ Аренда торговой площади в ЖК «Сертолово Парк»

Сдаётся светлое и просторное торговое помещение 43 кв. м в новом, активно развивающемся жилом комплексе «Сертолово Парк».

▌ Преимущества помещения

- Высота потолков — 3 метра, ощущение простора и свободы.
- Выполнен качественный косметический ремонт, помещение готово к работе.
- Электричество — 15 кВт, центральное отопление.
- Отличная возможность для открытия магазина, пункта выдачи заказов или салона красоты.

▌ Почему стоит выбрать «Сертолово Парк»?

ЖК только начинает свою жизнь, а значит, конкуренция минимальна, а поток жителей стабильно растёт. Рядом уже работают крупные и известные бренды: «Дикси», OZON, VB, Яндекс — это ваши будущие соседи и гарантия востребованности.


▌ Условия аренды

- Арендные каникулы на 1 месяц — время на обустройство без оплаты аренды.
- Гибкий подход к арендаторам, возможность долгосрочного сотрудничества.

Не упустите шанс занять свою нишу в перспективном районе! Звоните для организации показа или уточнения деталей.

Расположение

Адрес
Сертолово г., Центральная ул., 15
Станция метро
Парнас
Район
Всеволожский
Населенный пункт
Сертолово
Регион
Ленинградская область

Площади, м2

Общая площадь
43

Параметры

Дата постройки
2025
Тип лифта
Нет
Состояние
Хорошее
Этаж
1
Этажей
8
Отопление
Камин
Электричество
Есть
Водоснабжение
Есть
Кол-во входов
1
Тип объекта
Торговые помещения

Узнайте больше об объекте

Получите консультацию специалиста

Нажимая на кнопку «Отправить заявку», Вы даете согласие на обработку своих персональных данных.

Объект на карте

Похожие объекты

Этот сайт использует файлы cookie для улучшения пользовательского опыта. Cookie - это небольшие текстовые файлы, которые сохраняются на вашем устройстве и помогают нам запоминать ваши предпочтения, анализировать посещаемость сайта и предоставлять более персонализированный контент. Использование файлов cookie позволяет нам сделать сайт удобнее для вас. Политика конфиденциальности
Принять Отказаться