2-х комнатная квартира

ЛО, Всеволожский, Рахья пос., Ленинградское шос.   Посмотреть на карте

Номер объекта: 329847
Цена на м2: 100 209

Время работы Call Центра:

ПН-ПТ с 9-30 до 22-00

СБ-ВС с 10-00 до 22-00

Нажимая на кнопку «Позвонить мне», Вы даете согласие на обработку своих персональных данных.

Описание

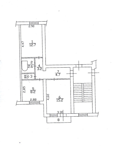
гп Рахья Всеволожский р-н, Ленинградское шоссе д.19.  Предлагаем к продаже светлую, просторную, теплую 2х к. кв. расположенную  на 4 этаже 5 этажного  кирпичного дома.Квартира  двухсторонняя, в хорошем состоянии, раздельный санузел, большая прихожая. Кухня 8,2 кв м, квадратная. Горячая вода - бойлер.  Чистый подъезд. В стоимость входит кухонный гарнитур, большой шкаф купе в прихожей. Остальная мебель по договоренности.
     В поселке вся развитая инфраструктура:  общеобразовательная школа (через дорогу), музыкальная школа, д/с, сетевые магазины, почта, сбербанк, поликлиника, храм.  Хорошее транспортное сообщение. До Спб. ходит электричка (до ж/д ст. пешком 10 мин.) через 1 час  и вы на  Финляндском вокзале. 25 км на машине до КАД. Автобусы до Всеволожска и м. Ладожская. Прямая продажа. 1 собственник.Подходит под ипотеку, материнский капитал, субсидии.Звоните. Показ по договоренности.

Расположение

Адрес
Рахья пос., Ленинградское шос., 19
Метро
Ладожская
Район
Всеволожский
Город
Рахья
Регион
Ленинградская область

Площади, м2

Жилая площадь
27.9
Общая площадь
47.9
Площадь ванной
2.6
Площадь кухни
8.2
Площадь прихожей
7.9

Параметры

Входная дверь
металлическая
Горячее водоснабжение
Бойлер
Дата постройки
1995
Комнат
2
Лифт
Нет
Плита
Газовая
Сан. узел
Раздельный
Состояние
Отличное
Вход
с улицы
Дом
Кирпичный
Этаж
4
Этажность
5
Ипотека
Да

Узнайте больше об объекте

Получите консультацию специалиста

Нажимая на кнопку «Отправить заявку», Вы даете согласие на обработку своих персональных данных.

Объект на карте

Похожие объекты

Затрудняетесь с выбором?

Не тратьте время на поиск и анализ множества предложений недвижимости
Мы сделаем это за вас профессионально, быстро, предложив оптимальные варианты по выгодной цене!

Затрудняетесь с выбором?

Не тратьте время на поиск и анализ множества предложений недвижимости
Мы сделаем это за вас профессионально, быстро, предложив оптимальные варианты по выгодной цене!

Этот сайт использует файлы cookie для улучшения пользовательского опыта. Cookie - это небольшие текстовые файлы, которые сохраняются на вашем устройстве и помогают нам запоминать ваши предпочтения, анализировать посещаемость сайта и предоставлять более персонализированный контент. Использование файлов cookie позволяет нам сделать сайт удобнее для вас. Политика конфиденциальности
Принять Отказаться