3-х комнатная квартира

ЛО, Приозерский, Приозерск г., Калинина ул.   Посмотреть на карте

Номер объекта: 340576
Цена на м2: 114 130

Время работы Call Центра:

ПН-ПТ с 9-30 до 22-00

СБ-ВС с 10-00 до 22-00

Нажимая на кнопку «Позвонить мне», Вы даете согласие на обработку своих персональных данных.

Описание

Ленинградская область, Приозерский район, город Приозерск, улица Калинина, дом 23А

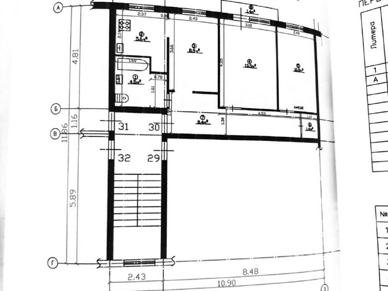
Просторная трехкомнатная квартира, расположенная в спокойном районе центральной части города. Находится на третьем этаже пятиэтажного панельного дома 1977 года постройки.

Комнаты имеют отдельные входы, санузел объединен, имеется кладовое помещение, а застекленный балкон – это ваш личный уголок для релаксации.

Планировка квартиры тщательно продумана и очень удобна. Состояние отличное. Мебель и техника входят в стоимость. В подъезде произведен капитальный ремонт. Доброжелательные соседи. Во дворе организована парковочная зона.

Все необходимые объекты инфраструктуры находятся в непосредственной близости: парк для прогулок, медицинское учреждение, образовательные учреждения (школа и детский сад), разнообразные магазины, спортивный комплекс, городской пляж и остановки общественного транспорта.

Один собственник. Запланирована встречная покупка альтернативного жилья. В зависимости от ситуации покупателя возможна прямая продажа. Давайте начнем

Расположение

Адрес
Приозерск г., Калинина ул., 23
Метро
Парнас
Район
Приозерский
Город
Приозерск
Регион
Ленинградская область

Площади, м2

Жилая площадь
34.8
Общая площадь
55.2
Площадь ванной
4.9
Площадь кухни
5.6
Площадь прихожей
8.6

Параметры

Входная дверь
металлическая
Горячее водоснабжение
Центральное
Дата постройки
1975
Комнат
3
Плита
Газовая
Сан. узел
Совмещенный
Состояние
Отличное
Вход
со двора
Дом
Панельный
Этаж
3
Этажность
5
Ипотека
Да

Узнайте больше об объекте

Получите консультацию специалиста

Нажимая на кнопку «Отправить заявку», Вы даете согласие на обработку своих персональных данных.

Объект на карте

Похожие объекты

Затрудняетесь с выбором?

Не тратьте время на поиск и анализ множества предложений недвижимости
Мы сделаем это за вас профессионально, быстро, предложив оптимальные варианты по выгодной цене!

Затрудняетесь с выбором?

Не тратьте время на поиск и анализ множества предложений недвижимости
Мы сделаем это за вас профессионально, быстро, предложив оптимальные варианты по выгодной цене!

Этот сайт использует файлы cookie для улучшения пользовательского опыта. Cookie - это небольшие текстовые файлы, которые сохраняются на вашем устройстве и помогают нам запоминать ваши предпочтения, анализировать посещаемость сайта и предоставлять более персонализированный контент. Использование файлов cookie позволяет нам сделать сайт удобнее для вас. Политика конфиденциальности
Принять Отказаться