3-х комнатная квартира

ЛО, Выборгский, Тарасово пос., им М.Панфилова ул.   Посмотреть на карте

Номер объекта: 343759
Цена на м2: 57 385

Время работы Call Центра:

ПН-ПТ с 9-30 до 22-00

СБ-ВС с 10-00 до 22-00

Нажимая на кнопку «Позвонить мне», Вы даете согласие на обработку своих персональных данных.

Описание

Л.О. Выборгский р-н, п. Тарасово.
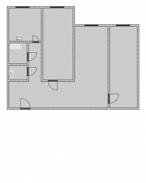
Предлагается к покупке трехкомнатная квартира, расположенная на первом этаже трехэтажного кирпичного дома 1979 года постройки. Квартиры в этом доме теплые. Стены толстые. Парадные чистые. Комнаты в квартире смежно-изолированные. Кухня 8 м2 с холодной нишей в стене. В квартире требуется капитальный ремонт, было возгорание в одной из комнат. Следы от копоти во всех помещениях.
Хорошее предложение для дачного проживания. В шаговой доступности красивейшие грибные леса и пляж озера Подгорное.
Квартира продается в прямой продаже. Один взрослый собственник.

Расположение

Адрес
Тарасово пос., им М.Панфилова ул., 29
Метро
Беговая
Район
Выборгский
Город
Тарасово
Регион
Ленинградская область

Площади, м2

Жилая площадь
36
Общая площадь
58.9
Площадь кухни
8.3

Параметры

Балкон
нет
Входная дверь
обычная
Горячее водоснабжение
Бойлер
Дата постройки
1979
Комнат
3
Лифт
Нет
Плита
Электрическая
Сан. узел
Раздельный
Состояние
Требуется ремонт
Дом
Кирпичный
Этаж
1
Этажность
3
Ипотека
Нет

Узнайте больше об объекте

Получите консультацию специалиста

Нажимая на кнопку «Отправить заявку», Вы даете согласие на обработку своих персональных данных.

Объект на карте

Похожие объекты

Затрудняетесь с выбором?

Не тратьте время на поиск и анализ множества предложений недвижимости
Мы сделаем это за вас профессионально, быстро, предложив оптимальные варианты по выгодной цене!

Затрудняетесь с выбором?

Не тратьте время на поиск и анализ множества предложений недвижимости
Мы сделаем это за вас профессионально, быстро, предложив оптимальные варианты по выгодной цене!

Затрудняетесь с выбором?

Не тратьте время на поиск и анализ множества предложений недвижимости
Мы сделаем это за вас профессионально, быстро, предложив оптимальные варианты по выгодной цене!

Этот сайт использует файлы cookie для улучшения пользовательского опыта. Cookie - это небольшие текстовые файлы, которые сохраняются на вашем устройстве и помогают нам запоминать ваши предпочтения, анализировать посещаемость сайта и предоставлять более персонализированный контент. Использование файлов cookie позволяет нам сделать сайт удобнее для вас. Политика конфиденциальности
Принять Отказаться