1-х комнатная квартира

Санкт-Петербург, Выборгский, Белоостровская ул.   Посмотреть на карте

Номер объекта: 343932
Цена на м2: 379 429

Время работы Call Центра:

ПН-ПТ с 9-30 до 22-00

СБ-ВС с 10-00 до 22-00

Нажимая на кнопку «Позвонить мне», Вы даете согласие на обработку своих персональных данных.

Описание

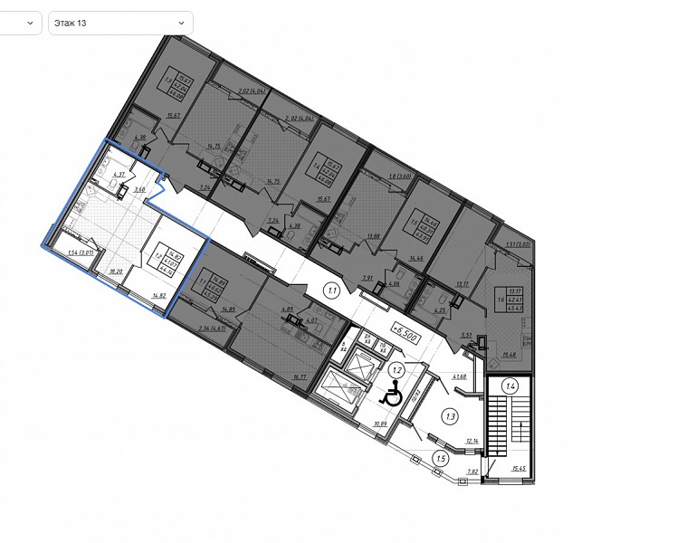
Белоостровская  10 к 3
Просторная квартира в престижном жилом комплексе.Здесь высокие потолки и панорамные окна создают атмосферу свободы, а развитая инфраструктура района делает жизнь по‑настоящему комфортной.

Ключевые преимущества:
Кухня-гостиная 17,8 м² с выходом на лоджию 3,07 м² — идеальное место для ужинов и релакса
Светлая комната с панорамными окнами: 14,9 м²
Санузел 4,4 м²— достаточно места для удобной организации пространства.
Удобная прихожая 3,8 м² — компактно и функционально, всё под рукой.

Черновая отделка с готовой инженерией, скрытая разводка коммуникаций
Современные системы очистки воды, качественные радиаторы отопления

Закрытая территория с видеонаблюдением
Концепция «двор без машин»
Благоустроенная территория с зонами отдыха

Школы и детские сады
Торговые центры и магазины
Поликлиника и банк

2 станции метро в пешей доступности
Быстрый выезд на ЗСД (15 минут)
Рядом: Строгановский парк, ЦПКиО и Крестовский остров

Доступна семейная ипотека — осуществите мечту о собственном комфортном жилье на выгодных условиях!

Расположение

Адрес
Белоостровская ул., 10
Метро
Лесная
Район
Выборгский
Регион
Санкт-Петербург

Площади, м2

Жилая площадь
14.82
Общая площадь
44.14
Площадь ванной
4.4
Площадь кухни
18.2
Площадь прихожей
3.8

Параметры

Дата постройки
2025
Комнат
1
Дом
Кирпично-монолитный
Этаж
13
Этажность
14
Ипотека
Нет

Узнайте больше об объекте

Получите консультацию специалиста

Нажимая на кнопку «Отправить заявку», Вы даете согласие на обработку своих персональных данных.

Объект на карте

Похожие объекты

Затрудняетесь с выбором?

Не тратьте время на поиск и анализ множества предложений недвижимости
Мы сделаем это за вас профессионально, быстро, предложив оптимальные варианты по выгодной цене!

Этот сайт использует файлы cookie для улучшения пользовательского опыта. Cookie - это небольшие текстовые файлы, которые сохраняются на вашем устройстве и помогают нам запоминать ваши предпочтения, анализировать посещаемость сайта и предоставлять более персонализированный контент. Использование файлов cookie позволяет нам сделать сайт удобнее для вас. Политика конфиденциальности
Принять Отказаться