3-х комнатная квартира

ЛО, Выборгский, Рощино пос., Строителей ул.   Посмотреть на карте

Номер объекта: 344521
Цена на м2: 191 643

Время работы Call Центра:

ПН-ПТ с 9-30 до 22-00

СБ-ВС с 10-00 до 22-00

Нажимая на кнопку «Позвонить мне», Вы даете согласие на обработку своих персональных данных.

Описание

Ленинградская обл., Выборгский р-н, г.п.Рощино.
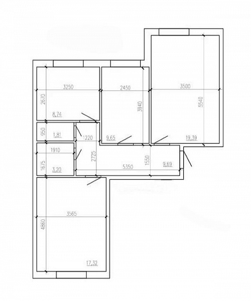
Продается трехкомнатная квартира общей площадью 69,4 кв.м с отделкой в новом доме в центре г.п.Рощино. Дом построен в 2025 году, полностью готов к заселению. Из окон кухни и двух комнат открывается  вид на благоустроенный двор и окрестности. Квартира расположена на две стороны, на улицу и во двор. Комнаты 17,3+19,2+9,6 кв.м, кухня 8,7 кв.м, прихожая 9,6 кв.м, раздельный санузел 1,8+3,2 кв.м. Квартира просторная, уютная с шикарной планировкой. Дом оснащен грузовым лифтом, сквозными парадными - современные входные группы, с выходом во двор и на парковку, собственная котельная. Двор оборудован детскими и спортивными площадками. В пяти минутах ходьбы, расположена школа и детский сад. Рядом вся инфраструктура - супермаркеты Пятерочка, Белорусские продукты, Норман, Дикси, Магнит, аптеки, кафе, рынок, Озон, Вайлдберриз. В пешей доступности Рощинский пляж, плотина, Вейк парк, стадион, Никольская церковь, благоустроенная набережная и многое другое.
В 10 минутах на машине - чистейшие озера Ленинградской области с оборудованными пляжами, рыбалка, лес с различными ягодами и грибами.
Транспортная доступность - маршрутки до вокзала Рощино и Зеленогорска, до Санкт Петербурга на Ласточке 35 минут, 50 минут на автомобиле по трассе Скандинавия, ЗСД.
Один взрослый  собственник, никто не прописан, прямая продажа, полная стоимость в договоре, подходит под ипотеку, субсидии и материнский капитал.

Расположение

Адрес
Рощино пос., Строителей ул., 40
Метро
Удельная
Район
Выборгский
Город
Рощино
Регион
Ленинградская область

Площади, м2

Жилая площадь
46.1
Общая площадь
69.4
Площадь ванной
3.2
Площадь кухни
8.7
Площадь прихожей
9.6
Площадь санузла
1.8

Параметры

Балкон
нет
Входная дверь
металлическая
Горячее водоснабжение
Центральное
Дата постройки
2025
Комнат
3
Лифт
Есть
Плита
Электрическая
Дом
Монолитный
Этаж
1
Этажность
8
Ипотека
Да

Узнайте больше об объекте

Получите консультацию специалиста

Нажимая на кнопку «Отправить заявку», Вы даете согласие на обработку своих персональных данных.

Объект на карте

Похожие объекты

Затрудняетесь с выбором?

Не тратьте время на поиск и анализ множества предложений недвижимости
Мы сделаем это за вас профессионально, быстро, предложив оптимальные варианты по выгодной цене!

Затрудняетесь с выбором?

Не тратьте время на поиск и анализ множества предложений недвижимости
Мы сделаем это за вас профессионально, быстро, предложив оптимальные варианты по выгодной цене!

Затрудняетесь с выбором?

Не тратьте время на поиск и анализ множества предложений недвижимости
Мы сделаем это за вас профессионально, быстро, предложив оптимальные варианты по выгодной цене!

Затрудняетесь с выбором?

Не тратьте время на поиск и анализ множества предложений недвижимости
Мы сделаем это за вас профессионально, быстро, предложив оптимальные варианты по выгодной цене!

Этот сайт использует файлы cookie для улучшения пользовательского опыта. Cookie - это небольшие текстовые файлы, которые сохраняются на вашем устройстве и помогают нам запоминать ваши предпочтения, анализировать посещаемость сайта и предоставлять более персонализированный контент. Использование файлов cookie позволяет нам сделать сайт удобнее для вас. Политика конфиденциальности
Принять Отказаться