Жилой дом

ЛО, Всеволожский, Всеволожск г., Лиственный пер.   Посмотреть на карте

Номер объекта: 326785
Цена на м2: 104 167

Время работы Call Центра:

ПН-ПТ с 9-30 до 22-00

СБ-ВС с 10-00 до 22-00

Нажимая на кнопку «Позвонить мне», Вы даете согласие на обработку своих персональных данных.

Описание

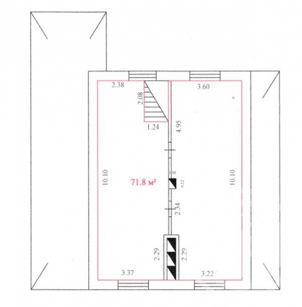
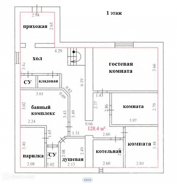
(104) Всеволожск, Лиственный пер. В продаже добротный, качественно построенный ( дом на века) жилой дом полностью готовый к проживанию. Стены- кирпич, фундамент- цоколь, крыша- натуральная черепица , окна- ` Veka`, железобетонные перекрытия между этажами, монолитная лестница. Грамотная, продуманная планировка: 1-й этаж- прихожая, хоз. комната, СУ, котельная, банный комплекс,гардероб, 2 комнаты. 2-й этаж- 3 жилые комнаты, большая кухня-гостиная, СУ раздельный. 3-й этаж  -мансардный, свободная планировка. В доме электричество- 15 КВТ, центральный водопровод, магистральный газ. В стоимость входит мебель и бытовая техника. Удачное расположение: тихая улица, шаговая доступность к транспорту и инфраструктуре.. Готовы рассмотреть обмен на Вашу недвижимость с доплатой.

Расположение

Адрес
Всеволожск г., Лиственный пер.
Метро
Ладожская
Район
Всеволожский
Расстояние от СПб
8.77
Город
Всеволожск
Регион
Ленинградская область

Площади, м2

Общая площадь
240
Площадь участка
10 сот.

Параметры

Комнат
5
Санузел
Два и более
Этажей
2
Ипотека
Нет
Отделка
Штукатурка
Отопление
АГВ
Электрификация
380
Канализация
Локальная канал.
Водоснабжение
Центр. водопровод
Стены
Кирпич
Крыша
Черепица
Подъездные пути
Асфальт
Готовность
Готов
Фундамент
Цокольный
Разрешенное использование
ИЖС
Участок
Собственность

Узнайте больше об объекте

Получите консультацию специалиста

Нажимая на кнопку «Отправить заявку», Вы даете согласие на обработку своих персональных данных.

Объект на карте

Похожие объекты

Этот сайт использует файлы cookie для улучшения пользовательского опыта. Cookie - это небольшие текстовые файлы, которые сохраняются на вашем устройстве и помогают нам запоминать ваши предпочтения, анализировать посещаемость сайта и предоставлять более персонализированный контент. Использование файлов cookie позволяет нам сделать сайт удобнее для вас. Политика конфиденциальности
Принять Отказаться