Жилой дом

ЛО, Всеволожский, Всеволожск г., Октябрьский просп.   Посмотреть на карте

Номер объекта: 338247
Цена на м2: 97 719

Время работы Call Центра:

ПН-ПТ с 9-30 до 22-00

СБ-ВС с 10-00 до 22-00

Нажимая на кнопку «Позвонить мне», Вы даете согласие на обработку своих персональных данных.

Описание

В продаже двухэтажный дом в центре Всеволожска, Октябрьский проспект , 140 метров жилой площади.
Огромный участок в 24 сотки с деревьями и кустарником, есть теплица, пешком до станции Всеволожская и центра Всеволожска с магазинами около 15 минут ходьбы.
Можно предположить   сколько сейчас стоит один участок в 24 сотки в центре Всеволожска
Что касается дома - дом жилой, тёплый, с возможностью всесезонного проживания. Есть электричество 15 кВт, газ, центральное водоснабжение и канализация.
Отопление от газового котла, расположенного на 1-м этаже.
Здание 2000 года постройки; 2-х этажное с верандой (16 кв.м.), подвалом и чердаком.
Стены деревянные, рубленные из бруса 150*150 кв.мм., с отделкой белым сайдингом. Крыша- кровельное, оцинкованное железо. Фундамент высокий, бетонный, ленточный.
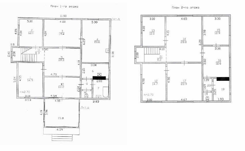
На первом этаже 3 жилые комнаты, кухня, ванная, туалет, котельная с котлом
На втором этаже 5 жилых комнат, ванная, туалет
Здание 2000 года постройки, можно жить постоянно, дом теплый для всесезонного проживания
Прямая продажа без обременений
Пожалуйста звоните для организации просмотра
Всего наилучшего.

Расположение

Адрес
Всеволожск г., Октябрьский просп.
Метро
Улица Дыбенко
Район
Всеволожский
Расстояние от СПб
17.49
Город
Всеволожск
Регион
Ленинградская область

Площади, м2

Жилая площадь
141.7
Общая площадь
263
Площадь кухни
20.6
Площадь участка
24 сот.

Параметры

Комнат
9
Санузел
2 сан.узла
Состояние
Хорошее
Этажей
2
Ипотека
Да
Отделка
Обои
Отопление
АГВ
Электрификация
Есть
Канализация
Локальная канал.
Водоснабжение
Центр. водопровод
Стены
Брус
Крыша
Металлочерепица
Размер дома
12х12
Готовность
Готов
Фундамент
Ленточный
Разрешенное использование
ИЖС
Участок
Собственность

Узнайте больше об объекте

Получите консультацию специалиста

Нажимая на кнопку «Отправить заявку», Вы даете согласие на обработку своих персональных данных.

Объект на карте

Похожие объекты

Этот сайт использует файлы cookie для улучшения пользовательского опыта. Cookie - это небольшие текстовые файлы, которые сохраняются на вашем устройстве и помогают нам запоминать ваши предпочтения, анализировать посещаемость сайта и предоставлять более персонализированный контент. Использование файлов cookie позволяет нам сделать сайт удобнее для вас. Политика конфиденциальности
Принять Отказаться