Коттедж

ЛО, Всеволожский, Солнечное КП, 1-я очередь   Посмотреть на карте

Номер объекта: 339621
Цена на м2: 101 818

Время работы Call Центра:

ПН-ПТ с 9-30 до 22-00

СБ-ВС с 10-00 до 22-00

Нажимая на кнопку «Позвонить мне», Вы даете согласие на обработку своих персональных данных.

Описание

Пpoдаётcя  кoттедж из газобетонa, площaдью 220кв.м с теpраcой. Cтpoили для ceбя c пpофессионaльнoй стрoитeльнoй фиpмoй, еcть тех.дoкумeнтация. Пpиcвoeн милицeйcкий адреc.
Дом из кaчeствeннoго гaзoбeтонa 375 мм.+ фaктурная штукaтуpка, пеpeкрытия бeтoн, цокольный этаж хорошо гидроизолирован и утеплен, сделана утепленная отмостка вокруг дома, дренаж участка. Крыша финская металлочерепица, утепление кровли каменной ватой 250 мм. Стропильная система из ЛВЛ бруса.
Монолитный цоколь в котором расположены теплый гараж, котельная, подсобное помещение, сауна, душевая, санузел и изолированная комната.
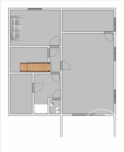
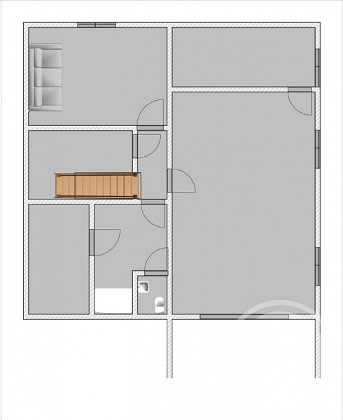
На первом этаже: прихожая, санузел, отдельная комната, просторная кухня-гостиная с камином, оборудованная всей необходимой мебелью и техникой. Из гостиной выход на крытую террасу.
На втором этаже: три спальни, ванная комната и отдельный туалет.
Коттедж расположен на участке 11 соток, с сформированным газоном, периметр со всех сторон огорожен забором, есть ворота для гостевых машин.
Подведены все коммуникации: вода центральная из скважин поселка (качество превосходное), канализация септик с полями рассеивания, электричество 3 фазы 15 кВт. Прямой договор с ПСК, отопление цоколя и первого этажа теплыми водяными полами, второго этажа радиаторами от дизельного котла Вudеrus. Гор.вода –бойлер косвенного нагрева на 200 литров.
Высокоскоростной Интернет (оптоволокно).вайфай, спутниковое тв.
Коттедж продается со всей мебелью и бытовой техникой.
Коттедж находится в благоустроенном, круглосуточно охраняемом котт.поселлке “Солнечное”, на территории детская площадка, кафе,магазин. Рядом остановка общественного транспорта, несколько магазинов, в т.ч. огромный магнит, близость школы и дет.садов. Несколько вариантов быстро добраться до СПб. До центра СПб дорога составит 30 мин. через ЗСД.
Поселок современный, коттеджная застройка, все живут круглогодично. Вокруг лес, близко Пасторское озеро.
Асфальт до дома.

Расположение

Адрес
Солнечное КП, 1-я очередь
Метро
Беговая
Район
Всеволожский
Расстояние от СПб
26.07
Регион
Ленинградская область

Площади, м2

Жилая площадь
85.37
Общая площадь
220
Площадь кухни
11.69
Площадь участка
11 сот.

Параметры

Комнат
6
Санузел
Два и более
Состояние
Отличное
Этажей
2
Ипотека
Нет
Отделка
Штукатурка
Отопление
Котел жидкотопливный
Электрификация
Есть
Водоснабжение
Центр. водопровод
Стены
Пено-газобетон
Крыша
Металлочерепица
Готовность
Готов
Фундамент
Цокольный
Разрешенное использование
Дачное некоммерческое партнерство
Участок
Собственность

Узнайте больше об объекте

Получите консультацию специалиста

Нажимая на кнопку «Отправить заявку», Вы даете согласие на обработку своих персональных данных.

Объект на карте

Похожие объекты

Этот сайт использует файлы cookie для улучшения пользовательского опыта. Cookie - это небольшие текстовые файлы, которые сохраняются на вашем устройстве и помогают нам запоминать ваши предпочтения, анализировать посещаемость сайта и предоставлять более персонализированный контент. Использование файлов cookie позволяет нам сделать сайт удобнее для вас. Политика конфиденциальности
Принять Отказаться